Kaufpreis 789.000 €
Zimmer 6
Größe 195 m²
79189 Bad Krozingen
Objektdaten
Veröffentlicht am: 22. September 2025
Energieausweis: Liegt bei der Besichtigung vor
Danke! Bitte bestätige Deine E-Mail-Adresse – wir haben Dir soeben eine Mail geschickt.
Es gab ein Problem beim Absenden. Bitte versuche es erneut.
Bitte bestätige Deine E-Mail-Adresse, um Updates zu erhalten.
Objektbeschreibung
Objektbeschreibung
In Bad Krozingen-Schmidhofen entstehen vier moderne Wohneinheiten, die höchsten Ansprüchen an Komfort, Energieeffizienz und Wohnqualität gerecht werden. Zwei Doppelhäuser – jeweils mit Satteldach- oder Flachdacharchitektur – bieten Ihnen großzügige Wohnflächen zwischen ca. 151 m² und ca. 192 m² sowie durchdachte Grundrisse, die viel Raum für individuelle Gestaltung lassen.Die Satteldachhäuser (Haus 1+2) überzeugen mit klassischer Architektur, sechs Zimmern inklusive großem Studio im Dachgeschoss sowie sonnigen Terrassen mit Südostausrichtung. Die Flachdachhäuser (Haus 3+4) präsentieren sich in moderner Formensprache mit offenen Wohn-/Essbereichen, zwei komfortablen Hauptbädern und großzügigen Dachterrassen mit Südbzw. Westausrichtung.Alle Einheiten sind nach KfW-55-Standard errichtet und mit hochwertiger Ausstattung versehen: Luft-Wasser-Wärmepumpe, Fußbodenheizung, Photovoltaikanlage, Vorbereitung für E-Ladestationen, bodentiefe Fenster mit 3-fach Verglasung sowie moderne Sanitärobjekte.Ein gemeinschaftlich genutzter Innenhof verbindet die Häuser und bietet einen geschützten Bereich, der zugleich als Privatweg dient und Familien zusätzlichen Freiraum schenkt. Ruhige Lage, kurze Wege ins Zentrum und die direkte Anbindung nach Freiburg runden das attraktive Gesamtpaket ab.Provisionsfrei direkt vom Bauträger.
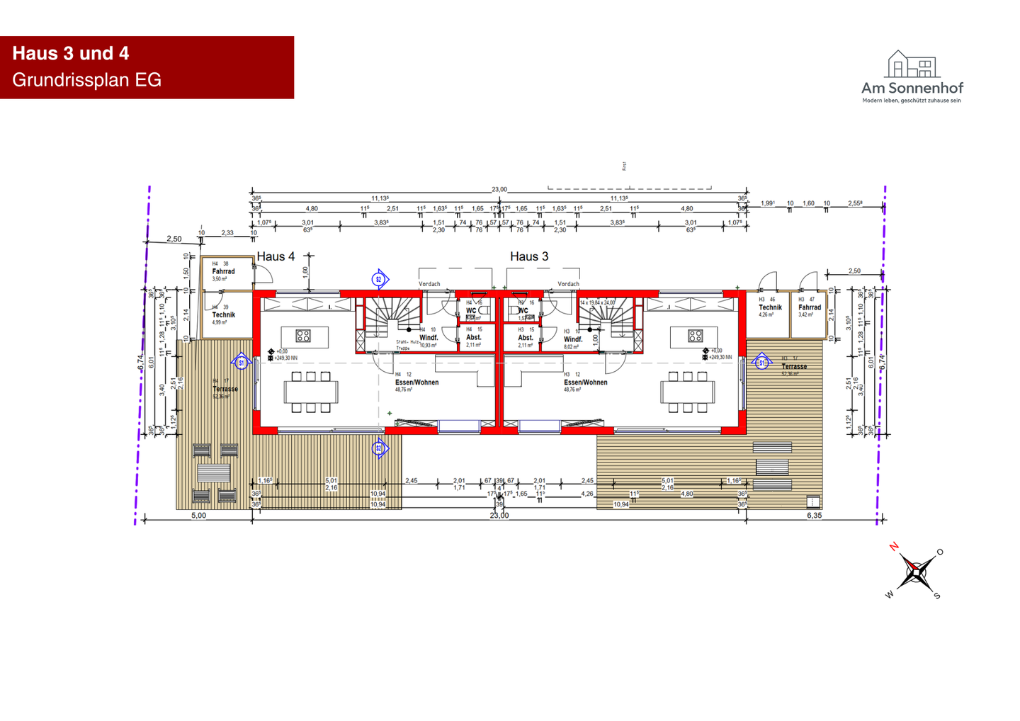
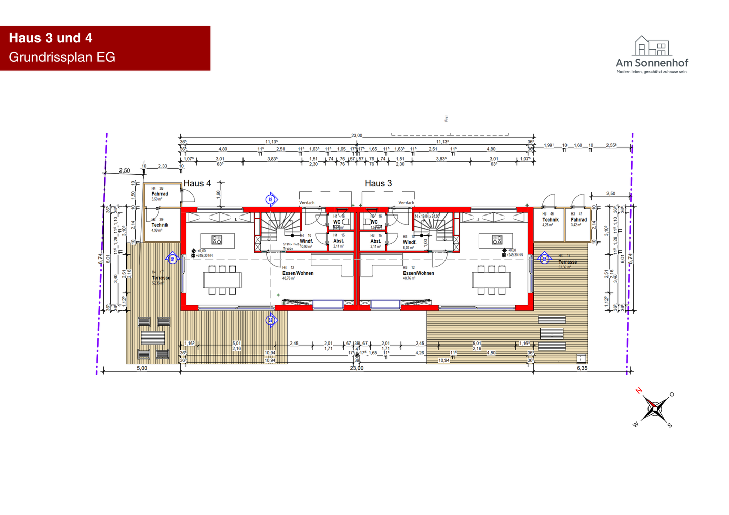
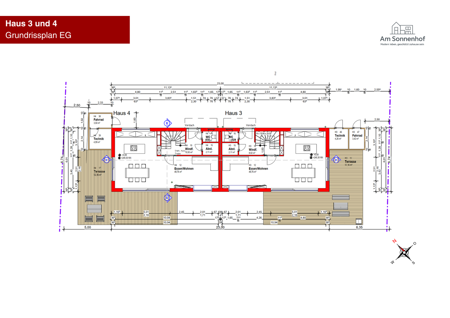
Raumaufteilung
Die Häuser 3+4 (Flachdach) verfügen über ca. 192 m² Wohnfläche. Neben drei Schlafzimmern und zwei komfortablen Hauptbädern überzeugt hier besonders der offene Wohnbereich im Erdgeschoss mit Südwestterrasse. Ein Highlight ist die großzügige Dachterrasse, die je nach Einheit nach Süden oder Westen ausgerichtet ist und zusätzlichen Freiraum bietet.Schmidhofen – naturnah und hervorragend angebundenDer Ortsteil Schmidhofen ist geprägt von einer gewachsenen, ruhigen Wohnstruktur in einer naturnahen Lage. Dank der neu ausgebauten Fahrrad- und Autoverbindung zwischen Bad Krozingen und Schmidhofen gelangen Sie in wenigen Minuten ins Zentrum. Die Lage am südlichen Rand der Rheinebene bietet ein mildes Klima und einen freien Blick in Richtung Schwarzwald. Auch die Nahversorgung ist gesichert: Bäcker, Supermarkt, Metzger und Apotheke lassen sich bequem erreichen. Gleichzeitig profitieren Sie von einer verkehrsgünstigen Anbindung an die A5 sowie an den regionalen ÖPNV. Schmidhofen vereint ländliche Gelassenheit mit urbaner Nähe – ein Ort, an dem Sie zur Ruhe kommen und dennoch bestens angebunden sind.
So funktioniert es
- Alle neuen Anzeigen matchen wir kostenlos mit Deinen Suchparametern.
- Passende Angebote senden wir Dir in einer E-Mail pro Tag.
- Du kannst auch verschiedene Suchen anlegen und Dich jederzeit abmelden. Mehr dazu
Wir haben soeben eine E-Mail mit Deinem Suchauftrag an Dich geschickt. – Klicke in dieser Mail auf den Bestätigungslink und schon geht's los. Prüfe ggf. auch Deinen Spamordner.
Es gab ein Problem beim Absenden Deiner E-Mail-Adresse. Bitte versuche es erneut.
WARNUNG: Bitte bestätige Deine E-Mail-Adresse, um regelmäßige Updates zu erhalten.