Objektdaten
Objektbeschreibung
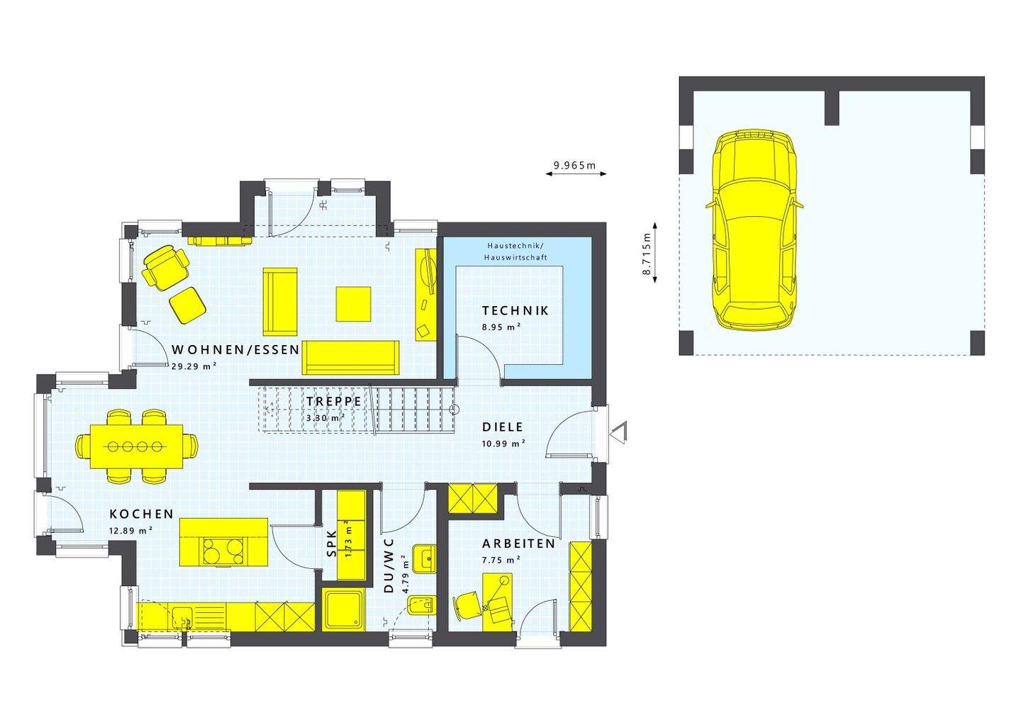
projektiert Unser LifeStyle 15.01 S mit Satteldach verbindet Funktionalität und klare Linien mit durchdachter Raumaufteilung und besonderen Details. Dieses Haus bietet nicht nur eine zeitlose Formensprache, sondern auch die Flexibilität, die Baufamilien sich wünschen. Mit einer Nettogrundfläche von etwa 160 m² kannst du ein komfortables und geräumiges Zuhause gestalten, das den Bedürfnissen aller Bewohner gerecht wird.So funktioniert es
- Alle neuen Anzeigen matchen wir kostenlos mit Deinen Suchparametern.
- Passende Angebote senden wir Dir in einer E-Mail pro Tag.
- Du kannst auch verschiedene Suchen anlegen und Dich jederzeit abmelden. Mehr dazu




