Objektdaten
Objektbeschreibung
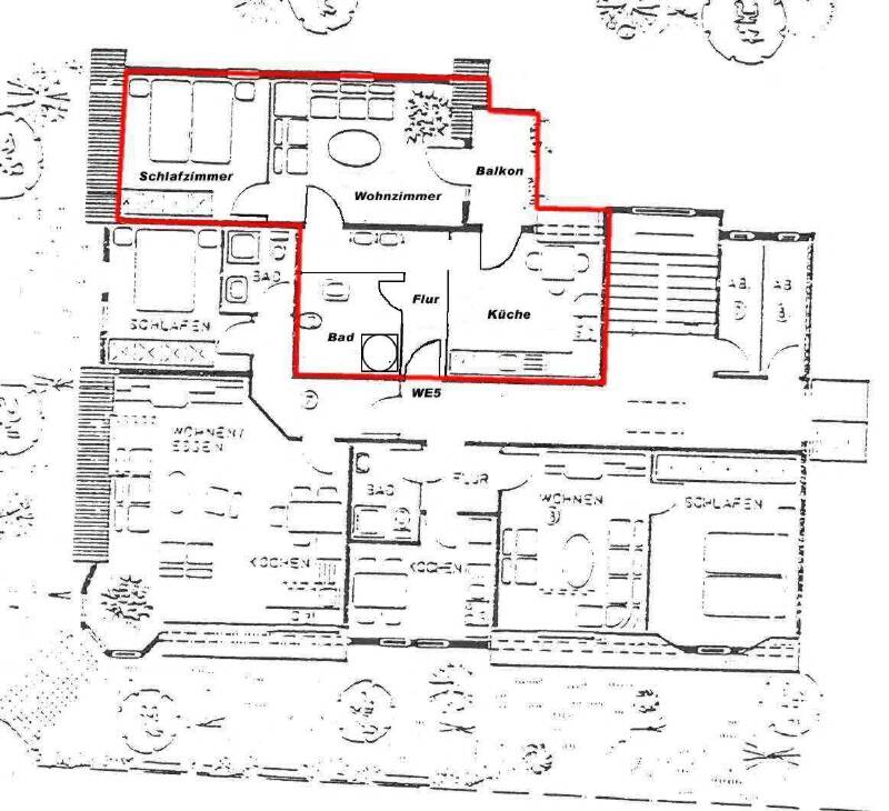
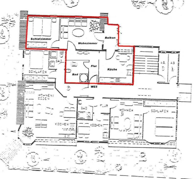
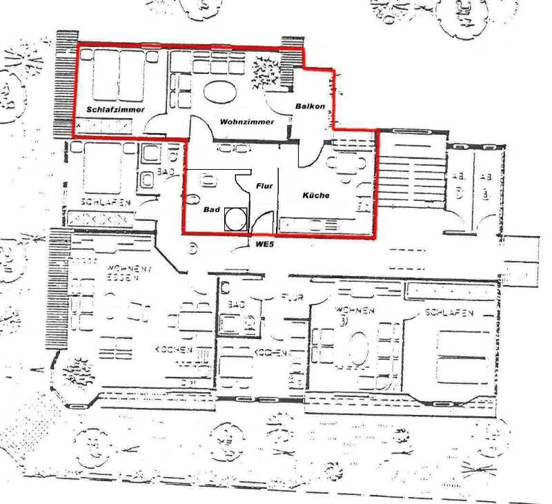
Kurzbeschreibung Individuelle Dachgeschosswohnung Objekt Diese sanierte Stadtvilla, aufgeteilt in 8 Wohnungen und eine Gewerbeeinheit im Souterrain nebst Keller und Stellplätzen bietet Ihnen eine attraktive Kapitalanlage umgeben von schönster Natur. Die zu verkaufende Wohnung liegt im Dachgeschoss und besticht mit einem sonnigen Balkon, großer Wohnküche und weiteren Räumen.Ähnliche Angebote
So funktioniert es
- Alle neuen Anzeigen matchen wir kostenlos mit Deinen Suchparametern.
- Passende Angebote senden wir Dir in einer E-Mail pro Tag.
- Du kannst auch verschiedene Suchen anlegen und Dich jederzeit abmelden. Mehr dazu




