Objektdaten
Objektbeschreibung
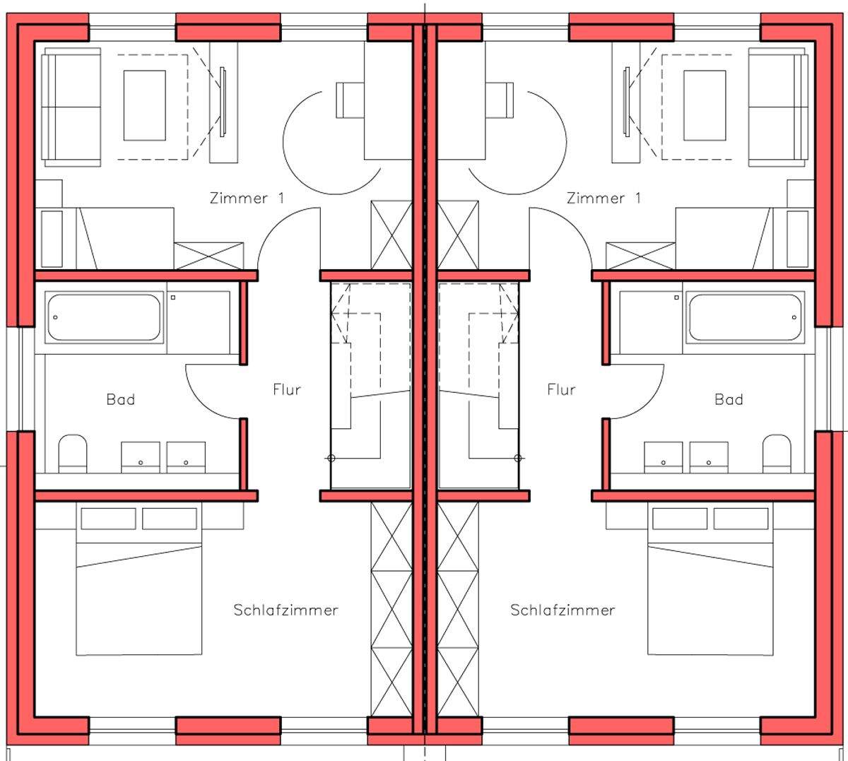
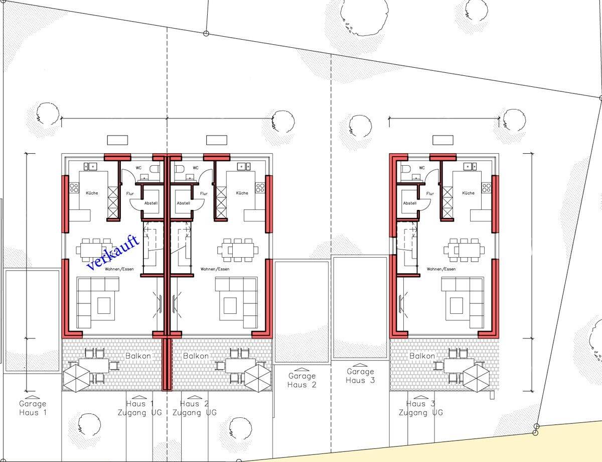
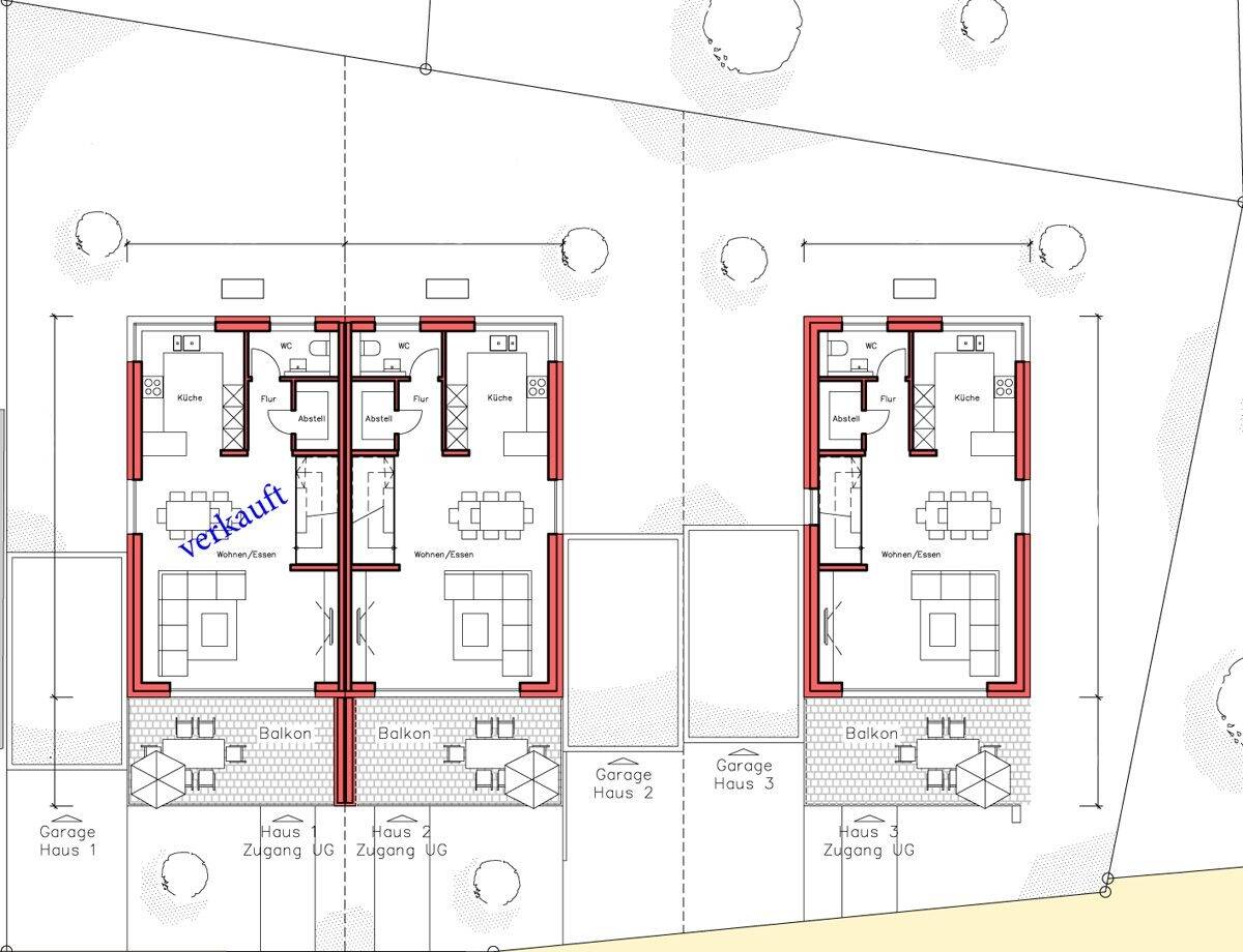
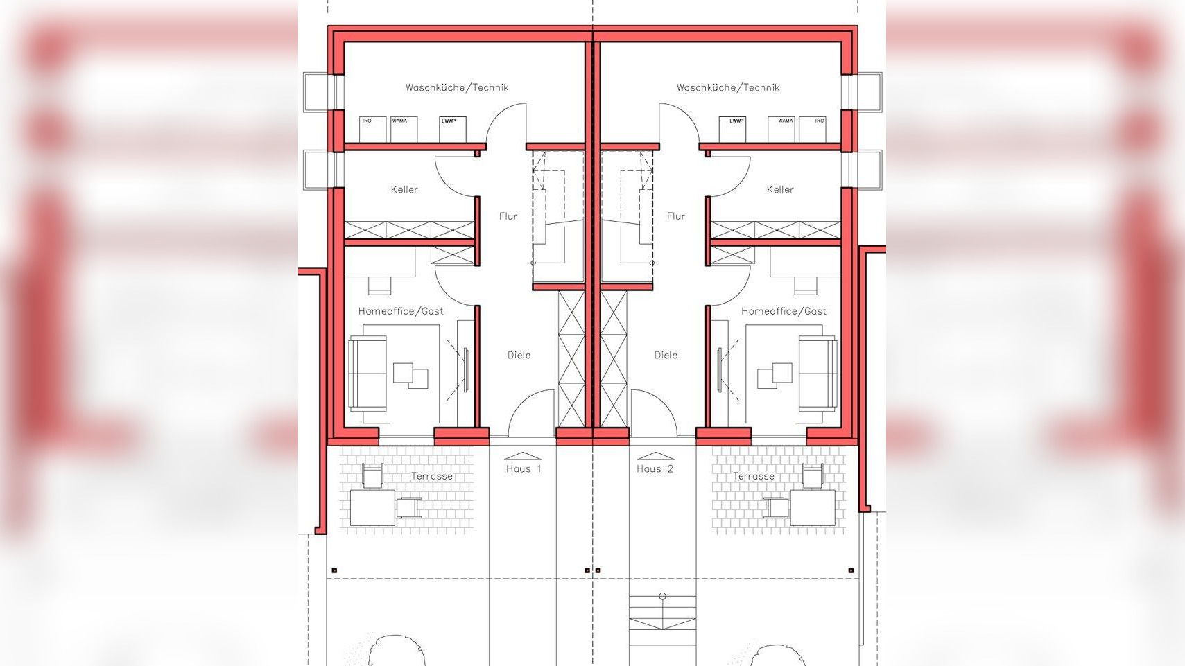
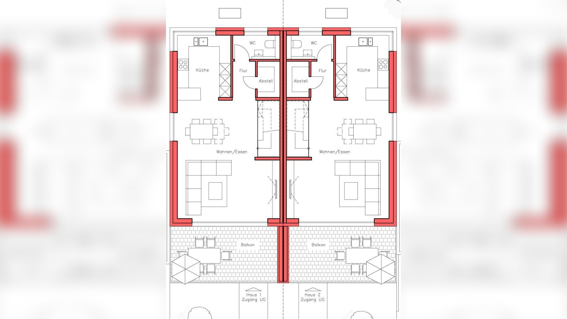
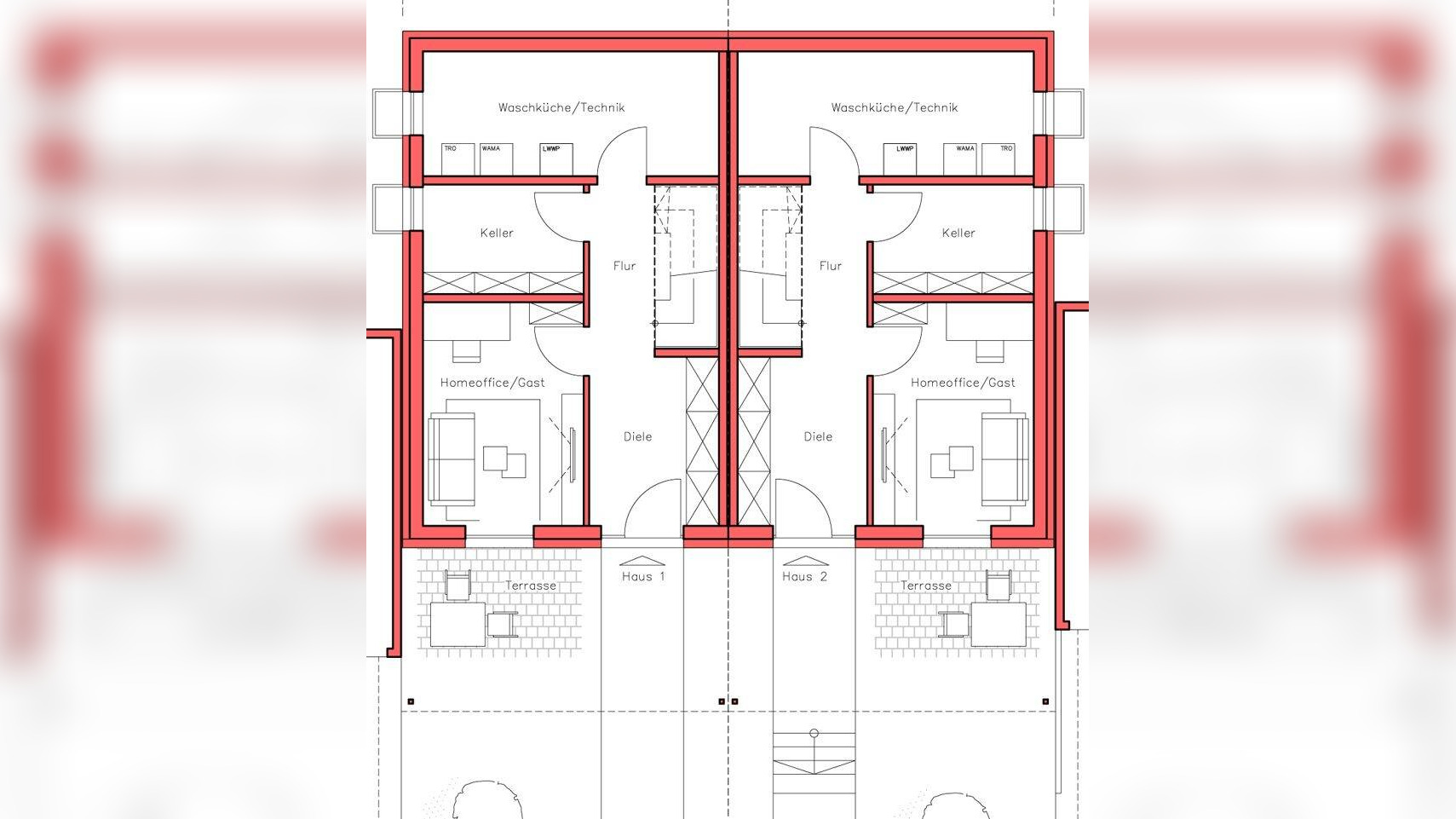
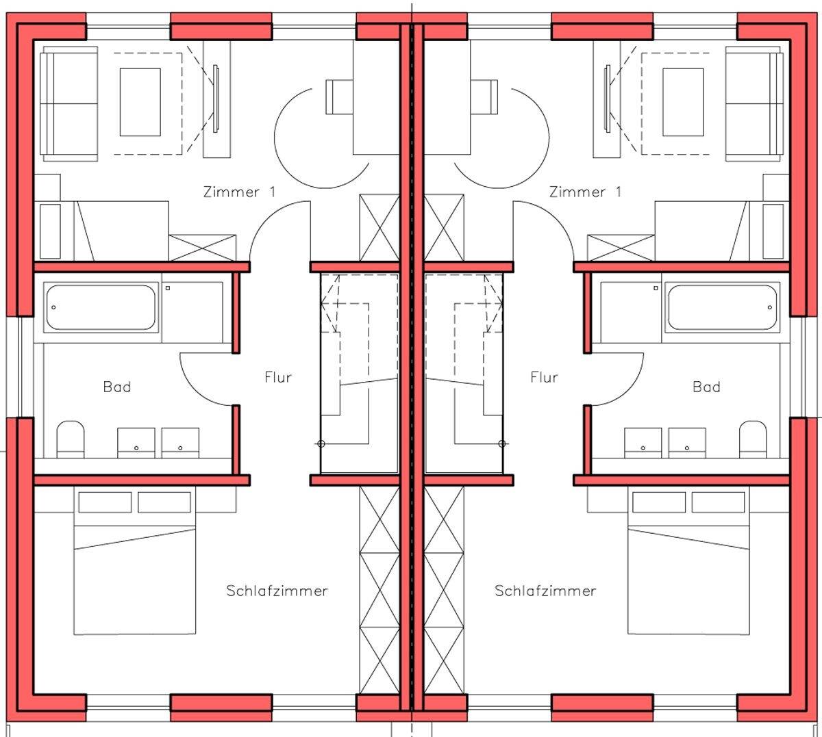
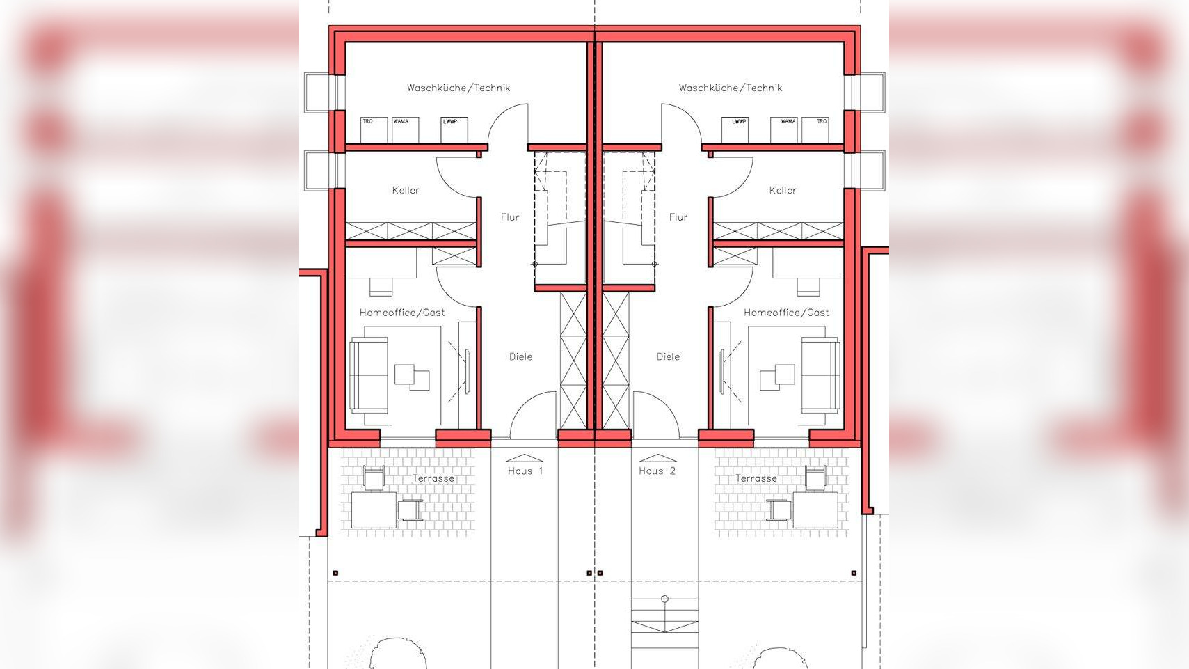
Diese DHH befindet sich bereits im Bau und kann in 2026 bereits bezogen werden.In traumhafter Aussichts- und Randlage von Weissach-Flacht haben wir für Sie diese sehr großzügige DHH mit 6 hellen Zimmern geplant. Der Traum vom eigenen Zuhause mit viel Platz für die ganze Familie kann hier erfüllt werden.Auf dem sonnigen Balkon und der Terrasse, welche nach Süd-West ausgerichtet sind, können Sie die Natur und die Sonne genießen. Haus 2:Sie betreten das Haus über das Gartengeschoss. Im Dielenbereich haben Sie viel Platz für Ihre Garderobe. Ein großes Homeoffice/Gästezimmer mit bodentiefer Verglasung und Terrasse bietet Ihnen verschiedene Möglichkeiten. Nebenan befindet sich ein Kellerraum sowie die geräumige Waschküche. Im Erdgeschoss bieten Ihnen der große Wohn-Essbereich und die offene Küche mit viel bodentiefer Verglasung eine besondere Wohlfühlatmosphäre und Wohnqualität. Von hier haben Sie direkten Zugang auf den großen sonnigen Balkon wo Sie sich ungestört aufhalten sowie die Ruhe und den Ausblick genießen können. Angrenzend zur Küche ist ein praktischer Abstellraum. Auf dieser Ebene ist auch das Gäste-WC.Viel Verglasung sorgt in den beiden geräumigen Schlafzimmern im Obergeschoss für helle Räume. Das komfortable Tageslichtbad ist großzügig geplant.Das attraktive Dachgeschoss bietet zusätzlichen Platz mit zwei großen Schlafzimmern. Für Ihren Komfort haben Sie nebenan die Möglichkeit für ein zusätzliches Tageslicht-Duschbad. Die Fußbodenheizung im ganzen Haus sorgt für ein angenehmes Wohnraumklima.So funktioniert es
- Alle neuen Anzeigen matchen wir kostenlos mit Deinen Suchparametern.
- Passende Angebote senden wir Dir in einer E-Mail pro Tag.
- Du kannst auch verschiedene Suchen anlegen und Dich jederzeit abmelden. Mehr dazu




