Kaufpreis 599.000 €
Zimmer 4
Größe 120 m²
66663 Merzig
Objektdaten
Veröffentlicht am: 5. Oktober 2025
Baujahr: 2022
Energieausweis: Liegt bei der Besichtigung vor
Danke! Bitte bestätige Deine E-Mail-Adresse – wir haben Dir soeben eine Mail geschickt.
Es gab ein Problem beim Absenden. Bitte versuche es erneut.
Bitte bestätige Deine E-Mail-Adresse, um Updates zu erhalten.
Objektbeschreibung
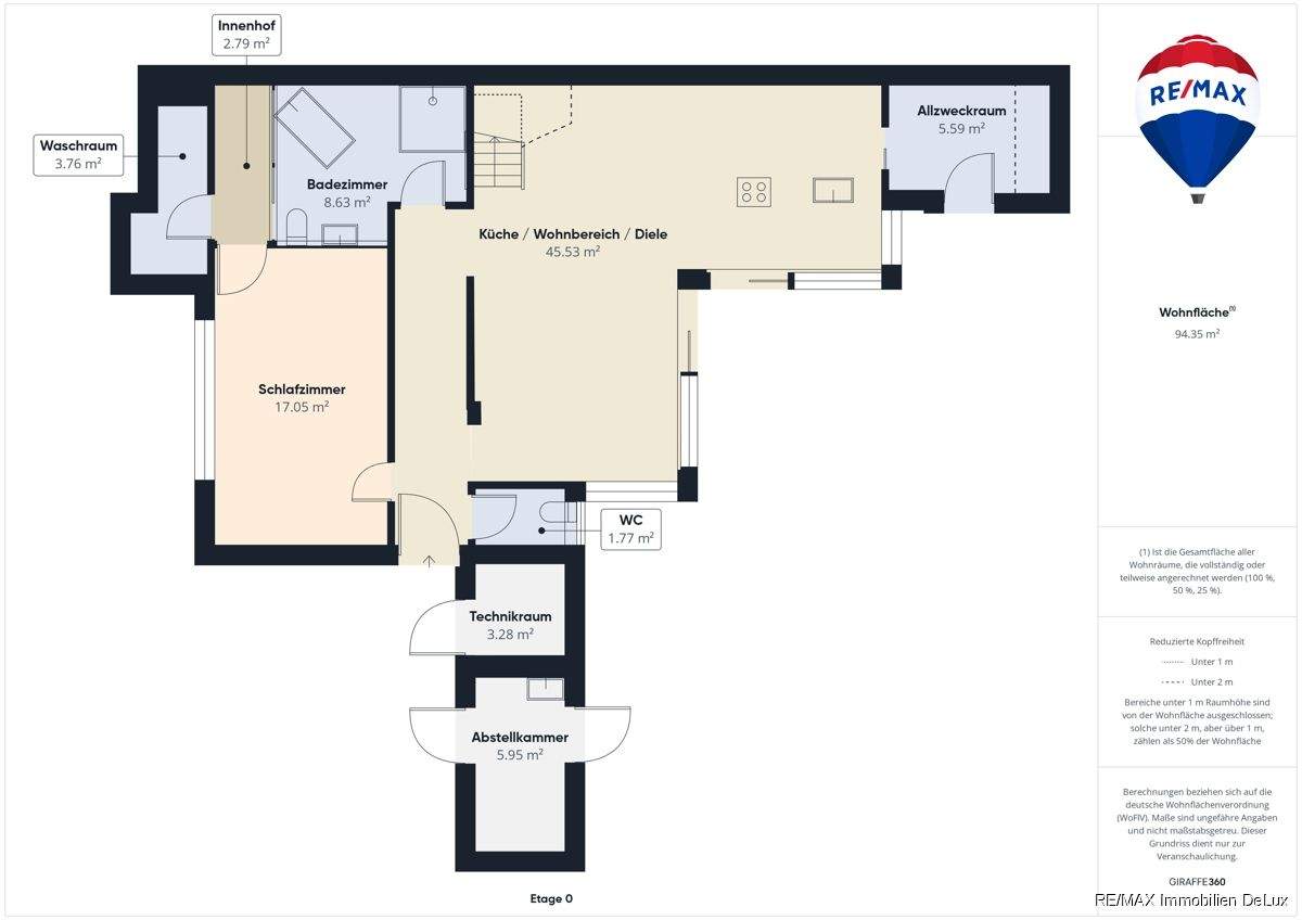
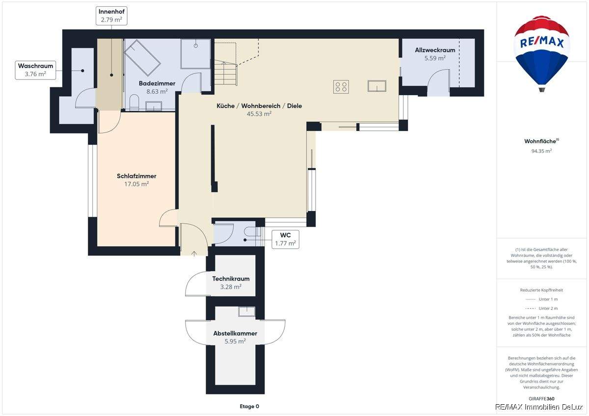
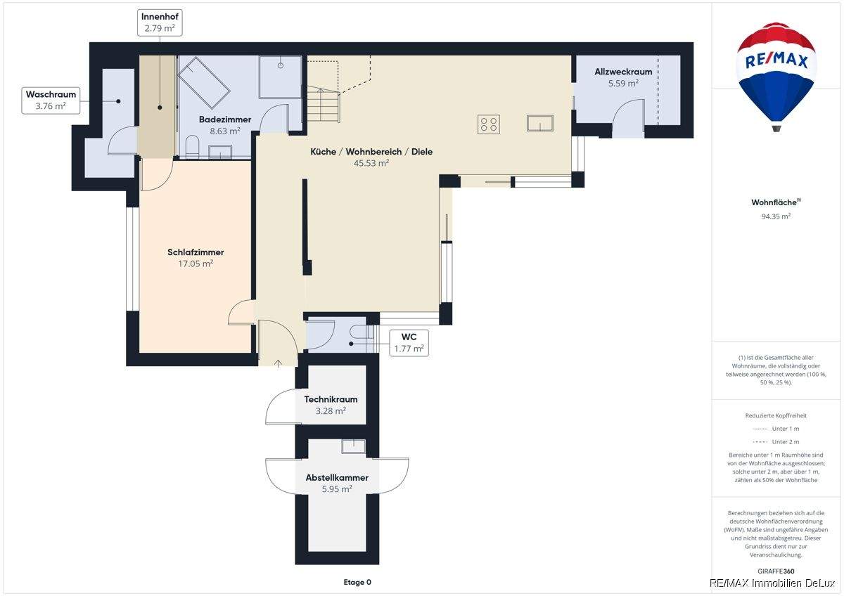
Willkommen in Ihrem Traum-Einfamilienhaus! Dieses bezaubernde Einfamilienhaus aus dem Jahr 2022 bietet Ihnen auf ca. 120 m² Wohnfläche ein modernes und komfortables Zuhause. Es liegt auf einem großzügigen Grundstück von etwa 242 m² und ist die perfekte Oase der Ruhe und Entspannung - ideal für Familien und Naturliebhaber.Die attraktive Lage in einer ruhigen Sackgasse sorgt für eine harmonische Wohnatmosphäre, fernab vom hektischen Stadtleben. Vor der Tür steht Ihnen ein Carport für zwei Fahrzeuge zur Verfügung, was bequemes Parken ermöglicht. Der durchdachte Eingangsbereich überzeugt mit drei separaten Zugängen zu den Funktionsbereichen des Hauses. Der erste Zugang rechts führt in eine praktische Abstellkammer, die zusätzlichen Stauraum bietet und direkten Zugang zum Garten ermöglicht. Der zweite Zugang führt in einen kleinen Technikraum, der den Komfort und die Funktionalität der Immobilie unterstreicht. Schließlich gelangen Sie durch die einladende Haustür in die helle Diele des Hauses.Rechts von der Diele befindet sich ein modernes Gäste-WC, während auf der linken Seite das geräumige Schlafzimmer liegt, das direkten Zugang zum stilvoll gestalteten Badezimmer und Waschraum bietet. Das Badezimmer ist mit einer Badewanne ausgestattet, die Ihnen eine entspannende Auszeit ermöglicht. Ein kleiner Innenhof mit lichtdurchlässigen Fensterflächen verbindet diese Bereiche harmonisch und verleiht dem Raum eine besondere Eleganz.Das Herzstück des Erdgeschosses ist der großzügige Wohn- und Essbereich, der mit einer hellen, hochwertigen Einbauküche ausgestattet ist. Dieser Bereich ist ideal, um gesellige Abende mit Familie und Freunden zu verbringen. An die Küche schließt sich ein praktischer Allzweckraum an, der Ihnen zusätzlichen Komfort bietet. Von hier aus gelangen Sie in den blickgeschützten Garten, der mit einer einladenden, überdachten Terrasse von 20 m² sowie einem eigenen Pool mit Gegenstromanlage und einem modernen, beheizbaren Jacuzzi ausgestattet ist - perfekt für sonnige Tage und entspannende Wohlfühlmomente. Der Pool befindet sich dabei permanent in der Sonne, sodass Sie jederzeit eine angenehme Badeerfahrung genießen können.Ein besonderes Highlight dieser Immobilie ist das Loxone-System, das den Komfort Ihres Alltags erhöht. Die integrierten Lampen bieten die Möglichkeit, ihre Farben je nach Stimmung und Bedarf zu wechseln. Durch die intelligente Steuerung des Energieverbrauchs von Beleuchtung, Heizung und anderen Geräten können Kosten gespart und die Energie effizienter genutzt werden. Das System funktioniert wie ein Autopilot und vereinfacht tägliche Abläufe durch automatische Lichtverhältnisse, Beschattung und Temperaturregelung - ein wahrer Genuss für alle Sinne!Ein weiteres Highlight ist die Klimaanlage, die für ein angenehmes Raumklima sorgt und das Zuhause ganzjährig komfortabel macht. Eine elegante Treppe führt Sie ins Obergeschoss, wo Sie eine kleine Büroecke mit großen, offenen Fenstern erwartet. Diese helle Ecke ist ideal für kreative Tätigkeiten oder Homeoffice. Im Obergeschoss finden Sie außerdem ein weiteres Schlafzimmer mit eigenem Badezimmer und offener Dusche - ein privater Rückzugsort für entspannende Momente. Die Fenster der Immobilie sind mit elektrischen Lamellen ausgestattet, die effektive Beschattung bieten und zur Energieeffizienz beitragen. Zusätzlich wird das Haus nach dem Auszug frisch gestrichen, sodass Sie in eine makellose und gepflegte Immobilie einziehen können. Dieses Einfamilienhaus vereint moderne Architektur, vielseitige Nutzungsmöglichkeiten und eine traumhafte Lage.Lassen Sie sich von diesem einzigartigen Angebot begeistern und vereinbaren Sie noch heute einen Besichtigungstermin!
So funktioniert es
- Alle neuen Anzeigen matchen wir kostenlos mit Deinen Suchparametern.
- Passende Angebote senden wir Dir in einer E-Mail pro Tag.
- Du kannst auch verschiedene Suchen anlegen und Dich jederzeit abmelden. Mehr dazu
Wir haben soeben eine E-Mail mit Deinem Suchauftrag an Dich geschickt. – Klicke in dieser Mail auf den Bestätigungslink und schon geht's los. Prüfe ggf. auch Deinen Spamordner.
Es gab ein Problem beim Absenden Deiner E-Mail-Adresse. Bitte versuche es erneut.
WARNUNG: Bitte bestätige Deine E-Mail-Adresse, um regelmäßige Updates zu erhalten.