Objektdaten
Objektbeschreibung
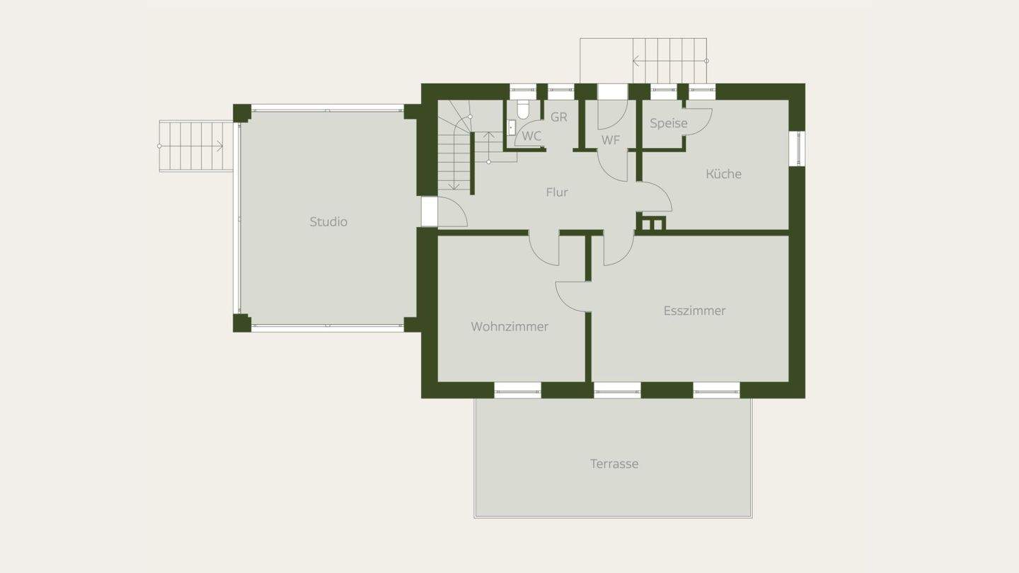
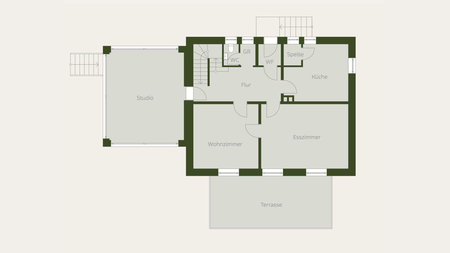
Dieses charmante, denkmalgeschützte Bestandsgebäude aus der Jahrhundertwende vereint historischen Charme mit modernem Wohnkomfort. Im Rahmen einer liebevollen und fachgerechten Sanierung wird die Architektur des Altbaus bewahrt und gleichzeitig mit zeitgemäßen Annehmlichkeiten ergänzt.?? Die denkmalgeschützte Villa steht auf einem ca. 630 m² großen Grundstück, welches Raum für einen grünen eingewachsenen Garten schafft und die Architektur des Gebäudes harmonisch umrahmt. Nach der Sanierung wird die Altbauvilla über eine nutzbare Fläche von ca. 300 m² verfügen.Ähnliche Angebote
So funktioniert es
- Alle neuen Anzeigen matchen wir kostenlos mit Deinen Suchparametern.
- Passende Angebote senden wir Dir in einer E-Mail pro Tag.
- Du kannst auch verschiedene Suchen anlegen und Dich jederzeit abmelden. Mehr dazu




