Objektdaten
Objektbeschreibung
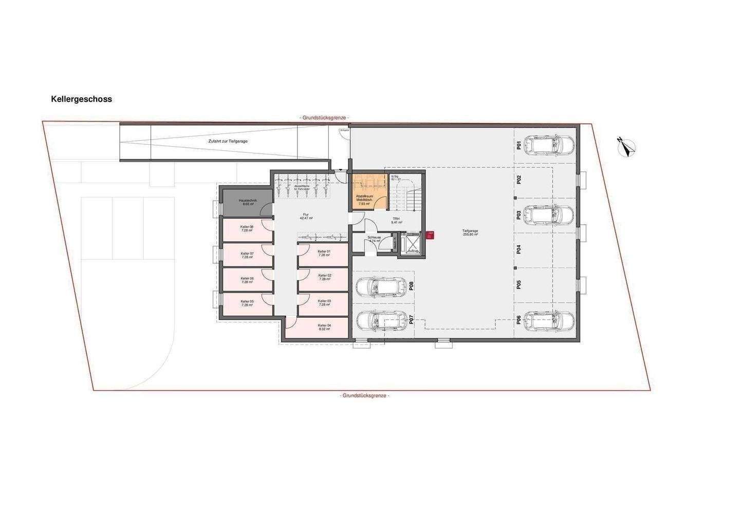
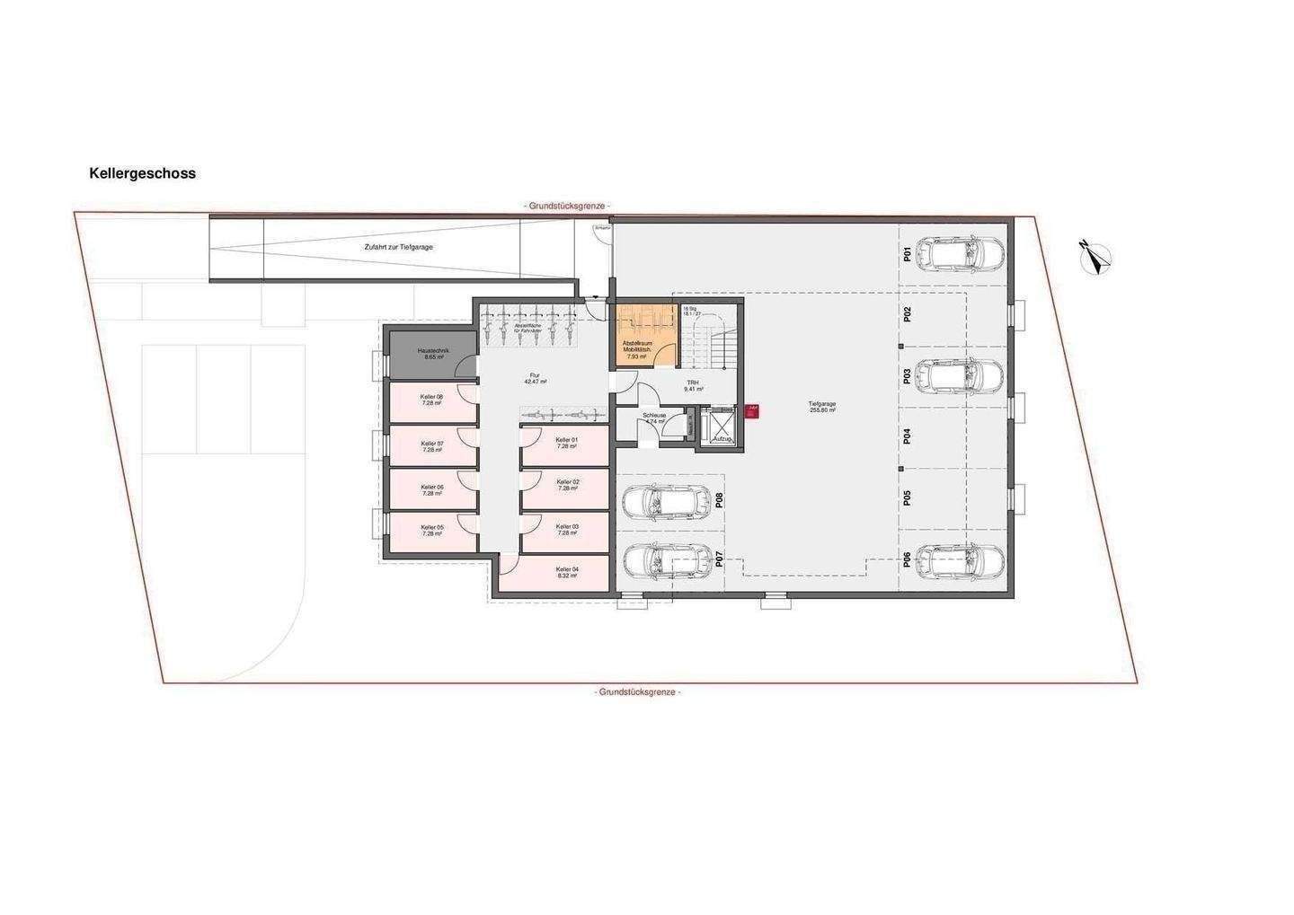
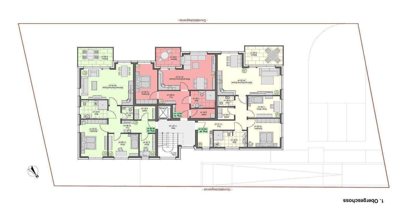
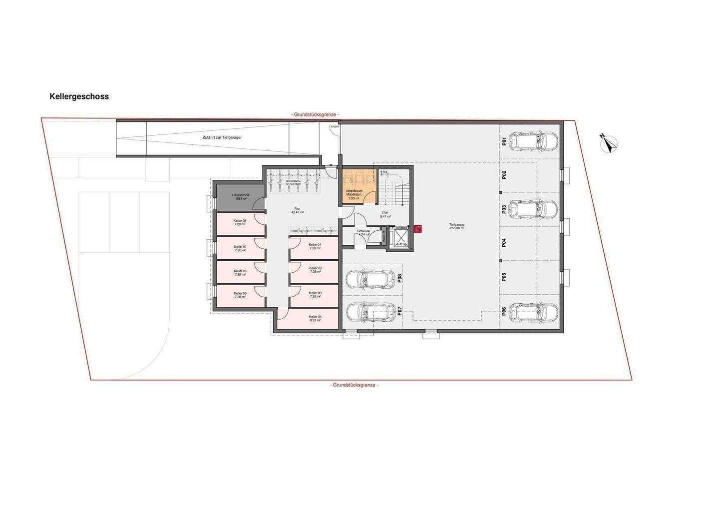
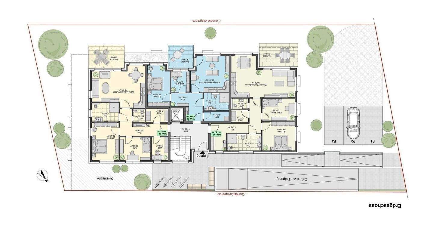
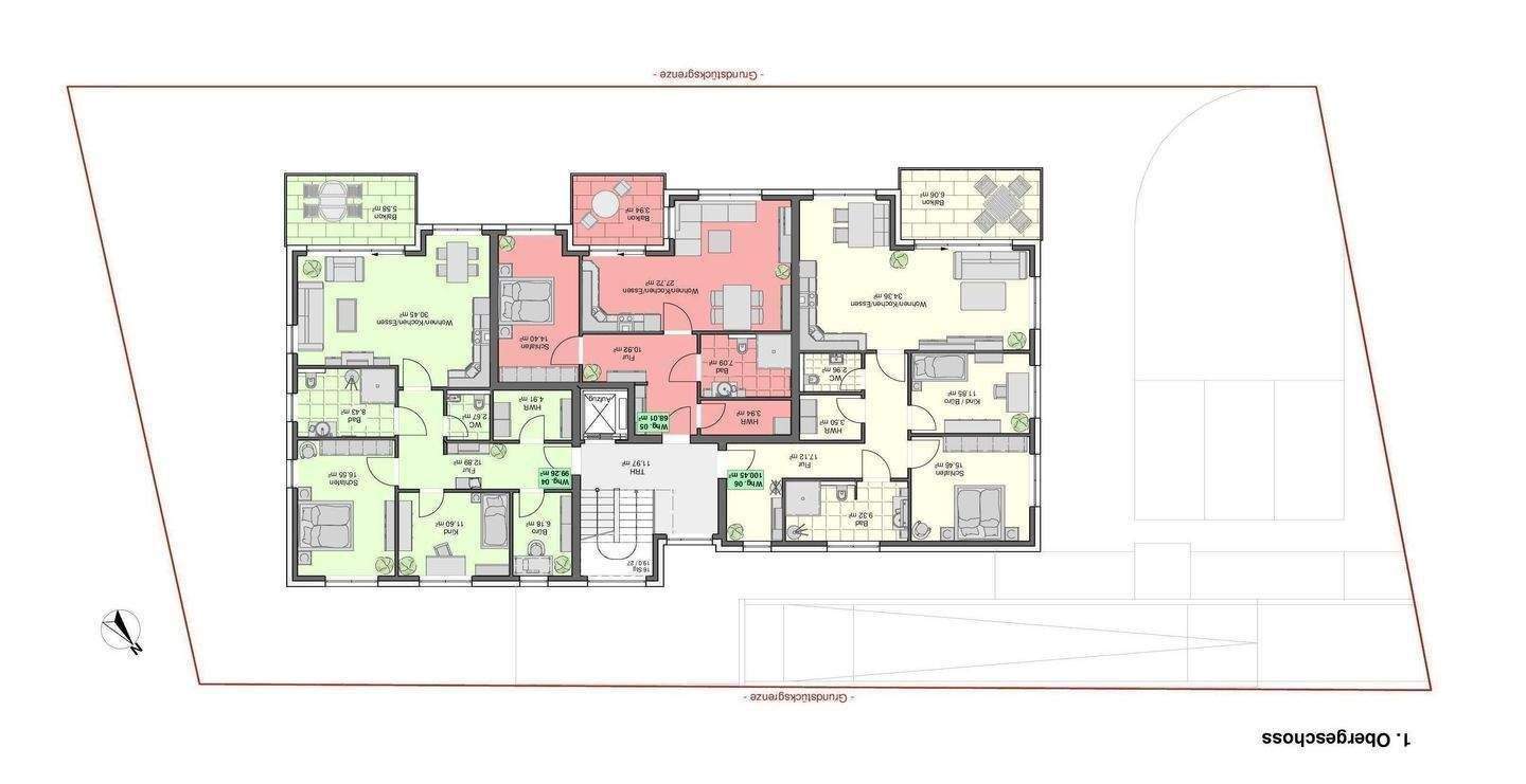
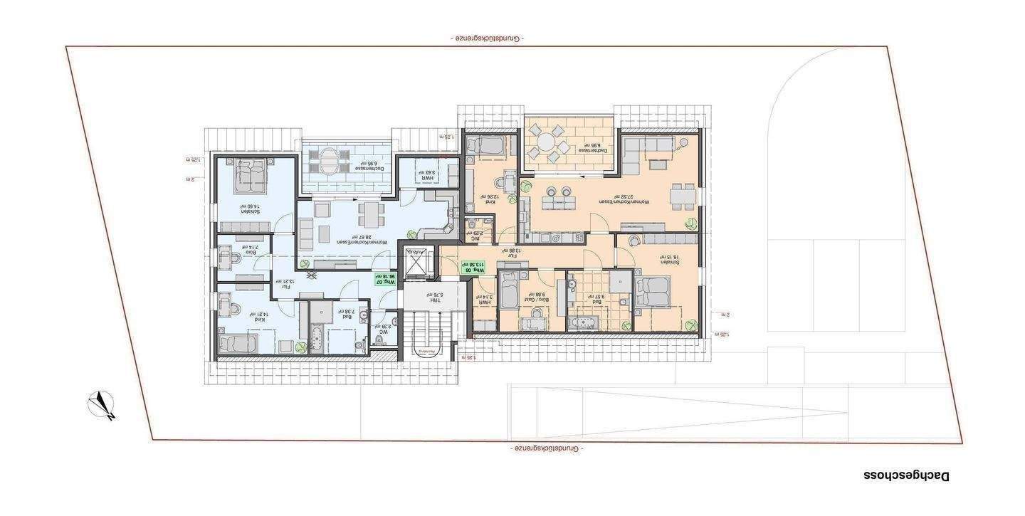
Nur noch drei Wohnungen frei !!!!!!!!Wohnen für Menschen mit hohem Anspruch an eine individuelle und flexible Wohnkultur. Lichtdurchflutete, offene und funktionale Grundrisse und sorgfältige Detaillösungen sorgen für Ihre persönliche Wohnwelt.Jede der 2-4 Zimmerwohnungen (die Raumaufteilung kann vor Baubeginn von Ihnen noch individuallisiert werden) mit breiten Fluren zur offener Küche, Bad, Hauswirtschaftsraum, Kellerraum und großzügig geschnittenem Balkon/Terrasse liegen in Südlage. Die PKW-Stellplätze befinden sich in der Tiefgarage.So funktioniert es
- Alle neuen Anzeigen matchen wir kostenlos mit Deinen Suchparametern.
- Passende Angebote senden wir Dir in einer E-Mail pro Tag.
- Du kannst auch verschiedene Suchen anlegen und Dich jederzeit abmelden. Mehr dazu



