Kaufpreis 349.000 €
Zimmer 3
Größe 93 m²
26160 Bad Zwischenahn
Objektdaten
Veröffentlicht am: 7. Oktober 2025
Baujahr: 1980
Energieausweis: Liegt bei der Besichtigung vor
Danke! Bitte bestätige Deine E-Mail-Adresse – wir haben Dir soeben eine Mail geschickt.
Es gab ein Problem beim Absenden. Bitte versuche es erneut.
Bitte bestätige Deine E-Mail-Adresse, um Updates zu erhalten.
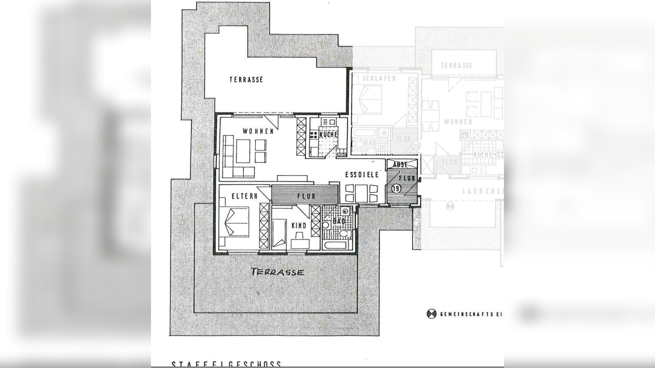
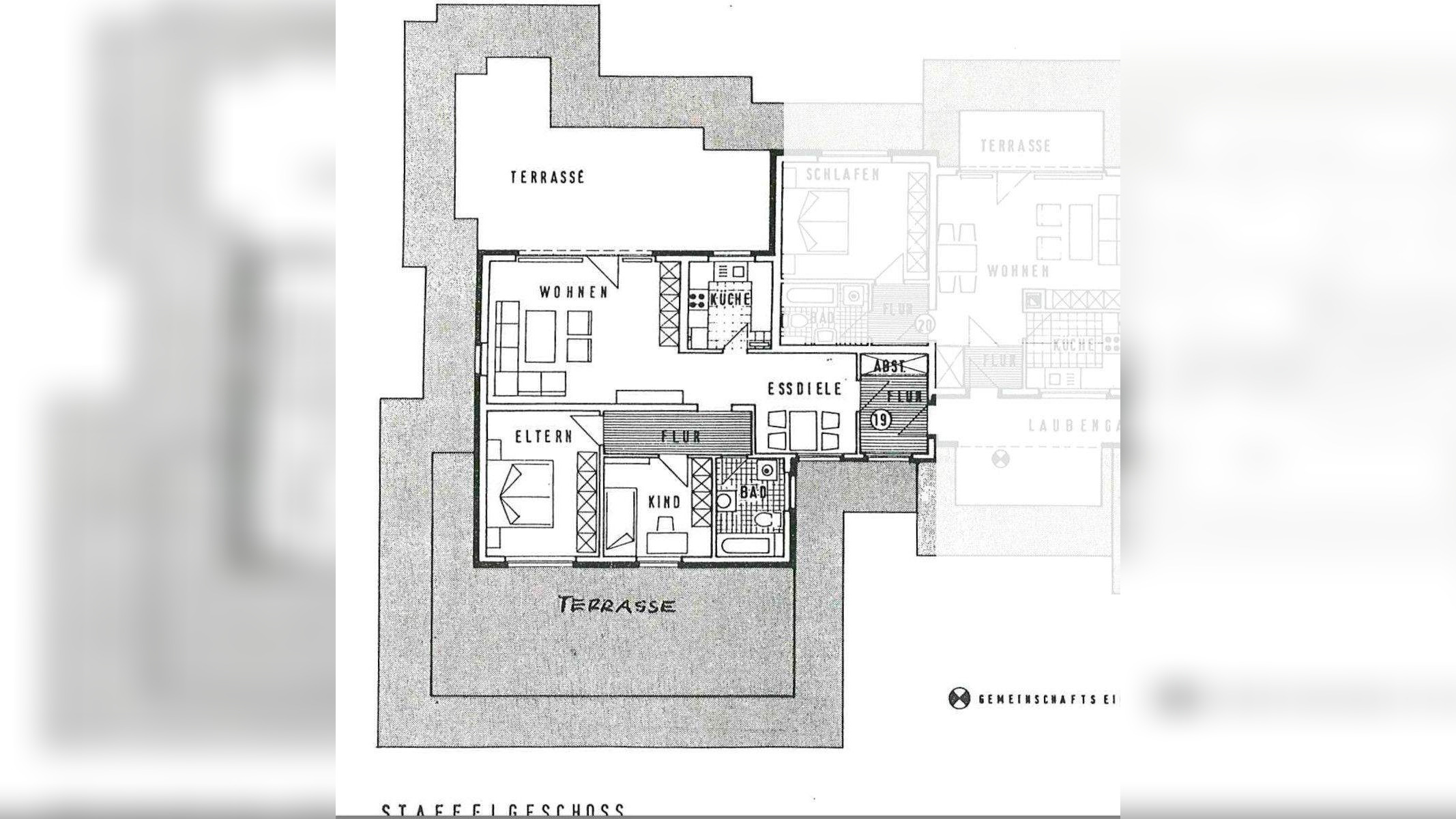
Objektbeschreibung
Willkommen in Ihrem neuen Zuhause im malerischen Bad Zwischenahn - nur wenige Gehminuten von Zwischenahn Meer entfernt! Diese Etagenwohnung, ideal für den Erwerb einer Eigentumswohnung oder als Ferienwohnung, wartet darauf, von Ihnen entdeckt zu werden. Die im Jahr 1980 erbaute Wohnung im super Zustand verteilt sich auf eine großzügige Wohnfläche von ca. 93 m². Sie befindet sich in einem gepflegten Gebäude mit insgesamt vier Etagen und bietet Ihnen ein komfortables Wohnambiente.Die Wohnung überzeugt durch einen durchdachten Grundriss mit einem offenen Wohn- und Essbereich, der direkt auf die sonnige und überdachte Dachterrasse hinausführt. Ein geräumiges Schlafzimmer und ein Arbeitszimmer/Kinderzimmer, bieten viel Platz für individuelle Gestaltungsmöglichkeiten. Das stilvolle Dusch-Badezimmer in einem zeitlosen Design schafft eine entspannende Atmosphäre.Ein weiteres Highlight ist die eigene Infrarot-Sauna, die für zusätzliche Entspannungsmomente sorgt und Ihnen ein wenig Luxus im Alltag bietet. Zudem profitieren Sie von einem praktischen Kellerbereich, der zusätzlichen Stauraum bereithält und einem überdachten PKW-Stellplatz.Mit einem Hausgeld von ca. 320,00 € monatlich ist dieses Objekt nicht nur eine hervorragende Investition, sondern auch ein Ort, an dem Sie sich rundum wohlfühlen können. Der Bezugstermin kann flexibel nach Absprache erfolgen.Diese charmante Wohnung im Herzen von Bad Zwischenahn bietet die perfekte Kombination aus Ruhe, Komfort und Freizeitmöglichkeiten. Zögern Sie nicht länger und vereinbaren Sie noch heute einen Besichtigungstermin, um sich vor Ort von den Vorzügen dieser Immobilie zu überzeugen. *Eine Nutzung und Vermietung als Ferienimmobilie ist ebenso möglich.*
So funktioniert es
- Alle neuen Anzeigen matchen wir kostenlos mit Deinen Suchparametern.
- Passende Angebote senden wir Dir in einer E-Mail pro Tag.
- Du kannst auch verschiedene Suchen anlegen und Dich jederzeit abmelden. Mehr dazu
Wir haben soeben eine E-Mail mit Deinem Suchauftrag an Dich geschickt. – Klicke in dieser Mail auf den Bestätigungslink und schon geht's los. Prüfe ggf. auch Deinen Spamordner.
Es gab ein Problem beim Absenden Deiner E-Mail-Adresse. Bitte versuche es erneut.
WARNUNG: Bitte bestätige Deine E-Mail-Adresse, um regelmäßige Updates zu erhalten.