Attraktives Investment mit stabilen Mieteinnahmen und Entwicklungspotenzial

Kaufpreis 490.000 €
Größe 904 m²
09669 Frankenberg/Sa.

Objektdaten

Veröffentlicht am: 9. Oktober 2025
Energieausweis: Liegt bei der Besichtigung vor
  • Objektbeschreibung

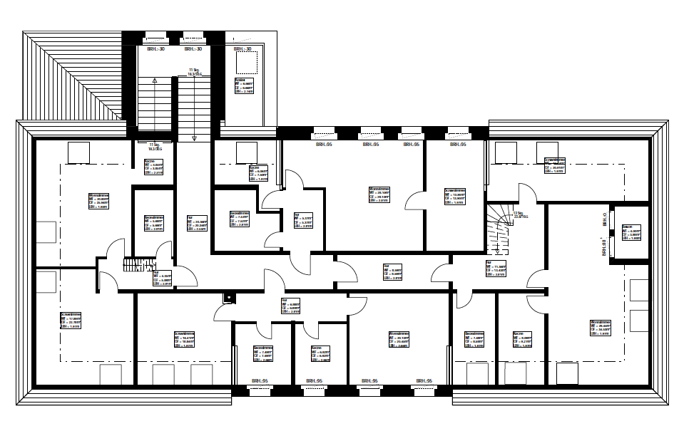
    Zum Verkauf steht ein gepflegtes Mehrfamilienhaus aus dem Baujahr 1896 mit insgesamt 16 Wohneinheiten sowie einer zusätzlichen Lagereinheit. Die gesamte Wohnfläche beträgt ca. 904,51 m², ergänzt durch rund 17,6 m² Lagerfläche. Das Objekt befindet sich auf einem ca. 935 m² großen Grundstück und ist vollständig an einen Mieter vermietet. Die aktuelle Jahresnettokaltmiete beträgt ca. 50.119,92 €, wodurch sich für Kapitalanleger eine stabile und gut kalkulierbare Einnahmequelle ergibt.Im Jahr 1995 wurde das Gebäude umfassend saniert. Im Zuge der Modernisierungsmaßnahmen wurde ein Vollwärmeschutz angebracht und sämtliche Einheiten aufgewertet. Zusätzlich erfolgte der Ausbau weiterer Wohnungen im Dachgeschoss, was die Gesamtnutzfläche erhöht und die Attraktivität des Objekts gesteigert hat. Im Jahr 2015 wurden in Teilbereichen der Immobilie neue Bodenbeläge, überwiegend Laminat, eingebracht, was zum gepflegten Gesamteindruck beiträgt. 2024 wurde die bestehende Heizungsanlage komplett erneuert.Das Objekt befindet sich in einem soliden baulichen Zustand und überzeugt durch eine klare Mieterstruktur sowie langfristige Einnahmensicherheit. Für Kapitalanleger bietet dieses Mehrfamilienhaus eine renditestarke Investitionsmöglichkeit mit langfristiger Perspektive. Die Kombination aus historischer Bausubstanz, solider Ausstattung und der vollständigen Vermietung an einen bonitätsstarken Mieter macht diese Immobilie zu einem attraktiven Investment mit Entwicklungspotenzial.
    Nach oben scrollen