Objektdaten
Objektbeschreibung
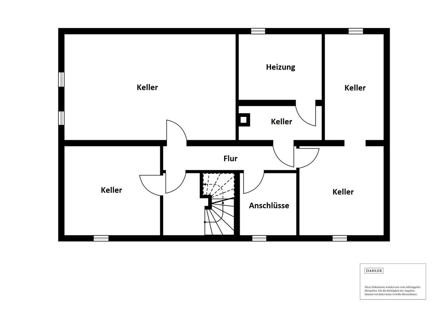
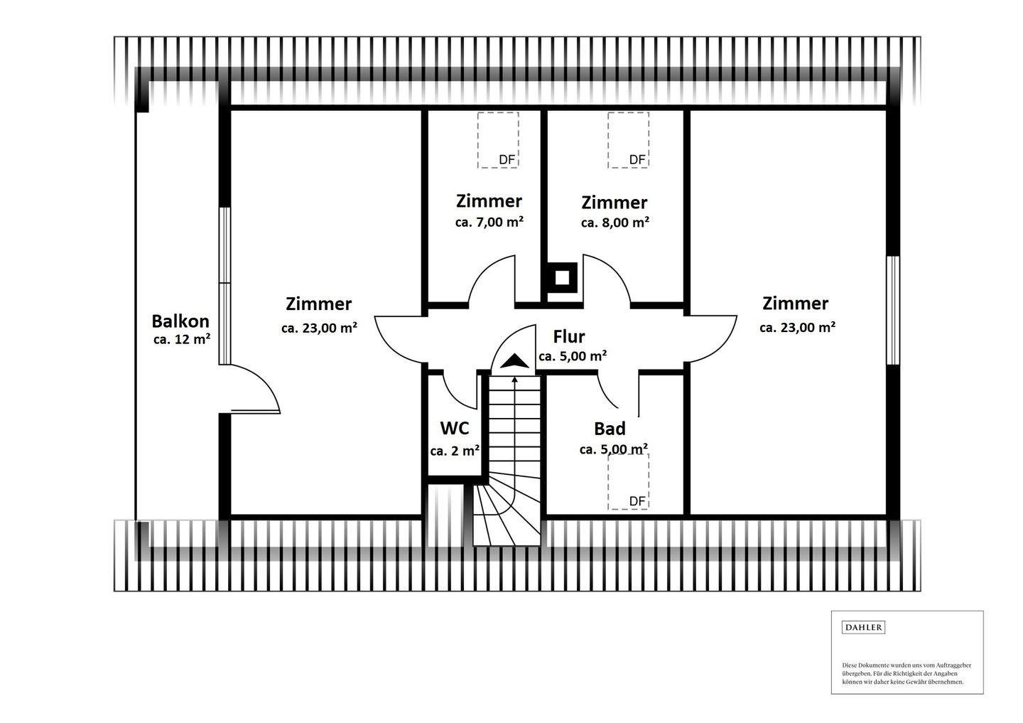
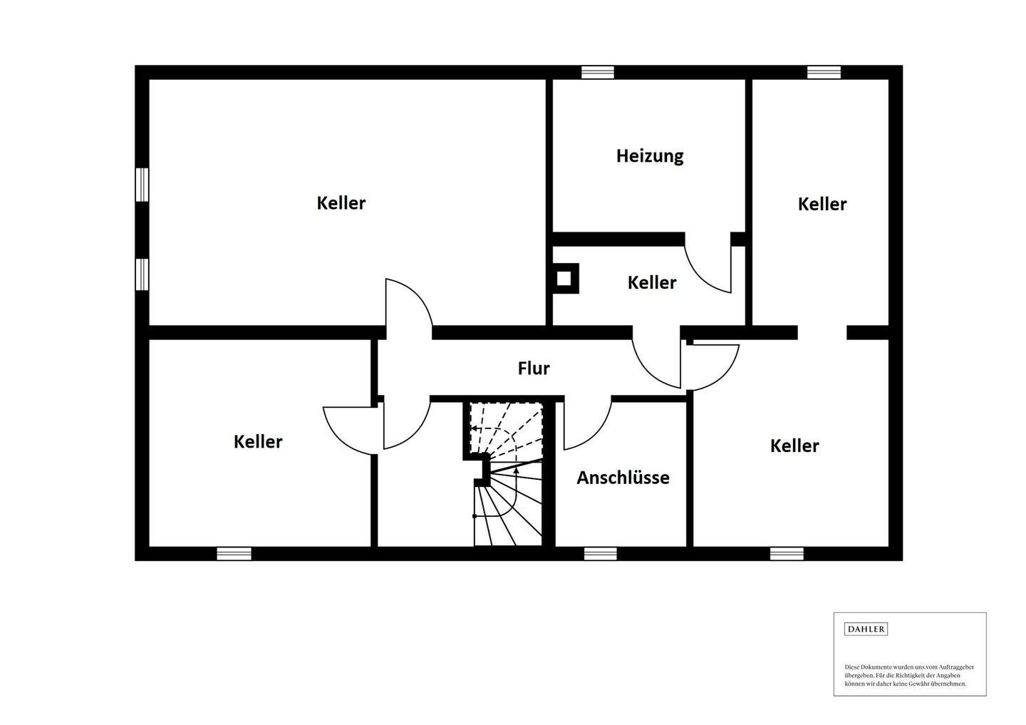
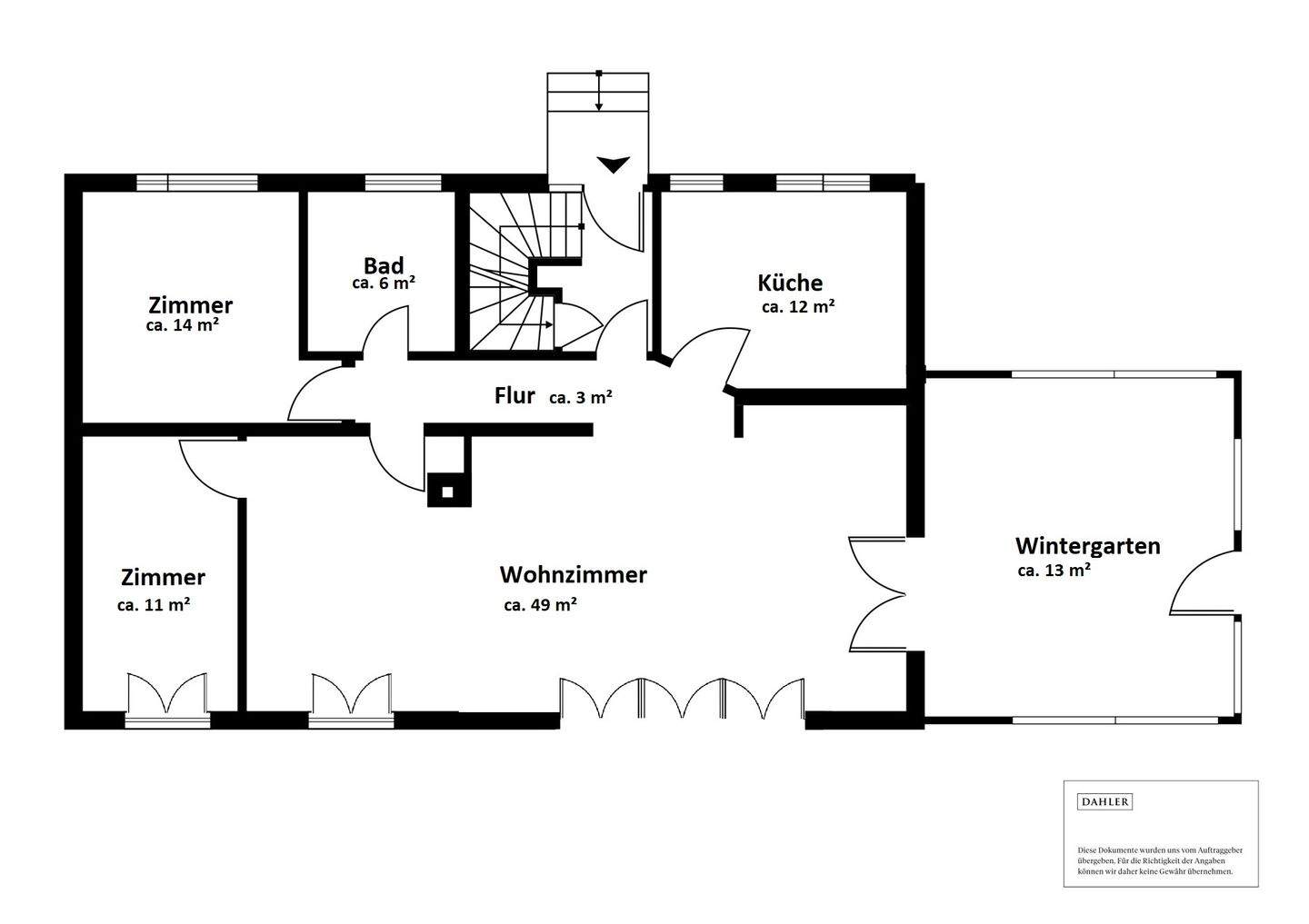
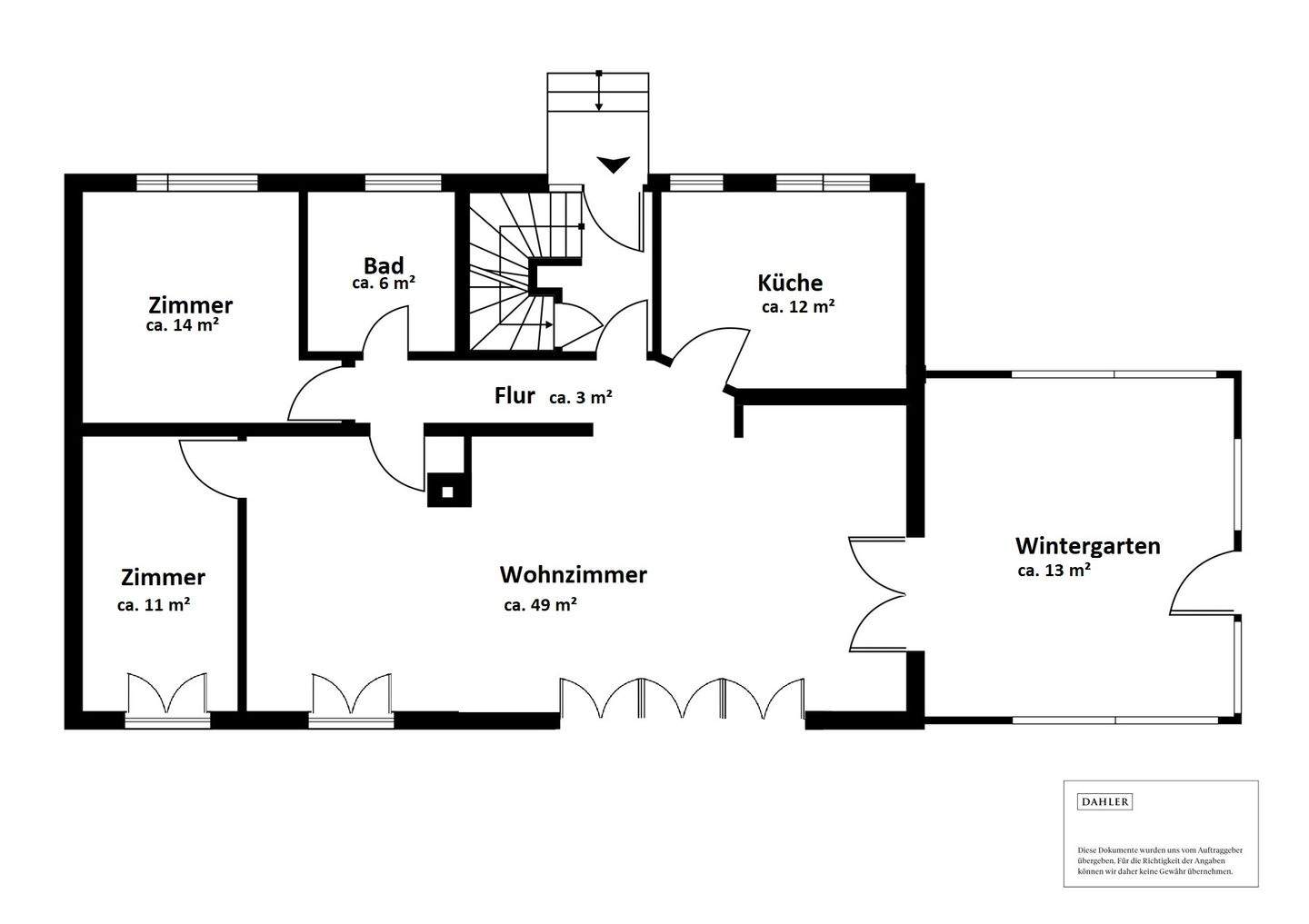
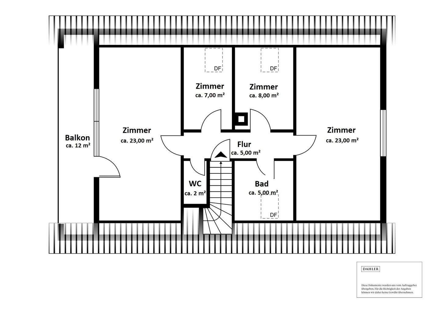
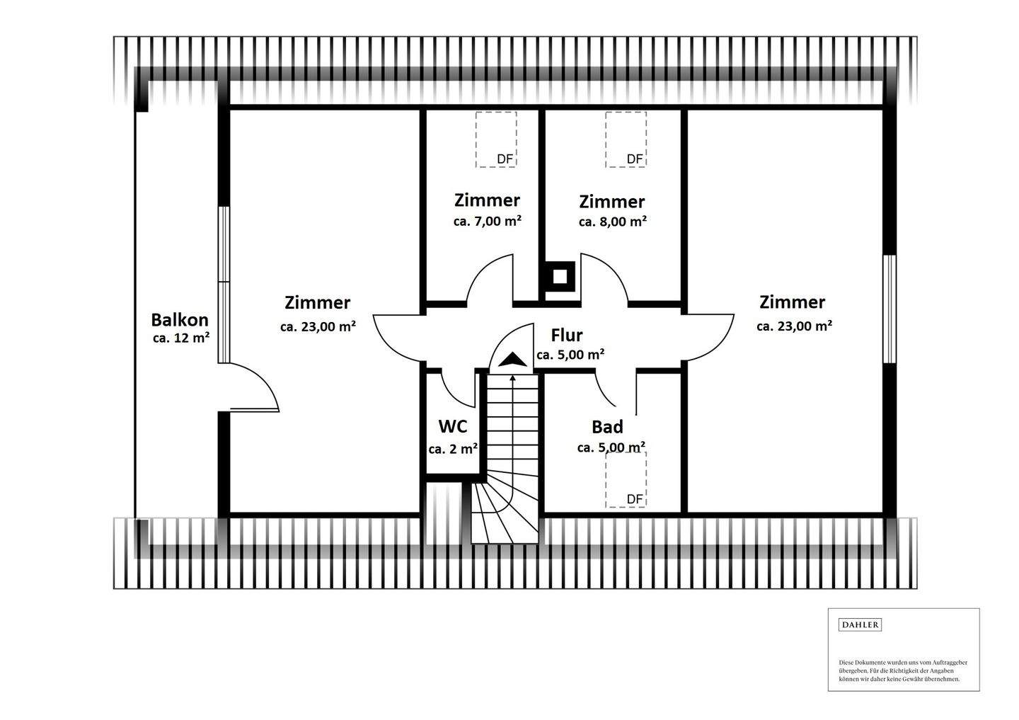
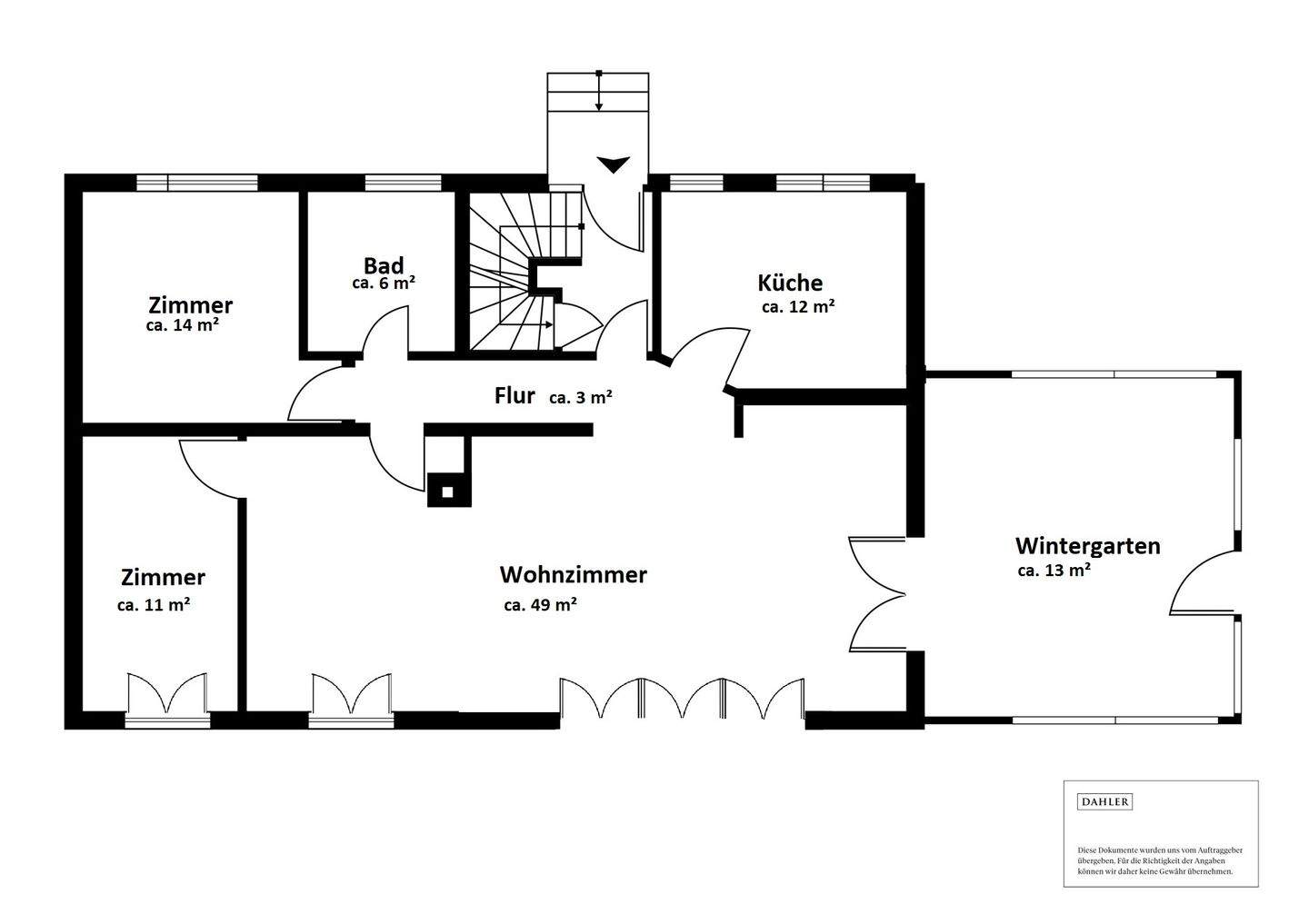
Dieses charmante Einfamilienhaus in konventioneller Bauweise wurde im Jahr 1978 errichtet und liegt ruhig am Ende eines Wendehammers – in direkter Nähe zum idyllischen Forst Klövensteen.Das großzügige Grundstück umfasst rund 1.008?m² und ist ideal nach Westen ausgerichtet – perfekte Voraussetzungen für sonnige Stunden von Mittag bis in den Abend. Mit einer Wohnfläche von ca. 199?m² bietet das Haus ausreichend Platz für die ganze Familie sowie vielfältige Möglichkeiten zur individuellen Gestaltung.Die Raumaufteilung erstreckt sich über zwei Vollgeschosse (Erd- und Obergeschoss) und umfasst insgesamt fünf Zimmer sowie zwei weitere halbe Zimmer. Vom einladenden, hellen Flur gelangt man direkt in den offen gestalteten Wohn- und Essbereich mit ca. 49?m² Fläche. Daran schließt sich ein nach Süden ausgerichteter Wintergarten mit ca. 13?m² an – ein wunderbarer Ort zum Entspannen. Zwei weitere Räume, ideal als Schlaf- oder Arbeitszimmer nutzbar, sowie ein vorbereitetes Duschbad ergänzen das Raumangebot im Erdgeschoss. Die separate Küche ist in einem schlichten Weiß gehalten und funktional ausgestattet.Im Obergeschoss befinden sich zwei großzügige Schlafzimmer mit jeweils ca. 23?m² – eines davon mit einem Balkon über die gesamte Zimmerbreite. Dazwischen liegen zwei kleinere Zimmer mit Blick in den Garten, die sich bei Bedarf zu einem größeren Raum zusammenlegen lassen. Ein Vollbad sowie ein separates WC sorgen auch auf dieser Ebene für Komfort.Das Haus ist vollständig unterkellert und bietet auf ca. 100?m² zusätzliche Nutzfläche bei einer angenehmen Deckenhöhe von ca. 2,20?m. Ein praktischer Schuppen am Haus schafft weiteren Stauraum, beispielsweise für Gartengeräte. Für Fahrzeuge steht eine Doppelgarage mit elektrischem Garagentor zur Verfügung. Auch die Einfahrt ist bequem über ein elektrisches Tor zugänglich.Beheizt wird die Immobilie über eine Gas-Zentralheizung mit Brennwerttechnik aus dem Jahr 1999.Ähnliche Angebote
So funktioniert es
- Alle neuen Anzeigen matchen wir kostenlos mit Deinen Suchparametern.
- Passende Angebote senden wir Dir in einer E-Mail pro Tag.
- Du kannst auch verschiedene Suchen anlegen und Dich jederzeit abmelden. Mehr dazu




