Kaufpreis 1.575.000 €
Zimmer 16
Größe 495 m²
47138 Duisburg
Objektdaten
Veröffentlicht am: 11. Oktober 2025
Energieausweis: Liegt bei der Besichtigung vor
Danke! Bitte bestätige Deine E-Mail-Adresse – wir haben Dir soeben eine Mail geschickt.
Es gab ein Problem beim Absenden. Bitte versuche es erneut.
Bitte bestätige Deine E-Mail-Adresse, um Updates zu erhalten.
Objektbeschreibung
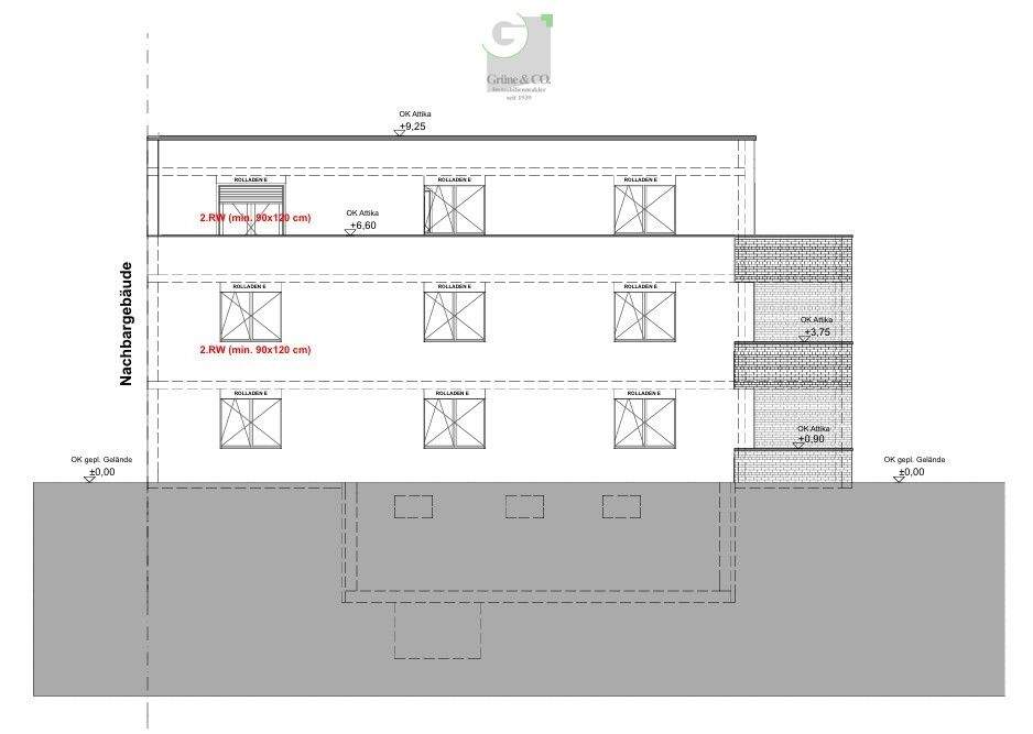
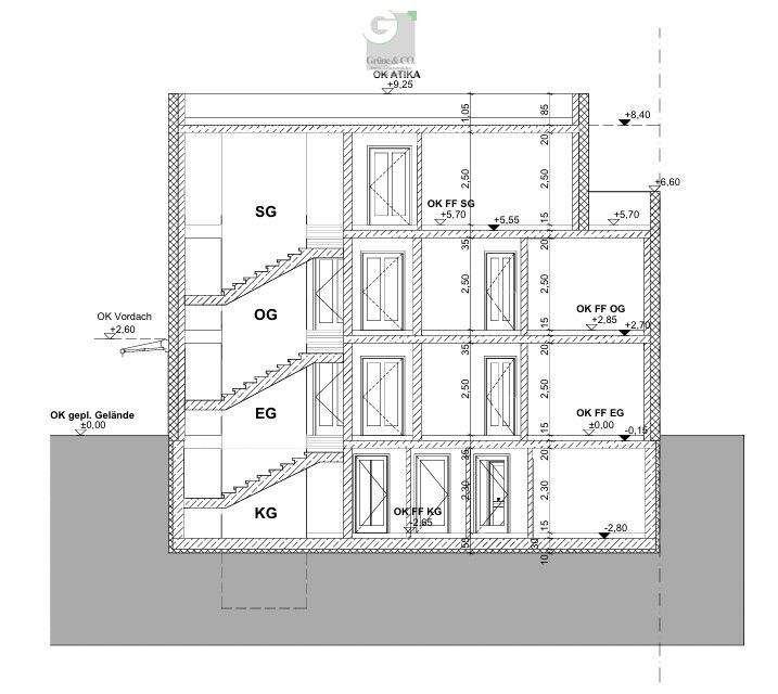
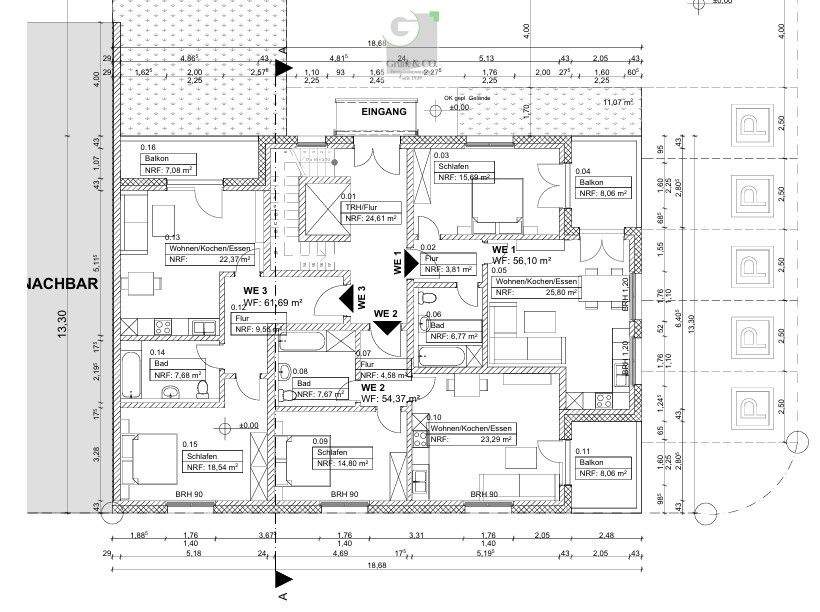
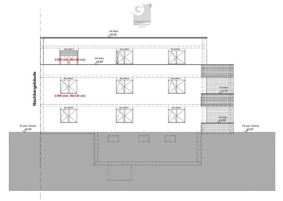
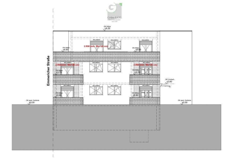
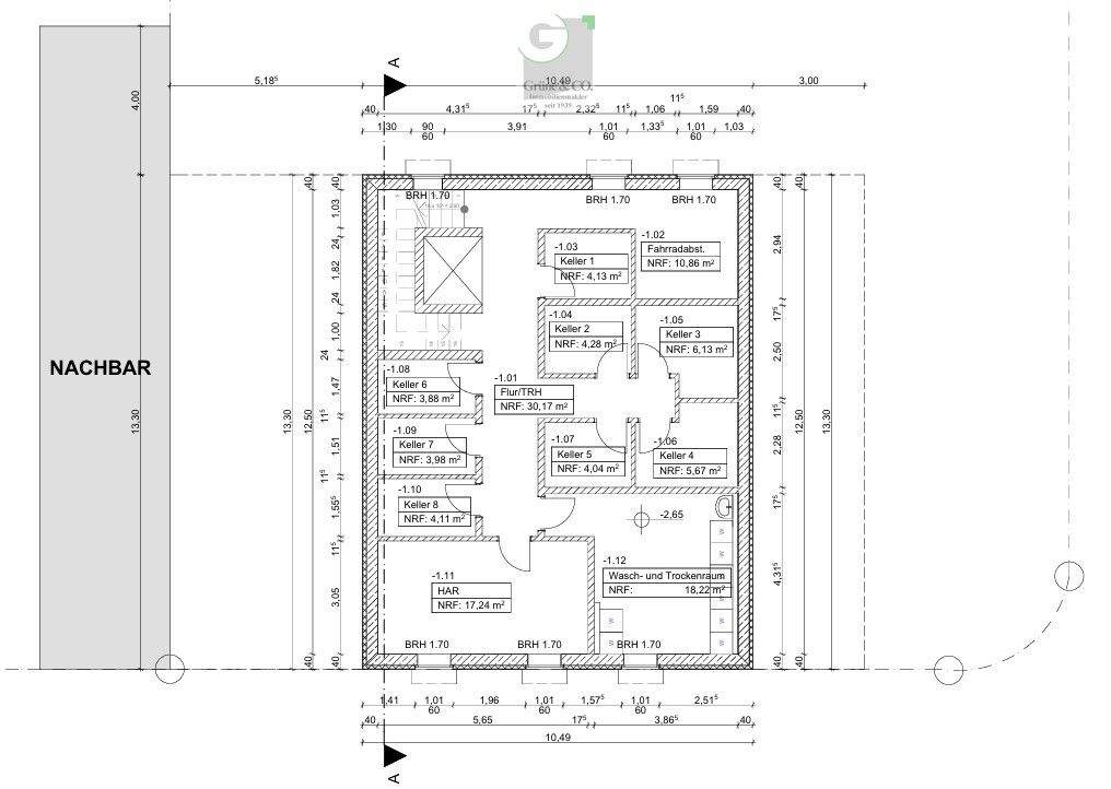
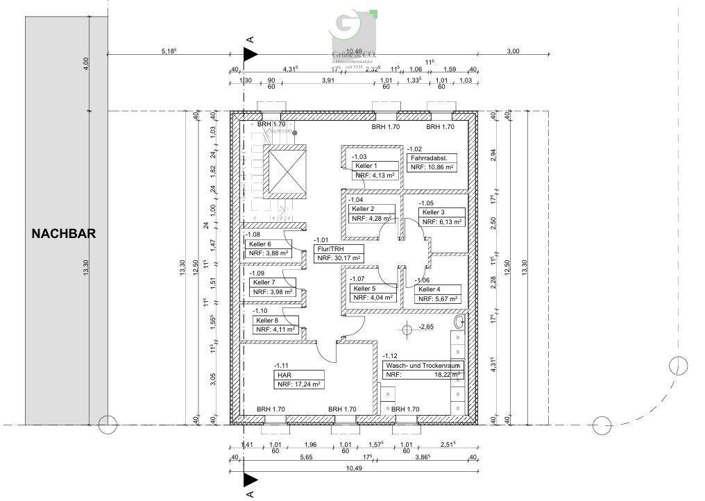
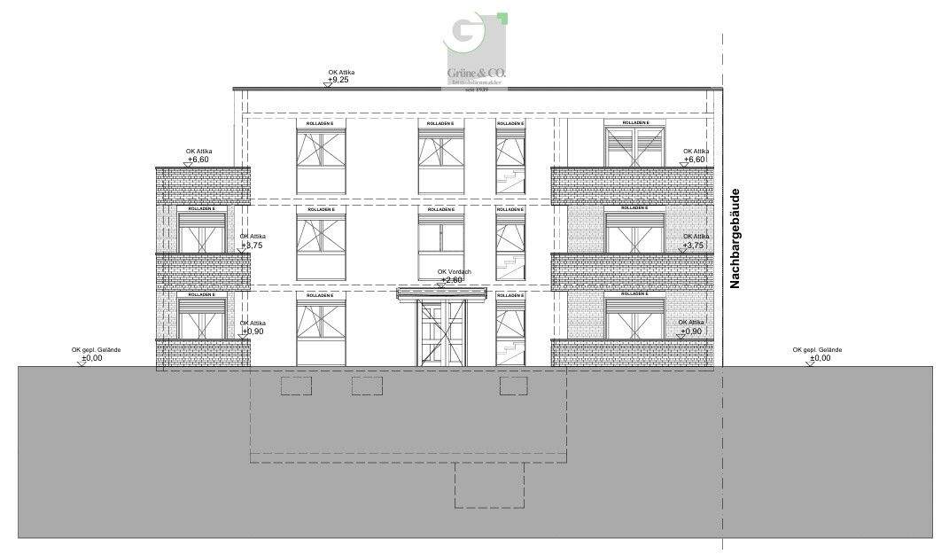
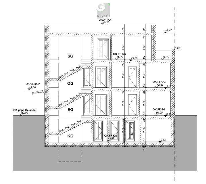
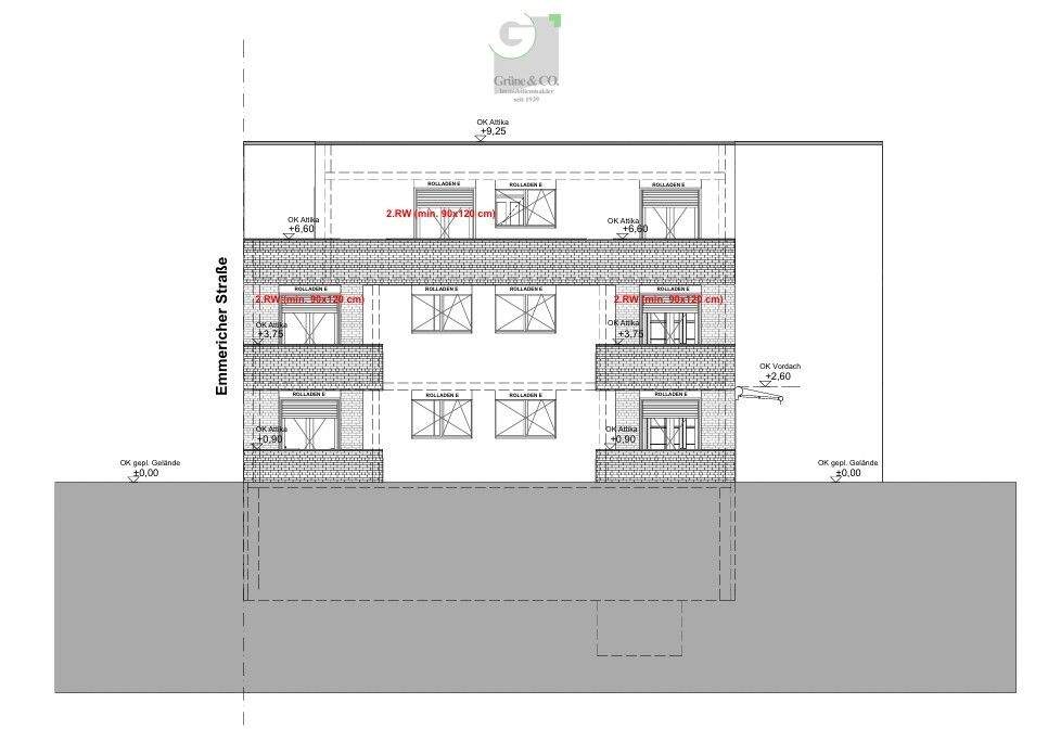
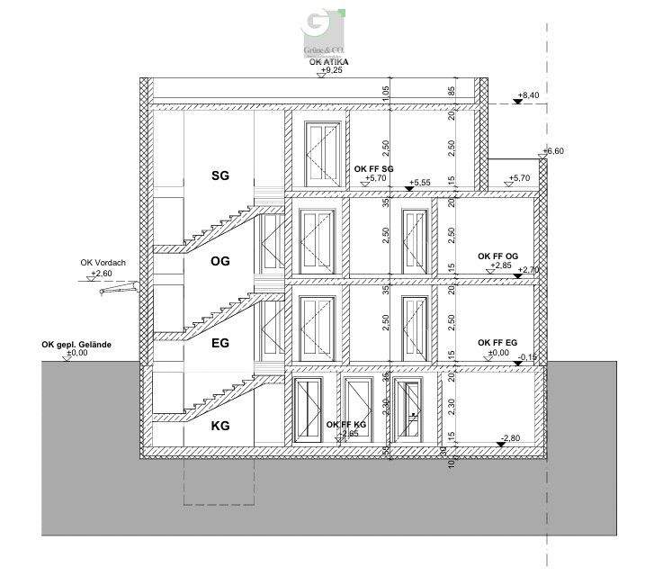
Bei diesem Grundstück handelt es sich um ein projektiertes Mehrfamilienhaus in Duisburg Meiderich auf der Emmericher Straße 85. Das Grundstück verfügt über eine Gesamtfläche von 604 m².Folgende Flurstücke sind dem angebotenen Grundstück zugeordnet:Gemarkung: Meiderich; Flur: 70Flurstück: 187 mit 519 m²Flurstück: 189 mit 85 m²Das Mehrfamilienhaus verfügt über insgesamt 8 Wohneinheiten, die sich wie folgt aufteilen:Wohnung 1Wohnfläche: 56,10 m²Aufteilung: Flur, Wohnessbereich mit offener Küche, Schlafzimmer, Badezimmer, BalkonWohnung 2Wohnfläche: 54,37 m²Aufteilung: Flur, Wohnessbereich mit offener Küche, Schlafzimmer, Badezimmer, BalkonWohnung 3Wohnfläche: 61,69 m²Aufteilung: Flur, Wohnessbereich mit offener Küche, Schlafzimmer, Badezimmer, BalkonWohnung 4Wohnfläche: 56,10 m²Aufteilung: Flur, Wohnessbereich mit offener Küche, Schlafzimmer, Badezimmer, BalkonWohnung 5Wohnfläche: 54,37 m²Aufteilung: Flur, Wohnessbereich mit offener Küche, Schlafzimmer, Badezimmer, BalkonWohnung 6Wohnfläche: 61,69 m²Aufteilung: Flur, Wohnessbereich mit offener Küche, Schlafzimmer, Badezimmer, BalkonWohnung 7Wohnfläche: 75,90 m²Aufteilung: Flur, Wohnessbereich mit offener Küche, Schlafzimmer, Badezimmer, BalkonWohnung 8Wohnfläche: 75,72 m²Aufteilung: Flur, Wohnessbereich mit offener Küche, Schlafzimmer, Badezimmer, 2 BalkonenInsgesamt verfügt das Gebäude über eine Wohnfläche von 495,94 m² und eine Nutzfläche von 187,25 m².Im Keller des Objektes wird jeder Wohnung ein separater Abstellraum zugeordnet. Zusätzlich befindet sich dort der Hausanschlussraum und zur gemeinschaftlichen Nutzung dienender Wasch- und Trockenraum sowie Fahrradabstellraum.Die Baubeschreibung kann bei weiterem Interesse eingesehen werden.
So funktioniert es
- Alle neuen Anzeigen matchen wir kostenlos mit Deinen Suchparametern.
- Passende Angebote senden wir Dir in einer E-Mail pro Tag.
- Du kannst auch verschiedene Suchen anlegen und Dich jederzeit abmelden. Mehr dazu
Wir haben soeben eine E-Mail mit Deinem Suchauftrag an Dich geschickt. – Klicke in dieser Mail auf den Bestätigungslink und schon geht's los. Prüfe ggf. auch Deinen Spamordner.
Es gab ein Problem beim Absenden Deiner E-Mail-Adresse. Bitte versuche es erneut.
WARNUNG: Bitte bestätige Deine E-Mail-Adresse, um regelmäßige Updates zu erhalten.