Kaufpreis 587.350 €
Zimmer 4
Größe 108 m²
93107 Thalmassing
Objektdaten
Veröffentlicht am: 11. Oktober 2025
Energieausweis: Liegt bei der Besichtigung vor
Danke! Bitte bestätige Deine E-Mail-Adresse – wir haben Dir soeben eine Mail geschickt.
Es gab ein Problem beim Absenden. Bitte versuche es erneut.
Bitte bestätige Deine E-Mail-Adresse, um Updates zu erhalten.
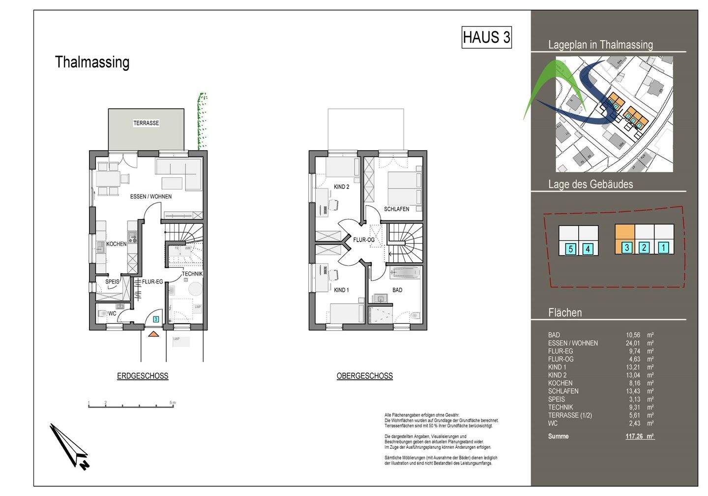
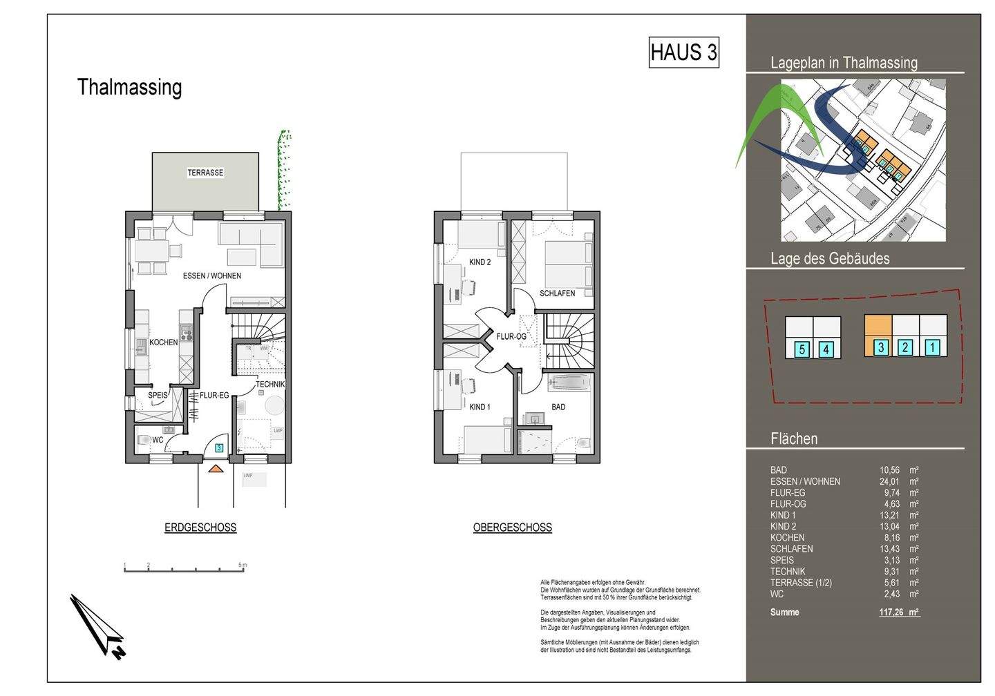
Objektbeschreibung
Dieses attraktive Reiheneckhaus überzeugt durch eine durchdachte Raumaufteilung und eine moderne Architektur, die ein behagliches Zuhause für Paare und Familien gleichermaßen schafft. Auf einer Wohnfläche von rund 108 m² erstrecken sich insgesamt vier Zimmer, Küche und Bad, die sich auf zwei Wohnebenen verteilen. Große Fensterflächen lassen viel Tageslicht in die Räume und schaffen ein angenehmes Wohngefühl.Das Herzstück des Hauses bildet der offen gestaltete Wohn- und Essbereich im Erdgeschoss, der durch den direkten Zugang zur Terrasse und in den eigenen Garten ein besonders helles und freundliches Ambiente erhält. Hier entsteht ein Ort zum Entspannen und Genießen - ob bei geselligen Runden mit Freunden oder im Kreis der Familie. Die angrenzende Küche ist funktional und zeitgemäß geschnitten und bietet mit der separaten Speis zusätzlichen Stauraum für Vorräte. Ein praktisches Gäste-WC sowie der Technikraum runden das Erdgeschoss sinnvoll ab.Im Obergeschoss stehen drei weitere Zimmer zur Verfügung, die flexibel als Schlafzimmer, Kinderzimmer oder Homeoffice genutzt werden können. Das moderne Tageslichtbad überzeugt mit einer hochwertigen Ausstattung und bietet neben einer Dusche auch genügend Platz für eine Badewanne.Das Haus ist nicht unterkellert, bietet jedoch durch die Speis, den Technikraum sowie den Spitzboden, der als zusätzliche Lagerfläche genutzt werden kann, ausreichend Abstellmöglichkeiten. Die Grundstücksgröße umfasst etwa 152 m² und wird durch den eigenen Gartenanteil sowie die Terrasse besonders attraktiv ergänzt. Zusätzlich gehört ein Anteil am gemeinschaftlich genutzten Zufahrtsweg zum Grundstück.Dank der Kombination aus kompakter Bauweise, optimaler Flächennutzung und einem sonnigen Garten bietet dieses Reiheneckhaus ein rundum stimmiges Wohnkonzept, das ideal auf die Bedürfnisse moderner Familien zugeschnitten ist.
So funktioniert es
- Alle neuen Anzeigen matchen wir kostenlos mit Deinen Suchparametern.
- Passende Angebote senden wir Dir in einer E-Mail pro Tag.
- Du kannst auch verschiedene Suchen anlegen und Dich jederzeit abmelden. Mehr dazu
Wir haben soeben eine E-Mail mit Deinem Suchauftrag an Dich geschickt. – Klicke in dieser Mail auf den Bestätigungslink und schon geht's los. Prüfe ggf. auch Deinen Spamordner.
Es gab ein Problem beim Absenden Deiner E-Mail-Adresse. Bitte versuche es erneut.
WARNUNG: Bitte bestätige Deine E-Mail-Adresse, um regelmäßige Updates zu erhalten.