Kaufpreis 145.000 €
Zimmer 6
Größe 104 m²
07318 Saalfeld/Saale
Objektdaten
Veröffentlicht am: 13. Oktober 2025
Frei ab: 31. August 2025
Baujahr: 1931
Energieausweis: Liegt bei der Besichtigung vor
Danke! Bitte bestätige Deine E-Mail-Adresse – wir haben Dir soeben eine Mail geschickt.
Es gab ein Problem beim Absenden. Bitte versuche es erneut.
Bitte bestätige Deine E-Mail-Adresse, um Updates zu erhalten.
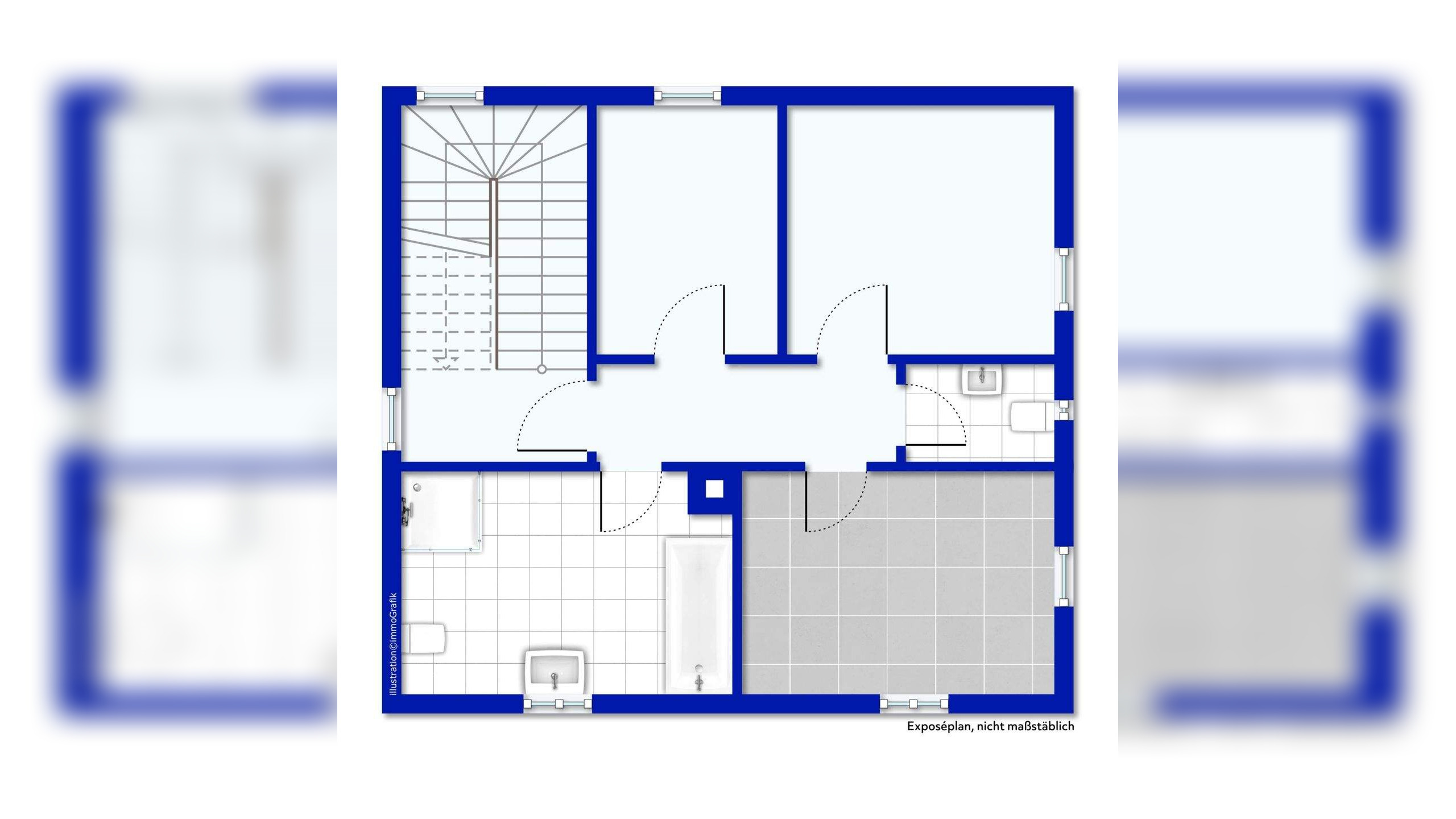
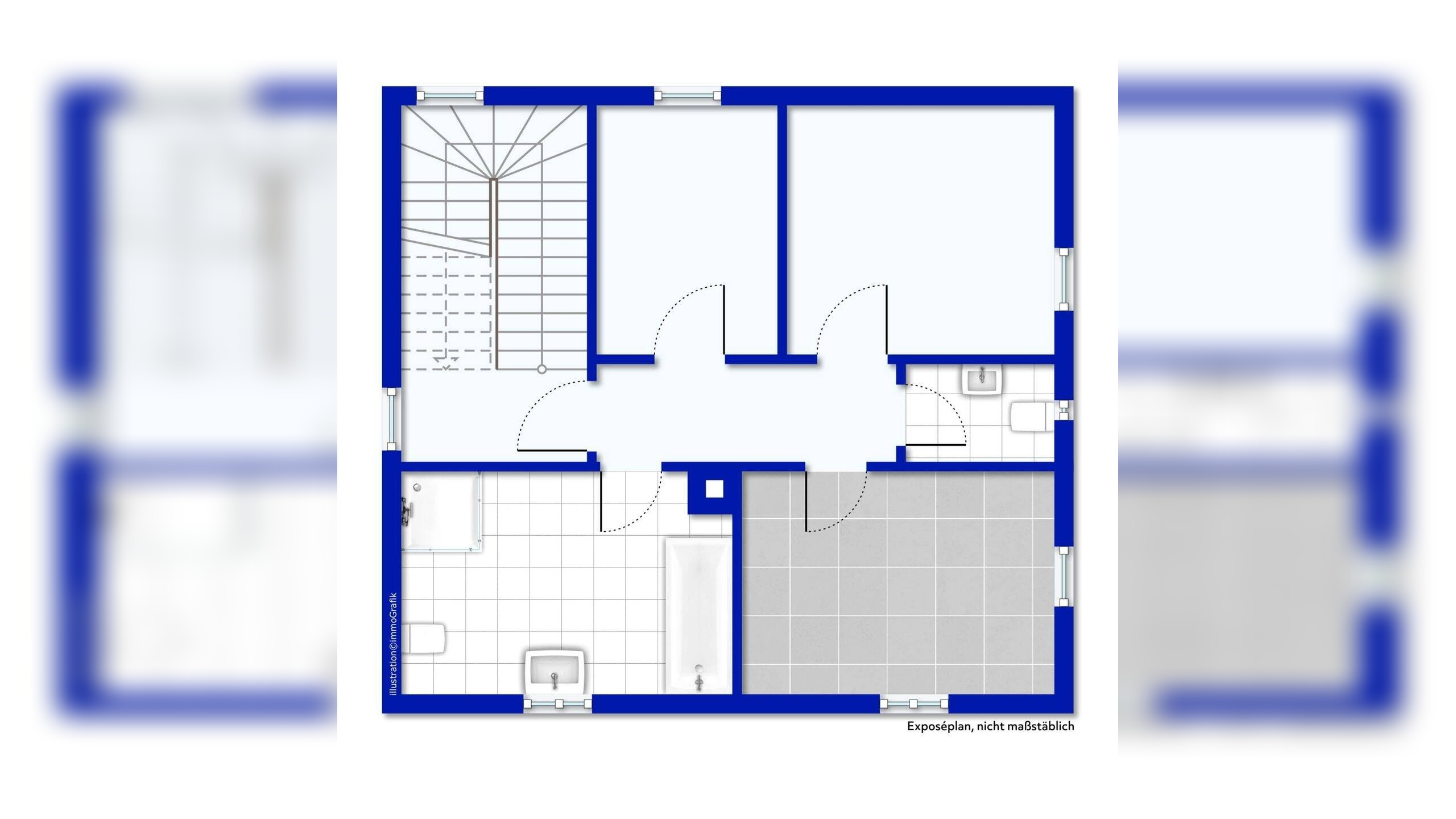
Objektbeschreibung
Gerne stellen wir Ihnen weitere Informationen zu dieser Immobilie zur Verfügung, wie z.B. die Adresse und weitere Fotos. Dazu erhalten Sie automatisch nach Ihrer Anfrage eine Service Email von Deutsche Bank Immobilien GmbH. Bitte beachten Sie die darin enthaltenen Hinweise, damit wir Ihre Anfrage auch zeitnah beantworten können. Manchmal befindet sich unsere Service Email auch in Ihrem Spam Ordner, bitte sehen Sie ggf. auch dort nach.Ihr neues Zuhause in Saalfeld - viel Platz für die ganze Familie!Dieses großzügige Einfamilienhaus bietet die perfekte Grundlage für Ihr Familienglück. Auf zwei Etagen stehen Ihnen helle, freundliche Räume mit viel Platz zum Wohnen, Arbeiten und Entspannen zur Verfügung. Dank bereits durchgeführter Renovierungen präsentiert sich das Haus in einem gepflegten Zustand - einige Bereiche warten noch darauf, nach Ihren persönlichen Vorstellungen modernisiert zu werden. So können Sie Ihr Zuhause Schritt für Schritt individuell gestalten. Beispielsweise wurde das Dachgeschoss bereits gedämmt und wartet auf Ideen.Das Haus überzeugt durch seine familienfreundliche Aufteilung: geräumige Schlafzimmer, ein lichtdurchflutetes Wohnzimmer mit Ausgang zur künftigen Terrasse im Innenhof sowie eine großzügige Küche bieten ideale Voraussetzungen für gemeinsames Familienleben. Kinder finden hier ebenso wie Eltern ausreichend Rückzugsmöglichkeiten.Ein besonderes Plus: Zum Haus gehört ein zweites Grundstück mit großem Garten, das zahlreiche Möglichkeiten eröffnet - sei es für einen Spielplatz, einen Nutz- oder Ziergarten, Freizeitaktivitäten oder einfach als grüne Oase für die ganze Familie.Dank der guten Lage in Saalfeld profitieren Sie von einer hervorragenden Infrastruktur: Schulen, Kindergärten, Einkaufsmöglichkeiten und Freizeitangebote, wie Fitnesscenter und Kletterhalle, befinden sich in unmittelbarer Nähe. Auch die Anbindung an Jena, Weimar und Erfurt macht den Standort besonders attraktiv für Berufspendler.Ein Haus mit Zukunftsperspektive: Ideal für Familien, die viel Raum schätzen, Wert auf ein zusätzliches Grundstück legen und ein Zuhause suchen, das schon heute überzeugt und zugleich Raum für eigene Ideen lässt.
So funktioniert es
- Alle neuen Anzeigen matchen wir kostenlos mit Deinen Suchparametern.
- Passende Angebote senden wir Dir in einer E-Mail pro Tag.
- Du kannst auch verschiedene Suchen anlegen und Dich jederzeit abmelden. Mehr dazu
Wir haben soeben eine E-Mail mit Deinem Suchauftrag an Dich geschickt. – Klicke in dieser Mail auf den Bestätigungslink und schon geht's los. Prüfe ggf. auch Deinen Spamordner.
Es gab ein Problem beim Absenden Deiner E-Mail-Adresse. Bitte versuche es erneut.
WARNUNG: Bitte bestätige Deine E-Mail-Adresse, um regelmäßige Updates zu erhalten.