Familienfreundliches 6-Zimmer-Reihenhaus mit Hobbyraum und Garten in Obermenzing
Kaufpreis 1.250.000 €
Zimmer 6
Größe 165 m²
81247 München
Objektdaten
Veröffentlicht am: 13. Oktober 2025
Energieausweis: Liegt bei der Besichtigung vor
Danke! Bitte bestätige Deine E-Mail-Adresse – wir haben Dir soeben eine Mail geschickt.
Es gab ein Problem beim Absenden. Bitte versuche es erneut.
Bitte bestätige Deine E-Mail-Adresse, um Updates zu erhalten.
Objektbeschreibung
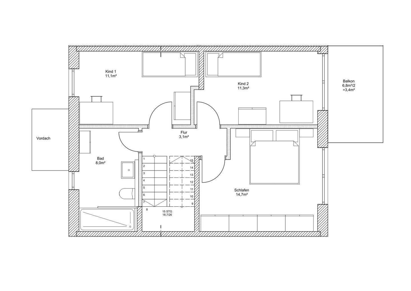
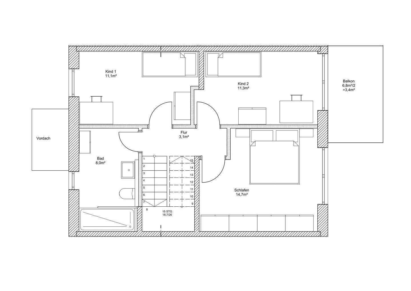
Menzinger Trilogie - Stadthäuser im Grünen ObermenzingIm gefragten Münchner Westen, eingebettet in ein ruhiges und etabliertes Wohngebiet von Oberermenzing, entsteht die hochwertige Menzinger Trilogie drei stilvolle Stadthäuser, die modernes Design mit funktionalem Wohnkomfort verbinden.WOHNQUALITÄT NEU ERLEBEN - LICHT, RAUM UND ELEGANZAuf rund 165?m² Wohnfläche (201?m² Wohn- und Nutzfläche) erstreckt sich das Haus über mehrere Etagen mit einem durchdachten, klar gegliederten Grundriss. Die hellen, offen gestalteten Räume schaffen eine moderne, großzügige Wohnatmosphäre - perfekt für das Leben mit Familie oder stilvolles Arbeiten von zu Hause aus.Das Zentrum des Hauses bildet der weitläufige Wohn- und Essbereich mit offener Küche. Große Fensterflächen lassen viel Licht herein und öffnen den Raum zum privaten Garten hin - ein harmonisches Zusammenspiel von Innen- und Außenbereich, das zum Wohlfühlen, Entspannen und Genießen einlädt.FLEXIBEL WOHNEN - DURCHDACHT UND VIELSEITIGSechs individuell gestaltbare Zimmer bieten Raum für persönliche Lebenskonzepte - sei es als Kinder-, Gäste- oder Arbeitszimmer. Zwei geschmackvoll ausgestattete Tageslichtbäder sowie ein separates Gäste-WC sorgen für zusätzlichen Komfort. Im Untergeschoss eröffnet ein großzügiger Hobbyraum mit Tageslicht weitere Nutzungsmöglichkeiten - ideal für Freizeit, Fitness oder Homeoffice. Ergänzt wird das Raumangebot durch einen separaten Abstellraum im Keller, der praktischen Stauraum für einen gut organisierten Alltag bietet.ZEITLOSE ÄSTHETIK TRIFFT PRAXISNAHEN KOMFORTAusgewählte Materialien, ein stimmiges, modernes Farbkonzept und feine Ausstattungsdetails verleihen dem Haus eine schlichte, elegante Ausstrahlung. Ein eigener Stellplatz direkt am Haus ergänzt das Ensemble sinnvoll - für einen komfortablen Alltag ohne Abstriche.EIN BESONDERER ORT ZUM LEBENDie Menzinger-Trilogie vereint stilvolles Wohnen mit ruhiger, naturnaher Lage - nur wenige Schritte von der Würm, dem Pasinger Stadtpark und mit schneller Anbindung ins Münchner Zentrum. Alles für den Alltag ist bequem erreichbar: Schulen, Kitas, Einkaufsmöglichkeiten und vielfältige Freizeitangebote schaffen ein ideales Umfeld für Familien und anspruchsvolle Stadtmenschen.Neben dem hier angebotenen Haus stehen zwei weitere Einheit dieses besonderen Ensembles zum Verkauf. Auf Wunsch senden wir Ihnen gerne auch hierfür ein Exposé zu.
Alle neuen Anzeigen matchen wir kostenlos mit Deinen Suchparametern.
Passende Angebote senden wir Dir in einer E-Mail pro Tag.
Du kannst auch verschiedene Suchen anlegen und Dich jederzeit abmelden. Mehr dazu
Wir haben soeben eine E-Mail mit Deinem Suchauftrag an Dich geschickt. – Klicke in dieser Mail auf den Bestätigungslink und schon geht's los. Prüfe ggf. auch Deinen Spamordner.
Es gab ein Problem beim Absenden Deiner E-Mail-Adresse. Bitte versuche es erneut.
WARNUNG: Bitte bestätige Deine E-Mail-Adresse, um regelmäßige Updates zu erhalten.
Sie sehen gerade einen Platzhalterinhalt von Turnstile. Um auf den eigentlichen Inhalt zuzugreifen, klicken Sie auf die Schaltfläche unten. Bitte beachten Sie, dass dabei Daten an Drittanbieter weitergegeben werden.
Sie sehen gerade einen Platzhalterinhalt von Vimeo. Um auf den eigentlichen Inhalt zuzugreifen, klicken Sie auf die Schaltfläche unten. Bitte beachten Sie, dass dabei Daten an Drittanbieter weitergegeben werden.
Sie sehen gerade einen Platzhalterinhalt von YouTube. Um auf den eigentlichen Inhalt zuzugreifen, klicken Sie auf die Schaltfläche unten. Bitte beachten Sie, dass dabei Daten an Drittanbieter weitergegeben werden.
Sie sehen gerade einen Platzhalterinhalt von Turnstile. Um auf den eigentlichen Inhalt zuzugreifen, klicken Sie auf die Schaltfläche unten. Bitte beachten Sie, dass dabei Daten an Drittanbieter weitergegeben werden.