Objektdaten
Objektbeschreibung
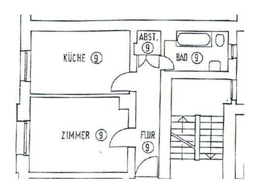
Diese attraktive 1-Zimmer-Wohnung liegt im 3. Obergeschoss eines gepflegten Mehrfamilienhauses in der beliebten Mannheimer Schwetzingerstadt. Auf ca. 43 m² Wohnfläche überzeugt sie mit einer optimalen Raumaufteilung und hellen Räumen. Das großzügige Schlafzimmer bietet ausreichend Platz für ein komfortables Bett, Stauraum sowie einen Schreibtisch. Damit eignet sich der Raum ideal für Homeoffice oder eine ruhige Arbeitsecke. Die Küche ist mit einer Einbauküche ausgestattet und groß genug, um als gemütliche Wohnküche genutzt zu werden. Hier lassen sich Kochen, Essen und Wohnen perfekt miteinander verbinden. Ein modernes Tageslichtbad rundet das attraktive Gesamtbild ab. Die Wohnung ist aktuell vermietet und erzielt eine Jahreskaltmiete von 7.380 Euro. Damit stellt die Immobilie eine solide Kapitalanlage in einer der begehrtesten Wohnlagen Mannheims dar.Ähnliche Angebote
So funktioniert es
- Alle neuen Anzeigen matchen wir kostenlos mit Deinen Suchparametern.
- Passende Angebote senden wir Dir in einer E-Mail pro Tag.
- Du kannst auch verschiedene Suchen anlegen und Dich jederzeit abmelden. Mehr dazu




