Objektdaten
Objektbeschreibung
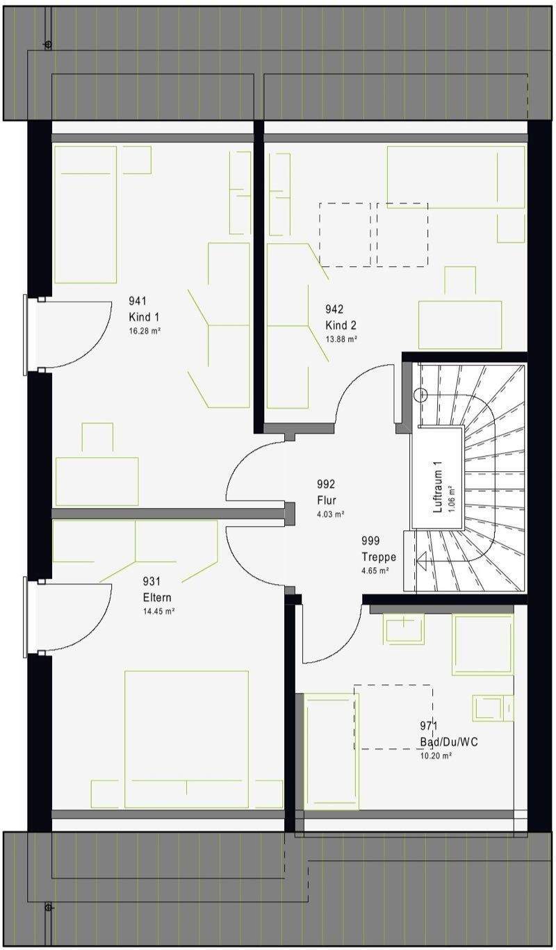
Die kubische Form ist der Klassiker im Stadthausdesign und prägt auch das Aussehen unseres Stadthaus Flair 124. Im Inneren setzt sich der urbane Stil fort: der großzügige Wohn- und Essbereich erstreckt sich über die gesamte Hausbreite und ist das Herzstück des Hauses. Große Fenster lassen viel Tageslicht hinein und führen gleich hinaus zu Ihrem Wohnzimmer im Grünen – der Terrasse. In der Küche haben Sie viel Platz für gemeinsame Kochabende und das Familienfrühstück unter der Woche. Auch das Obergeschoss zeigt sich im klaren Baustil des Flair 124. Hier befinden sich drei Räume, die Sie als Schlaf-, Kinder-, Gäste- oder Arbeitszimmer nutzen können. Dank großer Fenster wirken alle Zimmer hell und freundlich. Schlicht, schick, mit vielen Details und klarer Linie – im Stadthaus Flair 124 werden Sie sich wohlfühlen.So funktioniert es
- Alle neuen Anzeigen matchen wir kostenlos mit Deinen Suchparametern.
- Passende Angebote senden wir Dir in einer E-Mail pro Tag.
- Du kannst auch verschiedene Suchen anlegen und Dich jederzeit abmelden. Mehr dazu




