Objektdaten
Objektbeschreibung
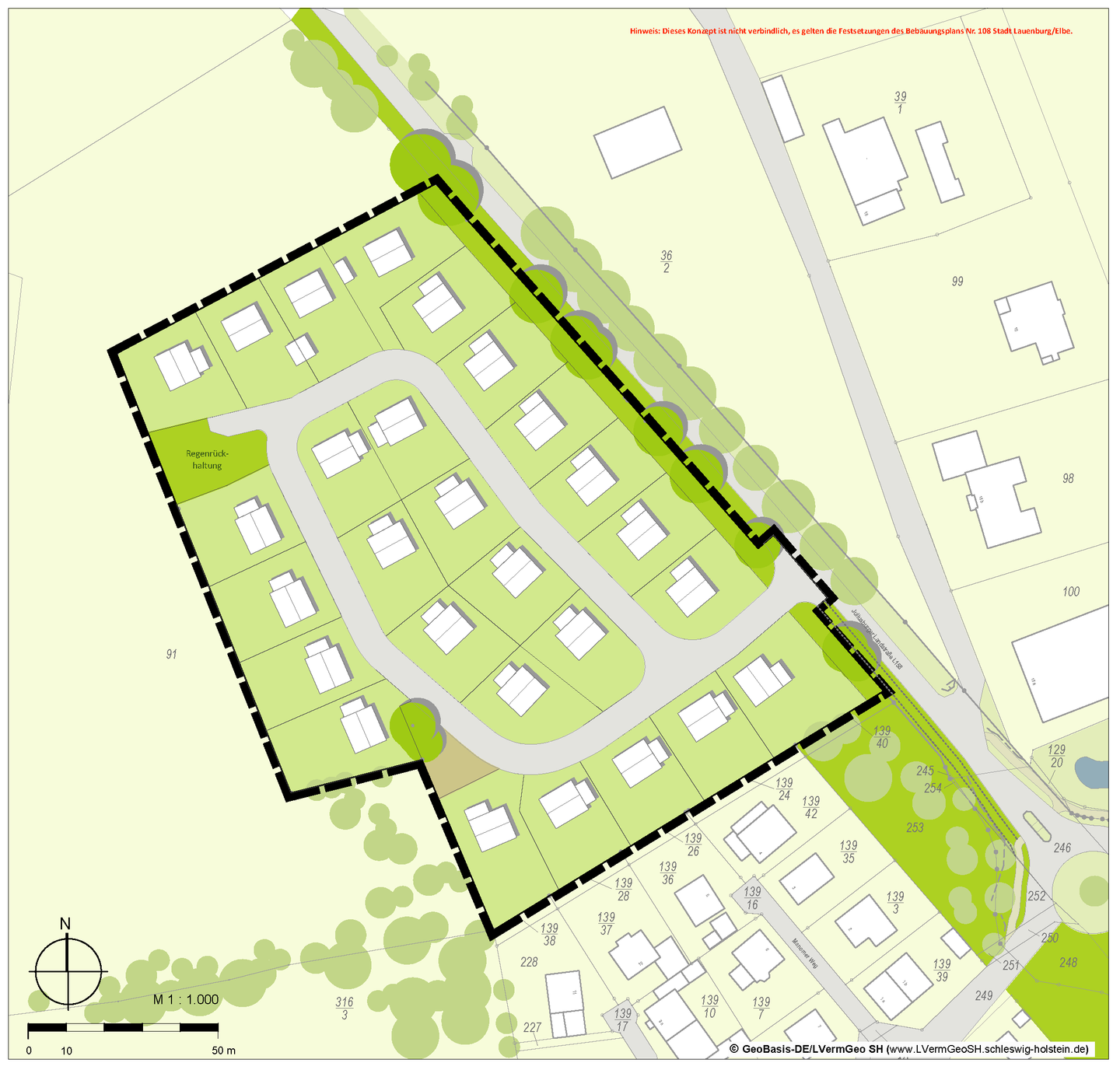
Es handelt sich um die Erschließung von 27 und den Verkauf von 22 Baugrundstücken für Einzel- und Doppelhäuser. Die Grundstücksgrößen liegen zwischen 525 m² und 722 m². Die Kaufpreise beginnen ab 153.825 € und variieren mit der jeweiligen Grundstücksgröße. Die Erschließungsarbeiten sind fertiggestellt. Die Hochbaureife ist erreicht. Detaillierte Informationen und Unterlagen fordern Sie bitte direkt über diese Internetseite an.Ähnliche Angebote
So funktioniert es
- Alle neuen Anzeigen matchen wir kostenlos mit Deinen Suchparametern.
- Passende Angebote senden wir Dir in einer E-Mail pro Tag.
- Du kannst auch verschiedene Suchen anlegen und Dich jederzeit abmelden. Mehr dazu

