Objektdaten
Objektbeschreibung
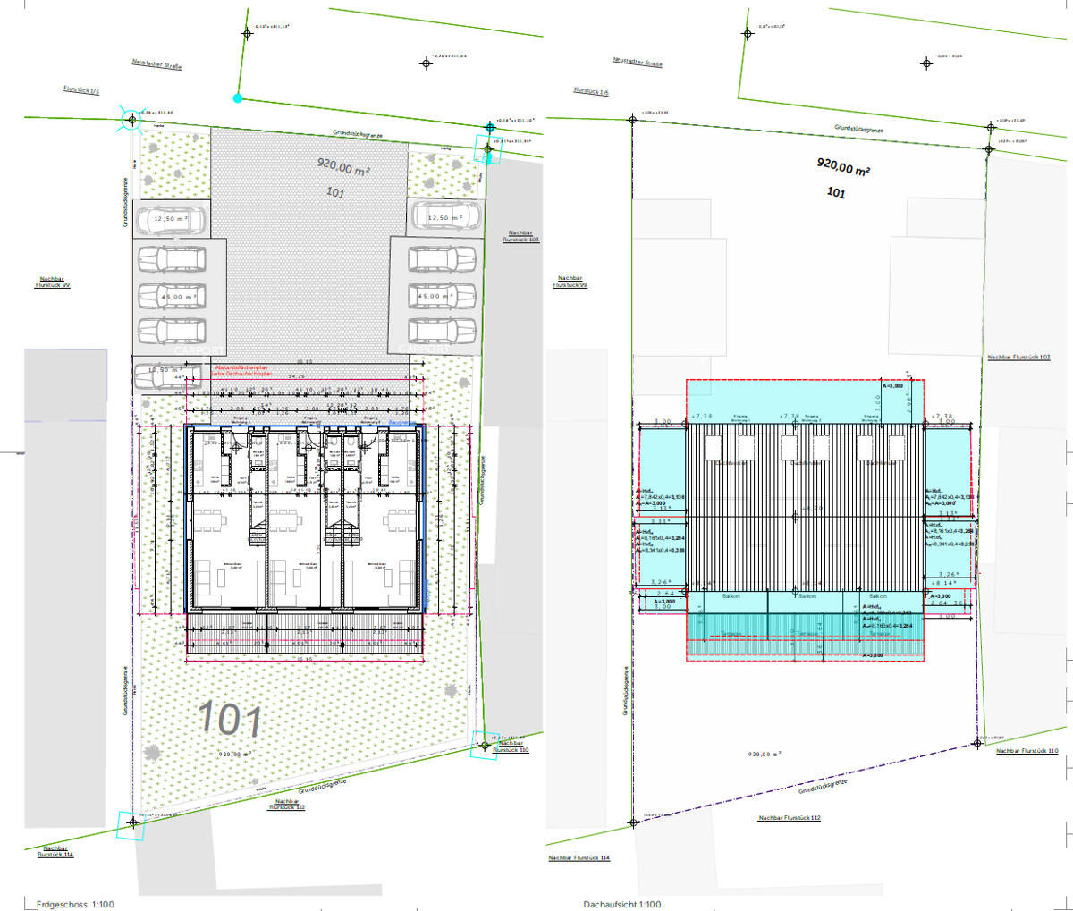
Das hier angebotene Grundstück befindet sich in der Marktgemeinde Weisendorf unweit des Schloßgartens. Das Grundstück weißt gemäß Grundbuch eine Gesamtfläche von 920m² auf. Der Abriss des Bestandsgebäudes ist erfolgt. Eintragungen wie Dienstbarkeiten o.ä. in Abt. II des Grundbuchs sind nicht vorhanden. Das Grundstück ist groß genug für eine Bebauung von einem großen Einfamilenhaus, drei Reihenhäusern, einem Doppelhaus oder einem Mehrfamilenhaus. Da das Grundstück unbebaut ist, könnte direkt mit der Planung sowie dem Bau nach §34 BauGB angefangen werden. Der Verkauf erfolgt provisionsfrei.Sie möchten noch mehr erfahren? Dann melden Sie sich bei uns unter 0911/ 24 77 526 oder unter [email protected].So funktioniert es
- Alle neuen Anzeigen matchen wir kostenlos mit Deinen Suchparametern.
- Passende Angebote senden wir Dir in einer E-Mail pro Tag.
- Du kannst auch verschiedene Suchen anlegen und Dich jederzeit abmelden. Mehr dazu




