Kaufpreis 158.000 €
29225 Celle
Objektdaten
Veröffentlicht am: 17. Oktober 2025
Danke! Bitte bestätige Deine E-Mail-Adresse – wir haben Dir soeben eine Mail geschickt.
Es gab ein Problem beim Absenden. Bitte versuche es erneut.
Bitte bestätige Deine E-Mail-Adresse, um Updates zu erhalten.
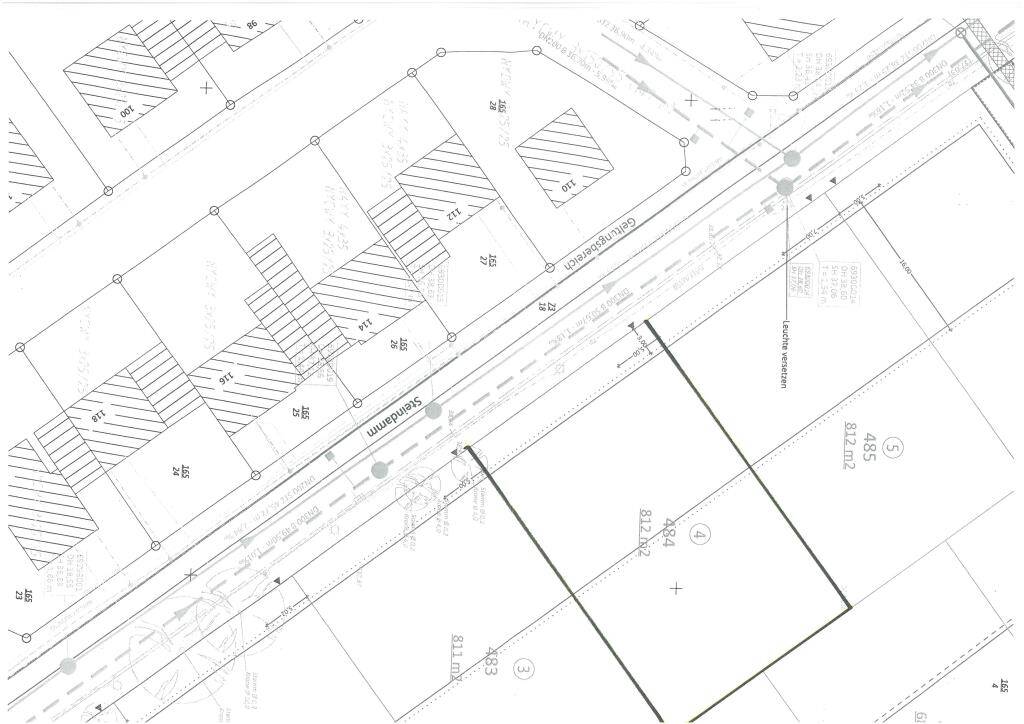
Objektbeschreibung
Sichern Sie sich jetzt Ihren Traum-Bauplatz in einem beliebten Neubaugebiet. Der Bauplatz Nr. 4 überzeugt mit einer großzügigen Fläche von 812m². Ob als Kapitalanlage oder zur Verwirklichung Ihres Wohntraums - dieser Bauplatz bietet Ihnen vielseitige Möglichkeiten in bester Nachbarschaft ! Der vorhandene B-Plan Nr. 154 der Stadt Celle " Wohngebiet am Regeberg " regelt eine mögliche künftige Bebauung. Diese sollte innerhalb der nächsten 2 Jahren erfolgen. Die GFZ wurde mit 0,3 ermittelt.Die Hausanschlusskosten ( Strom, Wasser, Abwasser, Gas, Kabel etc. ) obliegen dem Käufer. Die Vermarktung erfolgt provisions und bauträgerfrei. Kontaktieren Sie uns gerne, wir freuen uns auf Sie !
So funktioniert es
- Alle neuen Anzeigen matchen wir kostenlos mit Deinen Suchparametern.
- Passende Angebote senden wir Dir in einer E-Mail pro Tag.
- Du kannst auch verschiedene Suchen anlegen und Dich jederzeit abmelden. Mehr dazu
Wir haben soeben eine E-Mail mit Deinem Suchauftrag an Dich geschickt. – Klicke in dieser Mail auf den Bestätigungslink und schon geht's los. Prüfe ggf. auch Deinen Spamordner.
Es gab ein Problem beim Absenden Deiner E-Mail-Adresse. Bitte versuche es erneut.
WARNUNG: Bitte bestätige Deine E-Mail-Adresse, um regelmäßige Updates zu erhalten.