Objektdaten
Objektbeschreibung
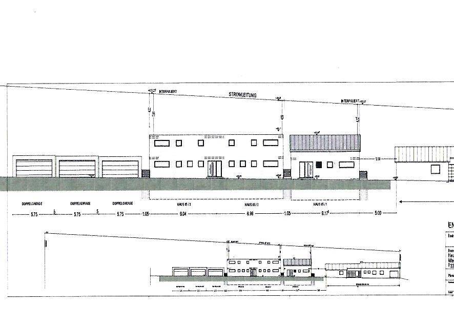
Das Grundstück befindet sich in einer ruhigen 30-iger Zone in sonniger Lage von Geislingen. (Weingärten) . Der Bauplatz, mit Zugang zum Wasser, bietet verschiedene Bebauungsmöglichkeiten die bereits vom Architekten geplant wurden. (Siehe Bilder)Mehr unter www.neckartal.immo!So funktioniert es
- Alle neuen Anzeigen matchen wir kostenlos mit Deinen Suchparametern.
- Passende Angebote senden wir Dir in einer E-Mail pro Tag.
- Du kannst auch verschiedene Suchen anlegen und Dich jederzeit abmelden. Mehr dazu




