Objektdaten
Objektbeschreibung
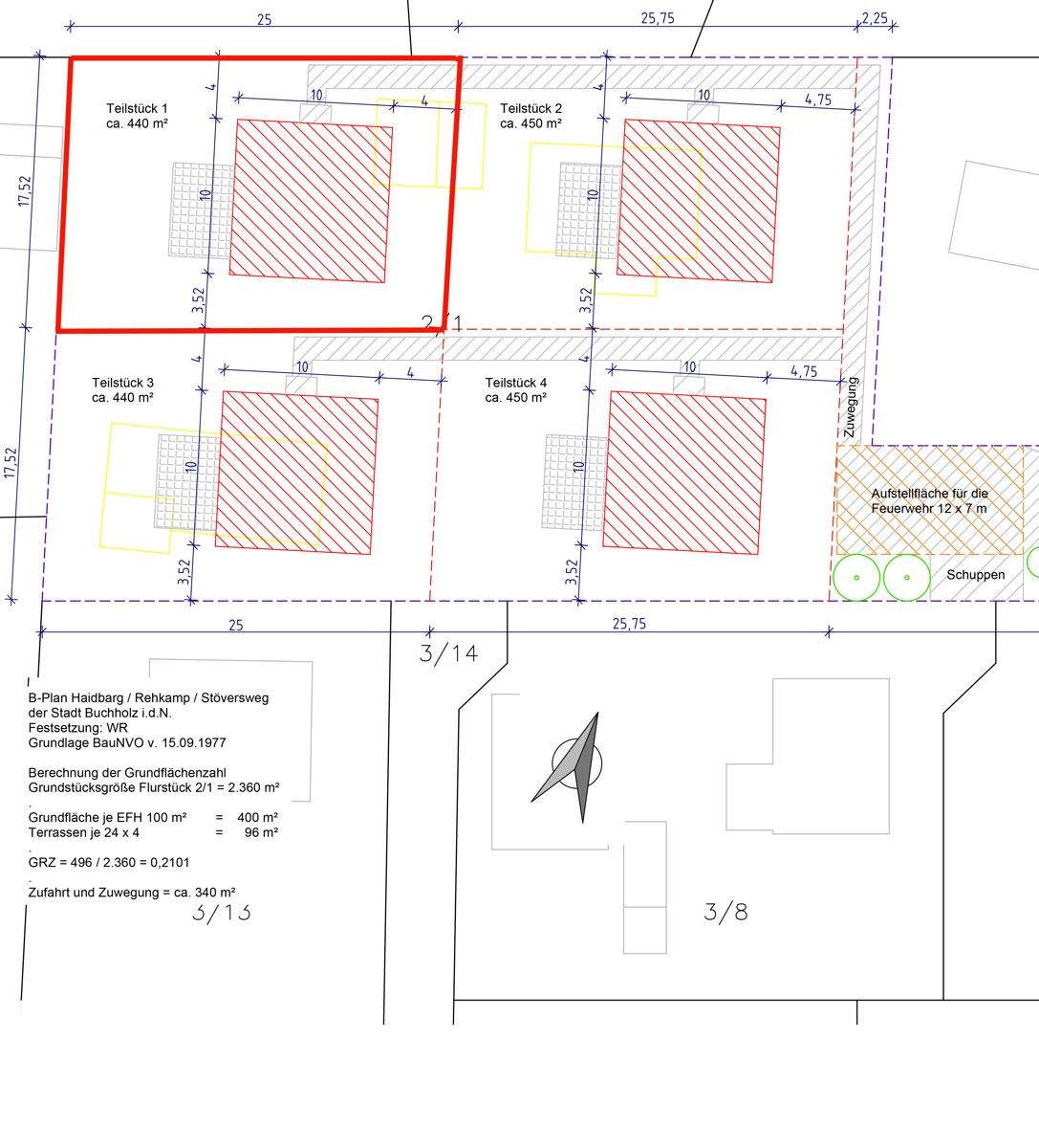
Wir bieten Ihnen 2 Einzel-Grundstücke zur individuellen Bebauung in bester Stadtrandlage.Das hier angebotene Grundstück Nr. 1 hat eine Fläche von ca. 1.280 m². Es ist teilerschlossen. Ein erster Entwurf zu einer möglichen Teilung der Gesamtfläche geht von zwei Grundstücken ähnlicher Größe und guter Ausrichtung aus, bebaubar mit einem Einfamilienhaus, bzw. Doppelhaus auf Grundstück Nr. 1 und einem Einfamilienhaus auf Grundstück Nr. 2.Das vordere Grundstück an der Straße mit Altbestand ist bereits verkauft.Ein aktueller Bauvorbescheid der Stadt Buchholz liegt vor. Er zeichnet ein Doppelhaus mit einer Grundfläche von ca. 176 m² und für das hintere Grundstück ein Einzelhaus mit einer Grundfläche von ca. 108 m² aus.Die Visualisierung der Planung finden Sie im beigefügten Bauvorbescheid.Interessiert? Wir freuen uns auf Ihren Anruf .So funktioniert es
- Alle neuen Anzeigen matchen wir kostenlos mit Deinen Suchparametern.
- Passende Angebote senden wir Dir in einer E-Mail pro Tag.
- Du kannst auch verschiedene Suchen anlegen und Dich jederzeit abmelden. Mehr dazu




