Objektdaten
Objektbeschreibung
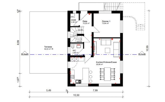
Großes Baugrundstück mit Baugenehmigung für den Bau von einem Einfamilienhaus mit zwei Garagen an guter ruhiger und naturnahen Lage in Todtmoos. Das Haus sowie zwei Garagen wurden bereits teilweise fertiggestellt in Massivbauweise. (Rohbau)So funktioniert es
- Alle neuen Anzeigen matchen wir kostenlos mit Deinen Suchparametern.
- Passende Angebote senden wir Dir in einer E-Mail pro Tag.
- Du kannst auch verschiedene Suchen anlegen und Dich jederzeit abmelden. Mehr dazu




