Objektdaten
Objektbeschreibung
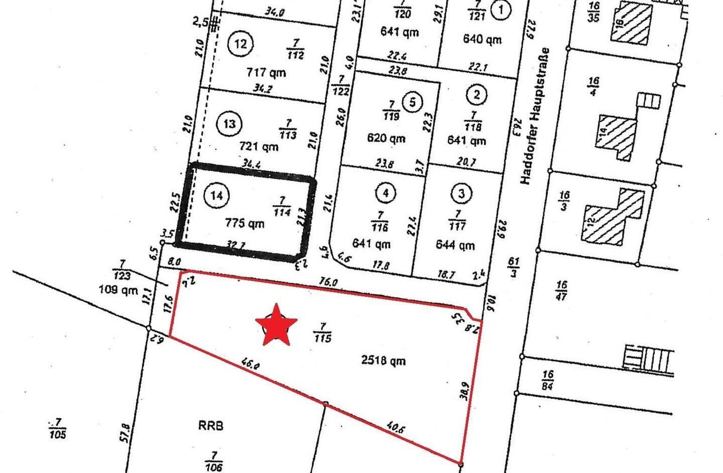
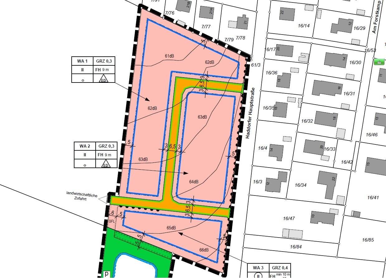
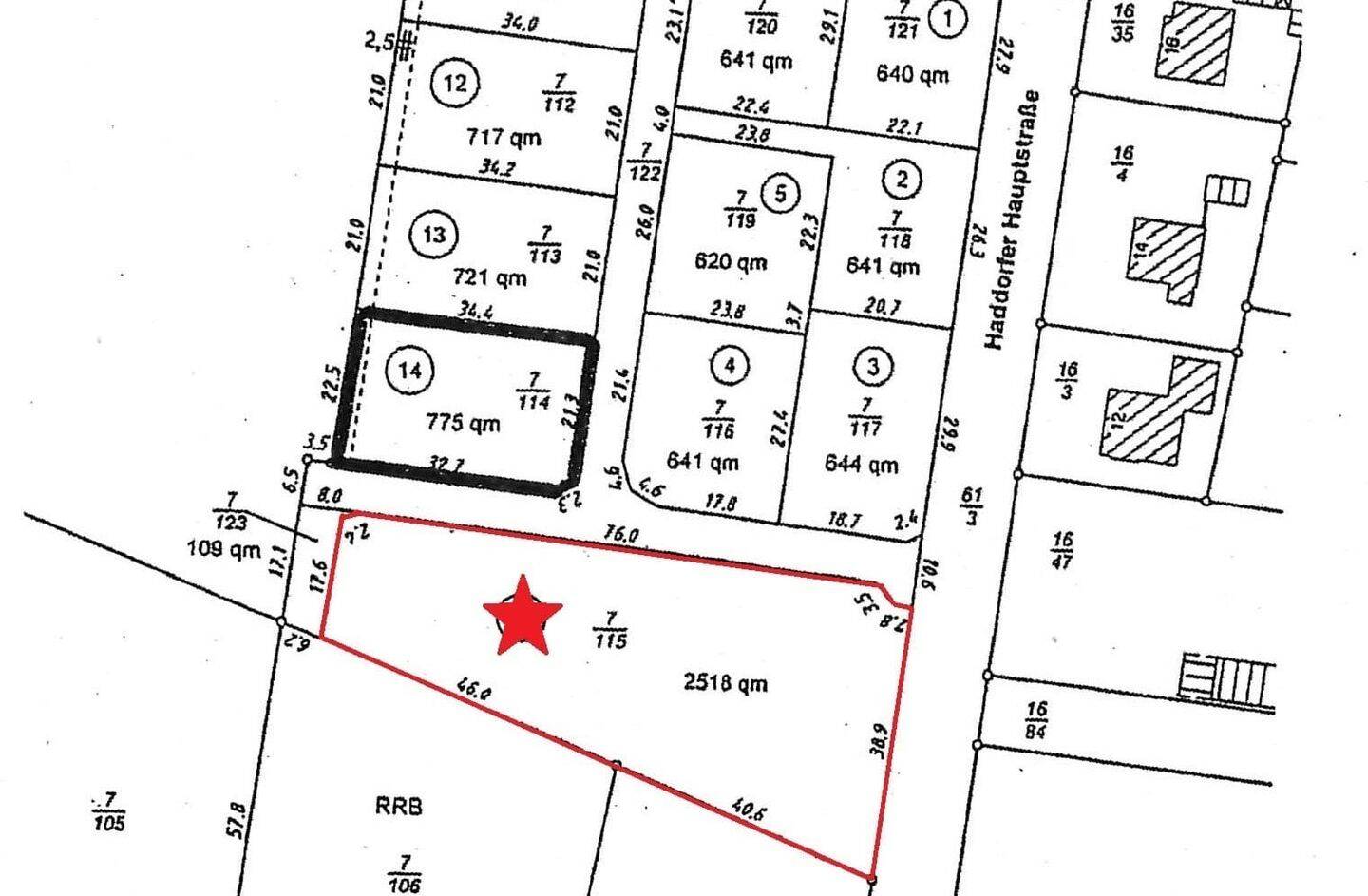
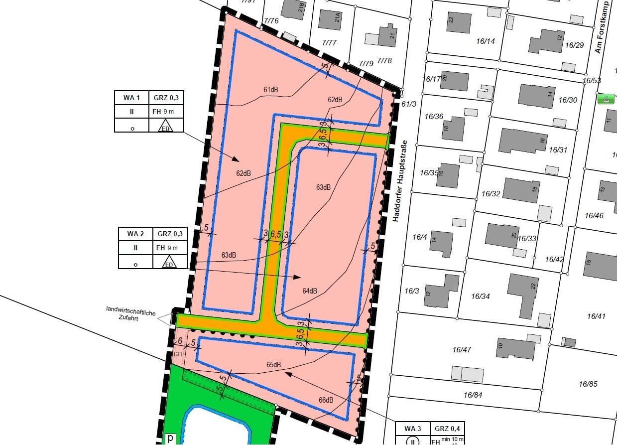
Gut geschnittenes Baugrundstück am Ortsrand von Stade-Haddorf zu verkaufen, bevorzugt für ein größeres Wohnprojekt.So funktioniert es
- Alle neuen Anzeigen matchen wir kostenlos mit Deinen Suchparametern.
- Passende Angebote senden wir Dir in einer E-Mail pro Tag.
- Du kannst auch verschiedene Suchen anlegen und Dich jederzeit abmelden. Mehr dazu




