Objektdaten
Objektbeschreibung
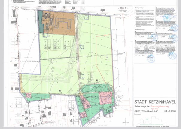
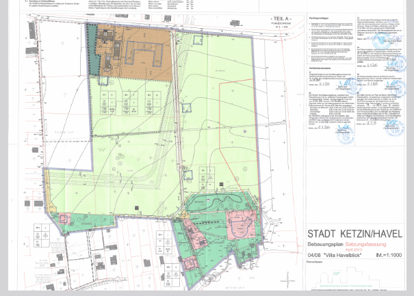
Das hier angebotene Grundstück ist Teil des Bebauungsplanes - 04/08 Villa Havelblick - in Ketzin/Havel, LK Havelland, Land BRB.link zum B-Planhttps://daten2.verwaltungsportal.de/dateien/seitengenerator/bp_0408_villa_havelblick.pdfAusgewiesen ist der Grundstücksteil als Mischgebiet. Dem zuzuordnen sind noch ca. 3,4 ha Grünland - nach Bedarf - mit der Genehmigung zum Bau von kleineren Gebäuden bzw. Unterständen sowie für Ausgleichsmaßnahmen. Das noch zu erschließende und zu bebauende Grundstück befindet sich östlich der Hofstelle der Villa Havelland - früher Villa Havelblick. Das Grundstück fällt in südliche Richtung gen Havel und ermöglicht einen herrlichen Weitblick. Durchquert wird das Grundstück allerdings von einer Hauptgasleitung, welche in ausreichenden Abstand vom Baufeld verläuft.So funktioniert es
- Alle neuen Anzeigen matchen wir kostenlos mit Deinen Suchparametern.
- Passende Angebote senden wir Dir in einer E-Mail pro Tag.
- Du kannst auch verschiedene Suchen anlegen und Dich jederzeit abmelden. Mehr dazu




