EINFAMILIENHAUS MIT VIELEN OPTIONEN FÜR IHRE VISIONEN- FREISTEHENDES FERTIGHAUS+ EINLIEGERWOHNUNG

Kaufpreis 319.000 €
Zimmer 4
51519 Odenthal
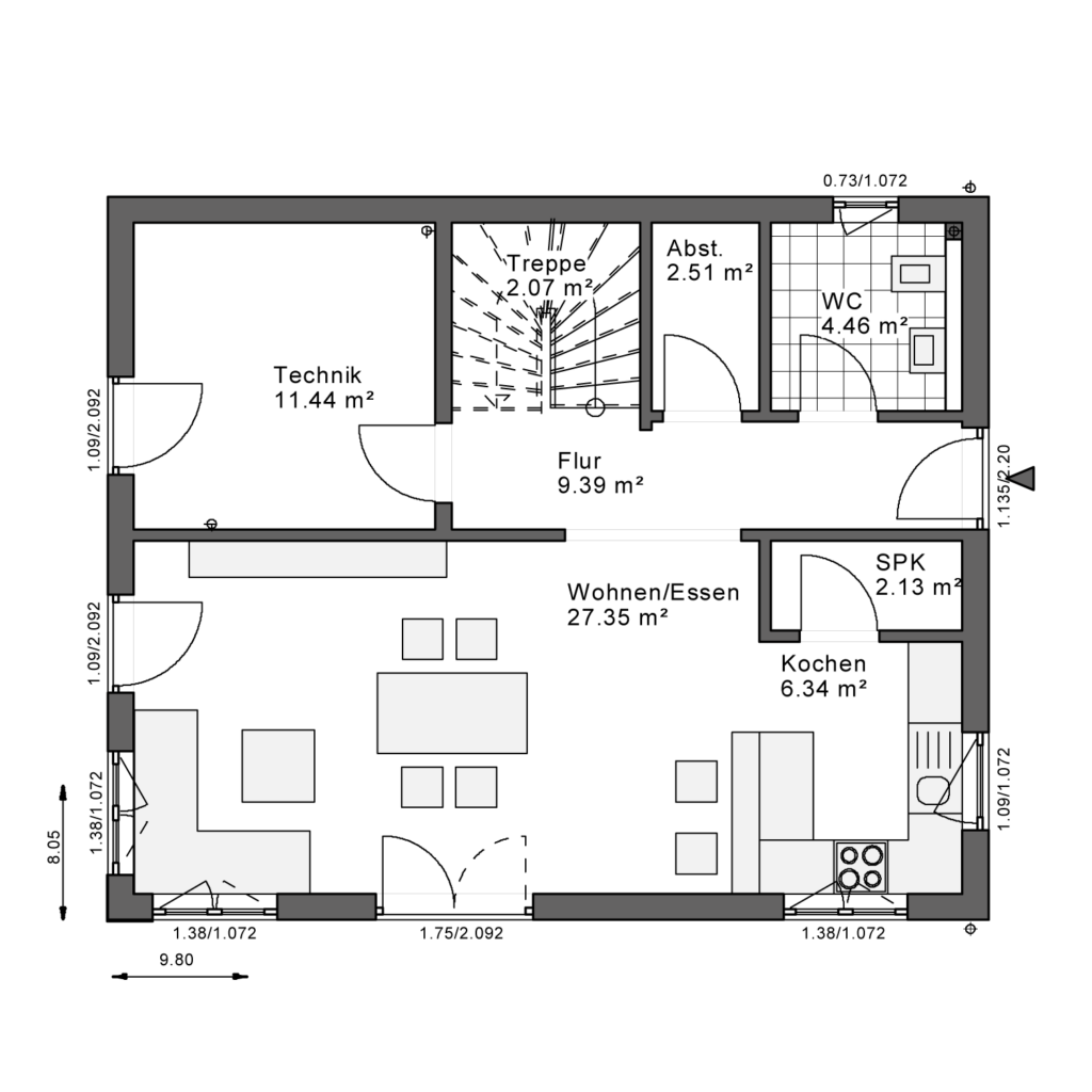
Größe 145 m2

Objektdaten

Veröffentlicht am: 17. Oktober 2025
Energieausweis: Liegt bei der Besichtigung vor
Neu

Über ähnliche Angebote direkt informiert werden

  • Objektbeschreibung

    -1

    So funktioniert es

    • Alle neuen Anzeigen matchen wir kostenlos mit Deinen Suchparametern.
    • Passende Angebote senden wir Dir in einer E-Mail pro Tag.
    • Du kannst auch verschiedene Suchen anlegen und Dich jederzeit abmelden. Mehr dazu
    Nach oben scrollen