Objektdaten
Objektbeschreibung
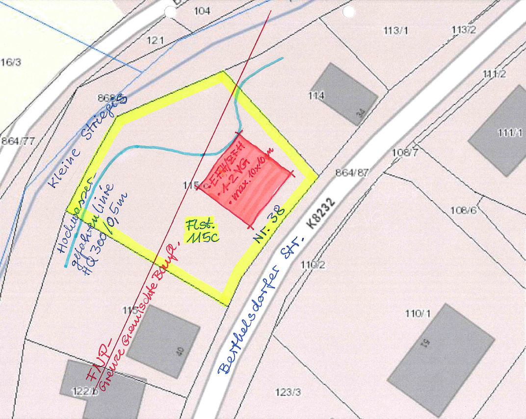
Das mit einer Wiese begrünte Baugrundstück liegt in guter Wohnlage idyllisch direkt am von Bäumen umsäumten Bachlauf der kleinen Striegis. Zur ruhigen Berthelsdorfer Straße ist es durch einen Zaun abgegrenzt und gepflegt durch Verpachtung. Die rechte Seite dient derzeit als Stellfläche für die Pkws des Nutzers. Die Umgebung wird geprägt durch 1- und 2-geschossige Wohnhäuser sowie teilweise neugebaute EFH. Der Straßenseitige Teil ist bebaubar nach § 34 BauGB (gemäß Umgebungsbebauung). In der Straße liegen die Versorgungsmedien an.Trotz der unmittelbaren Nähe der kleinen Striegis liegt das Grundstück nicht im Überschwemmungsgebiet (Quelle: sachsen.de/Geoportal Sachsen-Karte).So funktioniert es
- Alle neuen Anzeigen matchen wir kostenlos mit Deinen Suchparametern.
- Passende Angebote senden wir Dir in einer E-Mail pro Tag.
- Du kannst auch verschiedene Suchen anlegen und Dich jederzeit abmelden. Mehr dazu




