Kaufpreis 99.000 €
01877 Bischofswerda
Objektdaten
Veröffentlicht am: 17. Oktober 2025
Danke! Bitte bestätige Deine E-Mail-Adresse – wir haben Dir soeben eine Mail geschickt.
Es gab ein Problem beim Absenden. Bitte versuche es erneut.
Bitte bestätige Deine E-Mail-Adresse, um Updates zu erhalten.
Objektbeschreibung
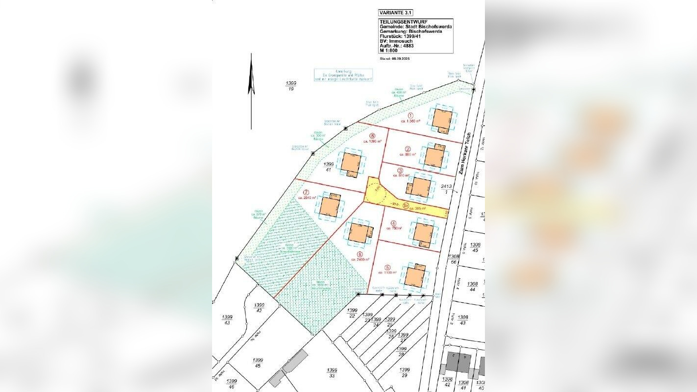
Die Grundstücke liegen an einer ruhigen Seitenstraße in Bischofswerda im Stadtteil Belmsdorf. Hier können Sie freistehende EFH errichten. Herrlich an Feldern & Wiesen gelegen, erreichen Sie in nur 2-3 Minuten das Stadtzentrum von Bischofswerda. Die Baugrundstücke bieten wir Ihnen ohne Bauträgerbindung an, können Ihnen jedoch gerne erfahrene Hausbaufirmen vermitteln.Parz. 1, KP 99.000,- €, ca. 1.360 m² Parz. 2, KP 99.000,- €, ca. 880 m²Parz. 3, KP 99.000,- €, ca. 810 m²Parz. 4, KP 99.000,- €, ca. 750 m² Parz. 5, KP 99.000,- €, ca 1.100 m²Parz. 6, KP 125.000,- €, ca. 2.400 m² + ca. 128,33 m² 1/3 Anteil Privatstraße Parz. 7, KP 125.000,- €, ca. 2.540 m² + ca. 128,33 m² 1/3 Anteil Privatstraße Parz. 8, KP 125.000,- €, ca. 1.395 m² + ca. 128,33 m² 1/3 Anteil Privatstraße
So funktioniert es
- Alle neuen Anzeigen matchen wir kostenlos mit Deinen Suchparametern.
- Passende Angebote senden wir Dir in einer E-Mail pro Tag.
- Du kannst auch verschiedene Suchen anlegen und Dich jederzeit abmelden. Mehr dazu
Wir haben soeben eine E-Mail mit Deinem Suchauftrag an Dich geschickt. – Klicke in dieser Mail auf den Bestätigungslink und schon geht's los. Prüfe ggf. auch Deinen Spamordner.
Es gab ein Problem beim Absenden Deiner E-Mail-Adresse. Bitte versuche es erneut.
WARNUNG: Bitte bestätige Deine E-Mail-Adresse, um regelmäßige Updates zu erhalten.