Kaufpreis 389.000 €
91315 Höchstadt a.d. Aisch
Objektdaten
Veröffentlicht am: 17. Oktober 2025
Danke! Bitte bestätige Deine E-Mail-Adresse – wir haben Dir soeben eine Mail geschickt.
Es gab ein Problem beim Absenden. Bitte versuche es erneut.
Bitte bestätige Deine E-Mail-Adresse, um Updates zu erhalten.
Objektbeschreibung
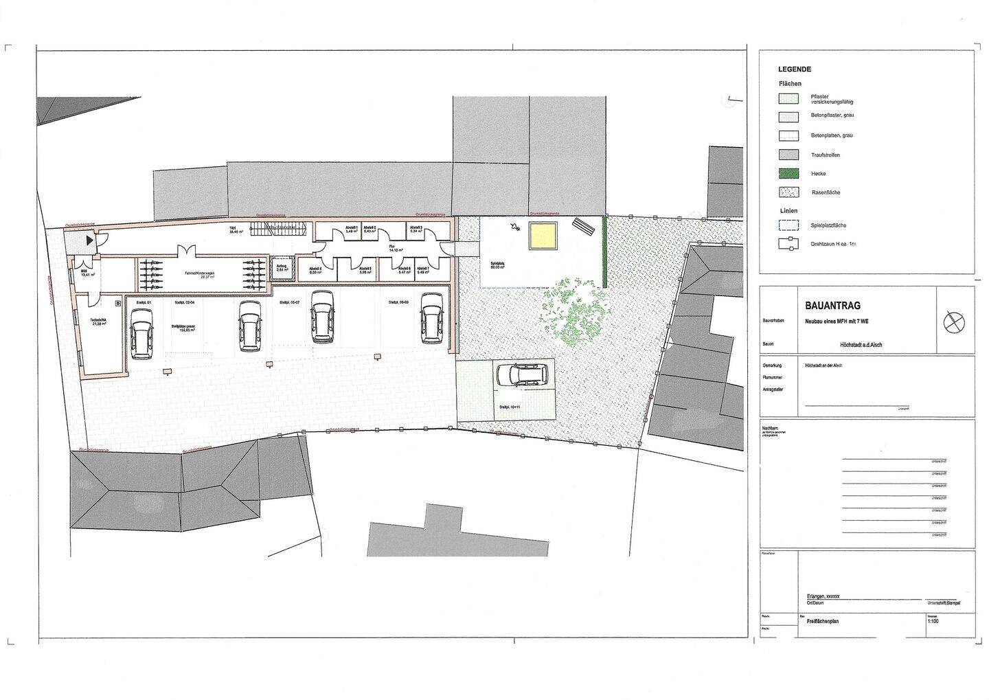
Das vollständig erschlossene Grundstück in zentraler und ruhiger Lage von Höchstadt an der Aisch hat eine Fläche von großzügigen 924 qm. Auf dem Grundstück befindet sich derzeit noch ein älteres Mehrfamilienhaus (Gebäudeteil 1 Baujahr 1912, Gebäudeteil 2 Baujahr 1964), das saniert oder abgerissen werden kann.Eine Neubebauung des Grundstücks durch ein Einfamilienhaus, eine Doppelhaushälfte oder ein Mehrfamilienhaus (siehe unten) ist möglich. Ein Bauzwang liegt nicht vor.--------------------------------------------------Der jetzige Eigentümer plante auf dem Grundstück ursprünglich den Bau eines Mehrfamilienhauses mit 7 Wohneinheiten (siehe beigefügte Pläne) und hat nach entsprechendem Antrag eine diesbezüglich Baugenehmigung von Seiten des Landratsamtes erhalten. Für jenes Bauvorhaben liegen der zugehörige Bauplan inklusive Statik, ein geotechnischer Bericht (nach DIN 4020), ein Entwässerungskonzept sowie ein Brandschutznachweis gemäß § 11 (1) und (2) BauVorlV vor. Die Pläne/Dokumente gehen mit dem Verkauf des Grundstücks in das Eigentum des Käufers über (im oben genannten Kaufpreis enthalten) und dürfen bei Bedarf von diesem verwendet werden. Das Bauvorhaben des Eigentümers muss vom Käufer nicht umgesetzt werden.
So funktioniert es
- Alle neuen Anzeigen matchen wir kostenlos mit Deinen Suchparametern.
- Passende Angebote senden wir Dir in einer E-Mail pro Tag.
- Du kannst auch verschiedene Suchen anlegen und Dich jederzeit abmelden. Mehr dazu
Wir haben soeben eine E-Mail mit Deinem Suchauftrag an Dich geschickt. – Klicke in dieser Mail auf den Bestätigungslink und schon geht's los. Prüfe ggf. auch Deinen Spamordner.
Es gab ein Problem beim Absenden Deiner E-Mail-Adresse. Bitte versuche es erneut.
WARNUNG: Bitte bestätige Deine E-Mail-Adresse, um regelmäßige Updates zu erhalten.