Objektdaten
Objektbeschreibung
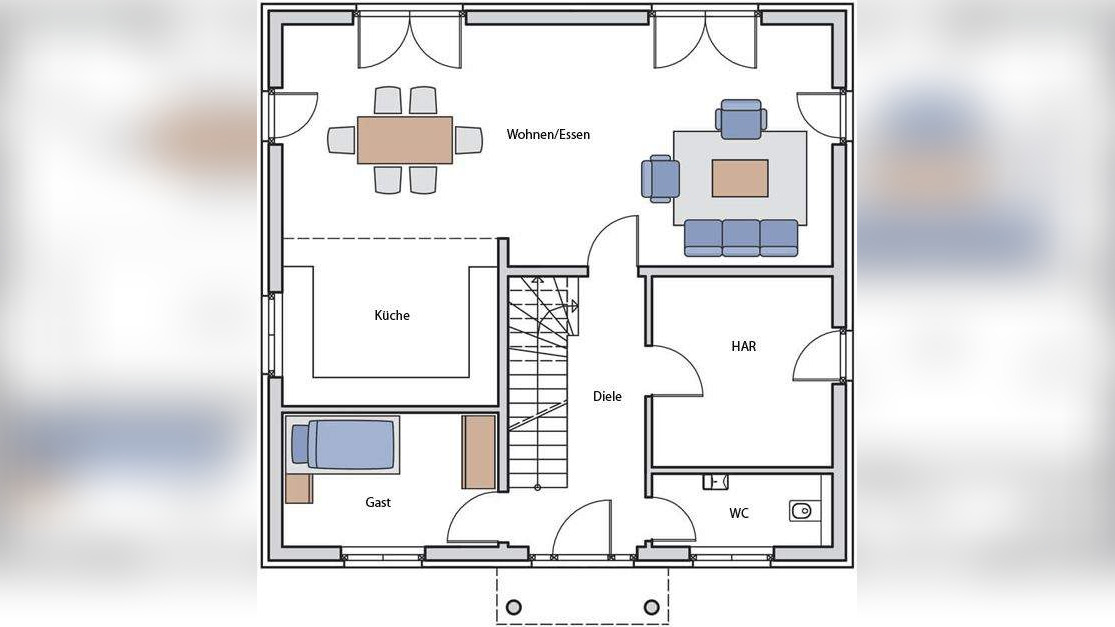
Das Haus Westend in gehobener Ausstattung auf 160,00 m² .Mit gehobenen Qualitätsstandard für einen wahren Traum.Ein Haus dessen Anblick Sie mit Stolz erfüllen wird. Von Innen, wie von Außen. Selbstverständlich können Sie auch Ihre eigene Raumaufteilung bei uns umsetzen und Ihren ganz persönlichen Traum wahr werden lassen.Rufen Sie uns an. Alle erforderlichen Ver- und Entsorgungsanschlüsse befinden sich vor oder auf dem Grundstück. Die Lage wird Ihnen gefallen.Selbstverständlich können Sie dieses Haus nach Ihren Wünschen umplanen oder mit Hilfe unserer architekten ganz neu planen.Ähnliche Angebote
So funktioniert es
- Alle neuen Anzeigen matchen wir kostenlos mit Deinen Suchparametern.
- Passende Angebote senden wir Dir in einer E-Mail pro Tag.
- Du kannst auch verschiedene Suchen anlegen und Dich jederzeit abmelden. Mehr dazu




