Objektdaten
Objektbeschreibung
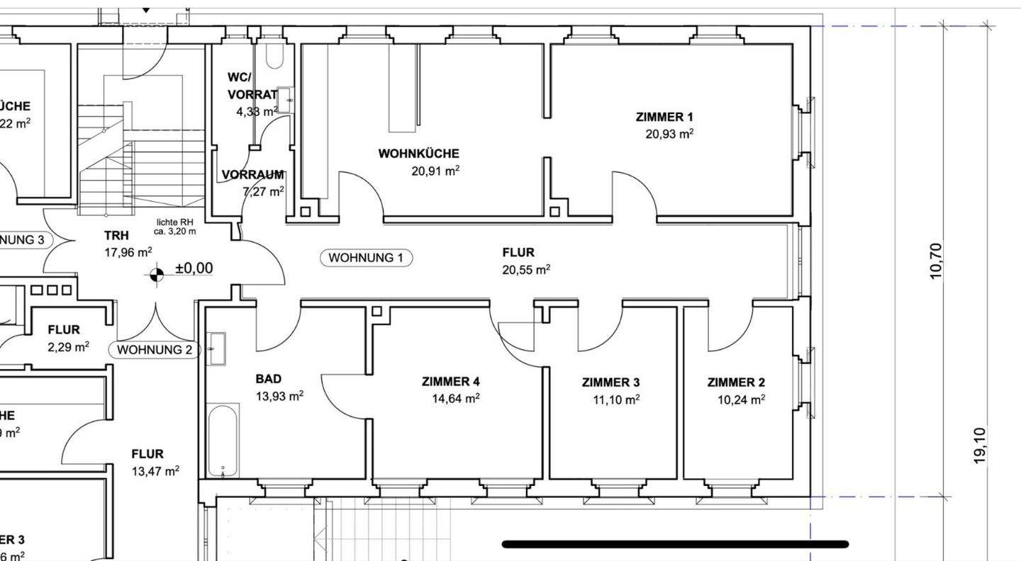
Stadtnah und doch im Grünen liegt dieses historische 9-Familien-Haus, erbaut 1895. Die im Hochparterre liegende Wohnung hat neben Flur, sep. WC und Abstellraum vier Zimmer, eine große Küche mit zusätzlichem Platz für einen Essbereich und ein Bad mit Badewanne.Sie wurde nach Auszug der Mieter aktuell saniert. Hohe Decken, originale Türen und die Lamperie im Flur vermitteln die wunderschöne Atmosphäre eines historischen Altbaus. Ein Teilstück des Gartens steht den Mietern zur gemeinschaftlichen Nutzung zur Verfügung.Zusätzlich gehört ein Kellerabteil zur Wohnung; ein Außenstellplatz kann ebenfalls mit angemietet werden.Die Immobilie liegt im Ensembleschutzbereich der Stadt Coburg, ein Energieausweis ist daher nicht erforderlich, beheizt wird mittels einer Öl-Zentralheizung.Der Vermieter wünscht sich ein längerfristiges Mietverhältnis von mindestens einem Jahr sowie keine Haustiere.Im ausführlichen Exposé steht Ihnen ein 360°-Rundgang zur Verfügung.So funktioniert es
- Alle neuen Anzeigen matchen wir kostenlos mit Deinen Suchparametern.
- Passende Angebote senden wir Dir in einer E-Mail pro Tag.
- Du kannst auch verschiedene Suchen anlegen und Dich jederzeit abmelden. Mehr dazu





