Objektdaten
Objektbeschreibung
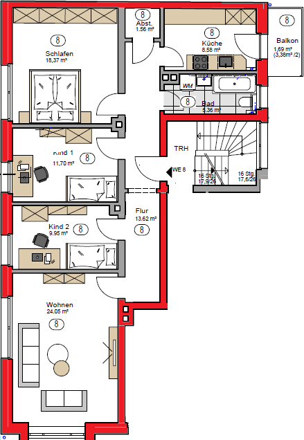
Wohnung in einem Zweifamilienhaus in zentraler Lage, großzügiger Grundriss, zwei Wohnebenen ab 1.OG. Wir bitten um eine SCHUFA Auskunft und einen Gehaltsnachweis. Bitte geben Sie auch immer Ihre Telefonnummer mit an!So funktioniert es
- Alle neuen Anzeigen matchen wir kostenlos mit Deinen Suchparametern.
- Passende Angebote senden wir Dir in einer E-Mail pro Tag.
- Du kannst auch verschiedene Suchen anlegen und Dich jederzeit abmelden. Mehr dazu





