Großzügiges Haus mit Einliegeroption nahe Bad Segeberg

Kaufpreis 349.000 €
Zimmer 6
23795 Klein Rönnau
Größe 169 m2

Objektdaten

Veröffentlicht am: 21. Oktober 2025
Baujahr: 1985
Energieausweis: Liegt bei der Besichtigung vor
  • Objektbeschreibung

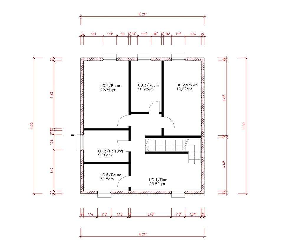
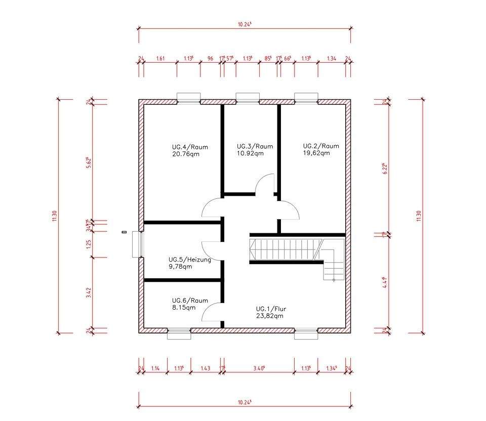
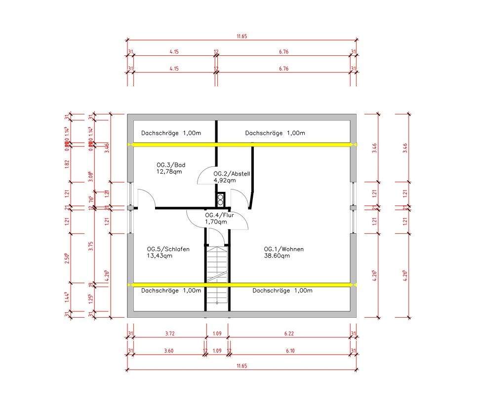
    Dieses gepflegte KAMPA-Haus 145 Kompakt überzeugt durch seine durchdachte Raumaufteilung, die hochwertige Fertighaus-Bauweise und die vielseitigen Nutzungsmöglichkeiten - ideal für Familien, Mehrgenerationenwohnen oder die Realisierung einer Einliegerwohnung.Das Haus bietet auf zwei großzügigen Wohnetagen und einem voll nutzbaren Kellergeschoss reichlich Platz zum Leben und Arbeiten. Das pflegeleichte Grundstück mit moderner Außenanlage, Carport mit Abstellraum und Stromanschluss, zusätzlichem Stellplatz rundet das Gesamtbild ab. Der Glasfaseranschluss sorgt für schnelles Internet - ideal für Homeoffice oder modernes Streaming. Das umliegende Grundstück ist Realeigentum, zum Teil eingezäunt und somit auch für Familien mit Kindern oder Haustieren attraktiv.UntergeschossDer Vollkeller bietet mit einer Raumhöhe von ca. 2,20 m optimale Nutzungsmöglichkeiten und besteht aus insgesamt vier großzügigen Nutzräumen, einem Heizungsraum sowie einem großen Flur mit Treppenaufgang. Die Nutzfläche beträgt rund 93 m² - perfekt als Stauraum, Werkstatt, Fitnessraum oder Hobbybereich.ErdgeschossIm Erdgeschoss befinden sich ein einladender Flur mit Treppenaufgang, ein Gäste-WC, ein Mehrzweckzimmer, ein Vollbad, ein Schlafraum sowie der großzügige Wohn- und Essbereich (ca. 45 m²) mit Zugang zur angrenzenden Küche. Die großzügigen Fensterflächen sorgen für viel Licht und ein angenehmes Wohngefühl.ObergeschossDas Obergeschoss bietet dank separater, oben gelegener Zugangsmöglichkeit über den Flur die Option zur Einliegerwohnung. Hier befinden sich ein weiterer Schlafraum, ein Vollbad, ein großer Wohnbereich (ca. 39 m²) sowie ein Abstellraum. Diese Etage eignet sich ideal für erwachsene Kinder, Gäste oder als eigenständiger Wohnbereich.SpitzbodenDer zusätzliche Spitzboden bietet weiteren Stauraum und Potenzial für individuelle Nutzungsideen.FazitEin vielseitig nutzbares Wohnhaus in ruhiger Lage - mit hervorragender Raumaufteilung, vollwertigem Kellergeschoss, neuwertigem Carport, Glasfaseranschluss und der Option zur Einliegerwohnung. Ideal für alle, die modernes, flexibles Wohnen mit solider Bauqualität suchen.

    Nach oben scrollen