Objektdaten
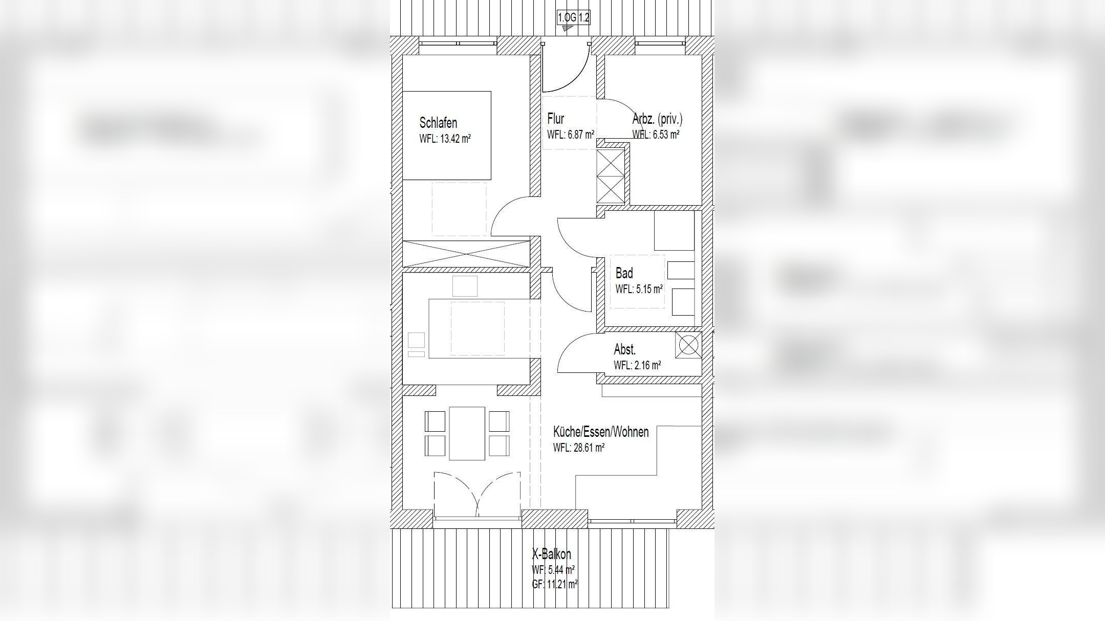
Objektbeschreibung
Förderungen für Selbstnutzer (Zinsgünstige Darlehen über KfW) und für Kapitalanleger (Bayern-LaBo )massivLuftwasser-WärmepumpemodernFussbodenheizungLandhausdielen in EicheHandtuchheizkörperKfW 40 standartkleine WohneinheitSo funktioniert es
- Alle neuen Anzeigen matchen wir kostenlos mit Deinen Suchparametern.
- Passende Angebote senden wir Dir in einer E-Mail pro Tag.
- Du kannst auch verschiedene Suchen anlegen und Dich jederzeit abmelden. Mehr dazu




