Objektdaten
Objektbeschreibung
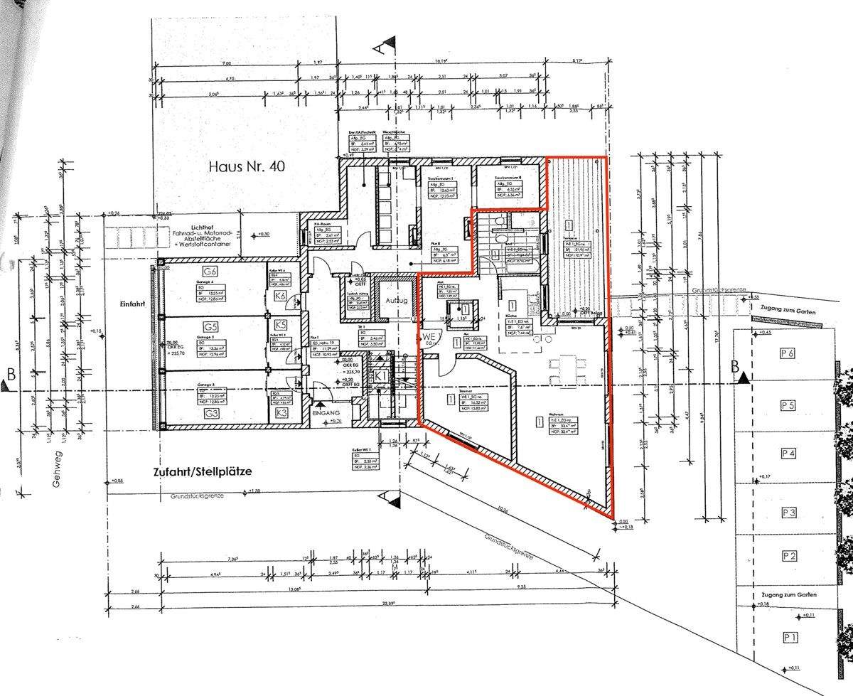
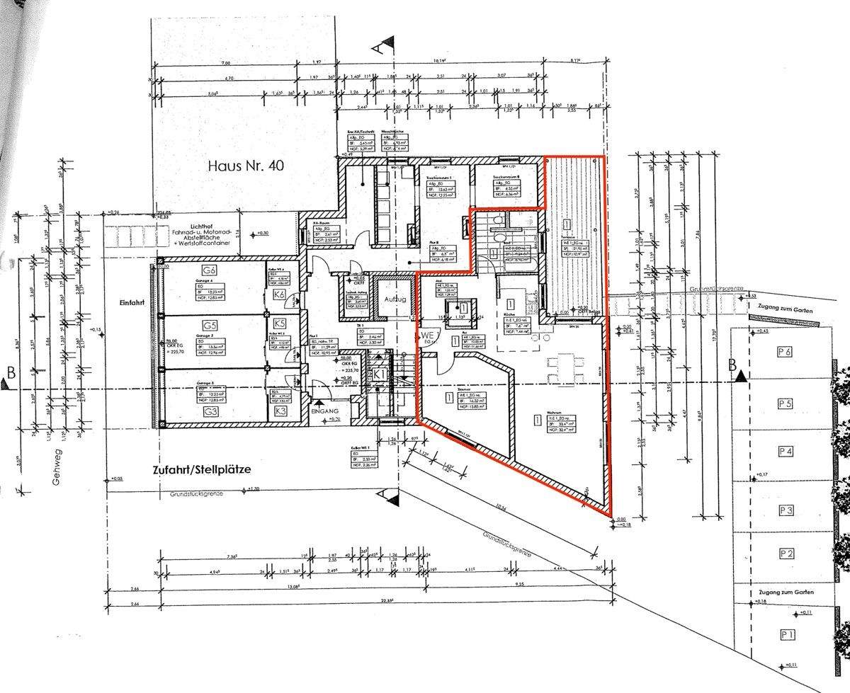
Diese gepflegte Wohnung befindet sich im Erdgeschoss rechts eines im Jahr 2014 erbauten Mehrfamilienhauses und bietet rund 89?m² Wohnfläche mit klarer Raumaufteilung und modernem Wohnkomfort.Die Wohnung umfasst:- Wohn- und Essbereich mit Zugang zur Terrasse- Küche- Schlafzimmer- Dusch-/Wannenbad- Abstellraum- Kellerraum - StellplatzSie möchten sich selbst einen Eindruck verschaffen? Dann freuen wir uns auf Ihre Anfrage zur Vereinbarung eines Besichtigungstermins.So funktioniert es
- Alle neuen Anzeigen matchen wir kostenlos mit Deinen Suchparametern.
- Passende Angebote senden wir Dir in einer E-Mail pro Tag.
- Du kannst auch verschiedene Suchen anlegen und Dich jederzeit abmelden. Mehr dazu




