Objektdaten
Objektbeschreibung
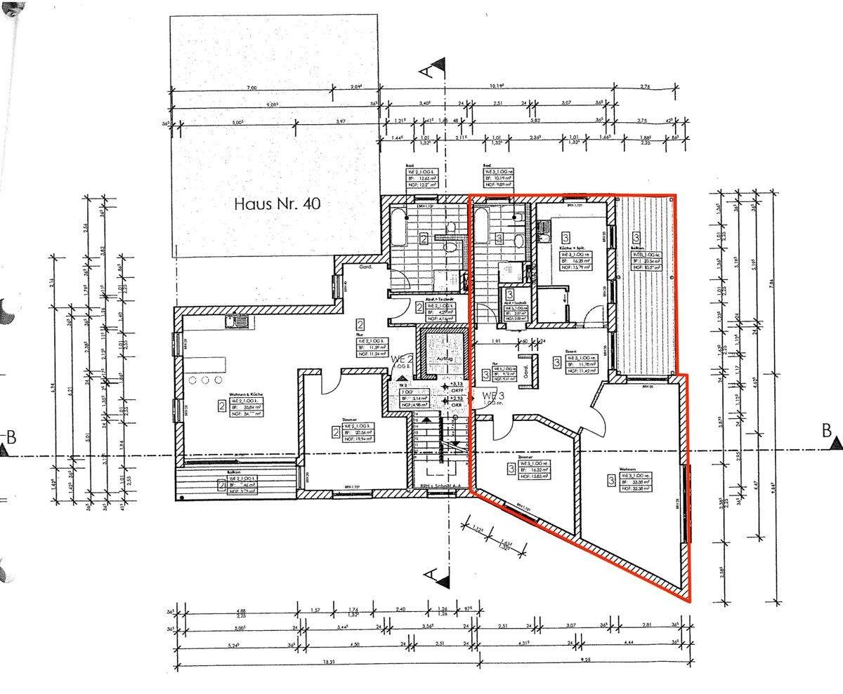
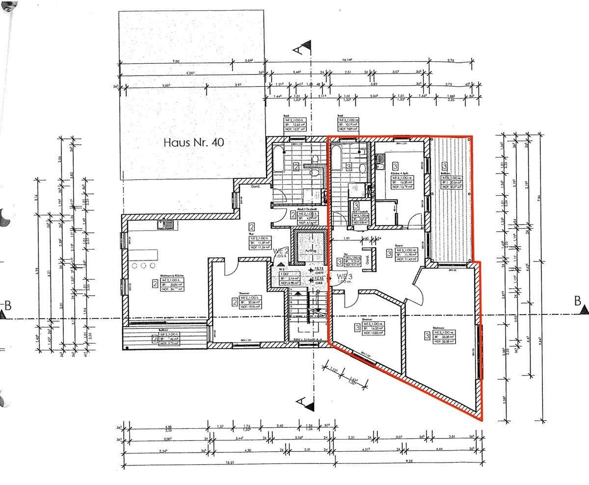
Diese großzügige Wohnung im 1. Obergeschoss eines modernen Mehrfamilienhauses aus dem Jahr 2014 bietet auf ca. 106?m² Wohnfläche ein komfortables und gut durchdachtes Zuhause.Zur Wohnung gehören:- Heller Wohnbereich mit Zugang zum großen Ostbalkon- Separate Küche mit praktischer Speisekammer- Schlafzimmer- Dusch-/Wannenbad- Abstellr.+TechnikraumEin Stellplatz gehört zur Wohnung, zusätzlich kann eine Garage für 17.500?€ erworben werden.Sie möchten die Wohnung besichtigen oder haben Fragen? Melden Sie sich gerne bei uns.So funktioniert es
- Alle neuen Anzeigen matchen wir kostenlos mit Deinen Suchparametern.
- Passende Angebote senden wir Dir in einer E-Mail pro Tag.
- Du kannst auch verschiedene Suchen anlegen und Dich jederzeit abmelden. Mehr dazu



