Objektdaten
Objektbeschreibung
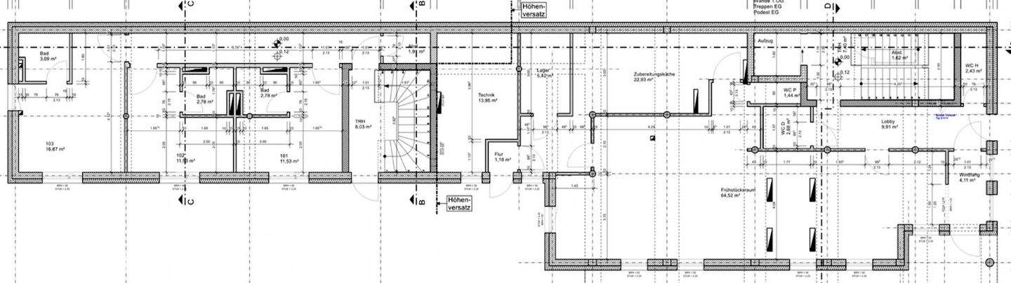
Inmitten der dynamischen Metropolregion Nürnberg-Erlangen präsentiert sich diese exklusive Immobilie als außergewöhnliche Investitionsgelegenheit.Das moderne Microapartmenthaus vereint zukunftsorientiertes Wohnen, flexible Nutzungsmöglichkeiten und eine erstklassige Lage zu einem renditestarken Gesamtpaket.Das im Jahr 2018 errichtete Hauptgebäude verfügt über insgesamt 39 hochwertig ausgestattete Zimmer, einen großzügigen Gemeinschafts- bzw. Frühstücksraum mit Gastroküche, Lagerräume, Technikräume sowie einen Aufzug und mehrere Stellplätze im Innenhof. Die Wohn- und Nutzfläche umfasst 1.099,31 m², verteilt auf fünf Etagen.Besonders hervorzuheben ist die durchdachte Planung der Einheiten: Rund 35 Zimmer sind bereits mit Strom- und Wasseranschlüssen für Küchenzeilen ausgestattet und können somit jederzeit zu vollwertigen Apartments umgestaltet werden - ideal für den Betrieb als Boardinghouse, Serviced Apartments oder Langzeitvermietung.Die Immobilie steht auf einem Grundstück von 860 m² und beeindruckt durch ihre moderne Architektur und energieeffiziente Bauweise.Dank der exzellenten Anbindung an die Autobahnen A3 und A73, die Nähe zu den Siemens-Standorten, der Friedrich-Alexander-Universität Erlangen-Nürnberg und sämtlichen Kliniken der Stadt, ist eine kontinuierlich hohe Nachfrage nach Wohnraum und temporären Unterkünften garantiert.Ergänzt wird das Ensemble durch einen charmanten Altbestand mit rund 250 m² Wohn- und Nutzfläche (EG + 1. OG), der vielseitiges Entwicklungspotenzial bietet.Für diesen Gebäudeteil liegt eine Nachtragsbaugenehmigung aus dem Jahr 2015 zur Schaffung von über sieben Apartments vor (erneute Beantragung erforderlich).Darüber hinaus eröffnet der Bebauungsplan zusätzliche Erweiterungsmöglichkeiten im rückwärtigen Grundstücksbereich - analog zur Nachbarbebauung.Die Heizungsanlage des Hauptgebäudes kann den Altbestand problemlos mitversorgen.Diese Kombination aus neuwertigem Hauptgebäude, erweiterbarem Altbestand und hervorragender Lage schafft ideale Voraussetzungen für verschiedenste Nutzungskonzepte - vom Microapartmenthaus über Studenten- oder Mitarbeiterwohnungen bis hin zur Pflegeeinrichtung oder Arztpraxis.Der Kaufpreis beträgt 4.900.000 Euro.Detaillierte Grundrisse und weitere Unterlagen stellen wir Ihnen auf Anfrage gerne zur Verfügung.#################################################################################Jetzt Makler werden!ImmoUnion24 GmbH sucht motivierte Immobilienpartner (m/w/d) für erfolgreiche Zusammenarbeit - flexibel, fair, provisionsstark!Infos unter 09126 - 29 59 675 oder per Mail an [email protected]
