Kaufpreis 193.560 €
01796 Pirna
Objektdaten
Veröffentlicht am: 24. Oktober 2025
Frei ab: 13. April 2026
Danke! Bitte bestätige Deine E-Mail-Adresse – wir haben Dir soeben eine Mail geschickt.
Es gab ein Problem beim Absenden. Bitte versuche es erneut.
Bitte bestätige Deine E-Mail-Adresse, um Updates zu erhalten.
Objektbeschreibung
Kurzbeschreibung
Wohnbaugrundstück in Pirna-Zatzschke
Objekt
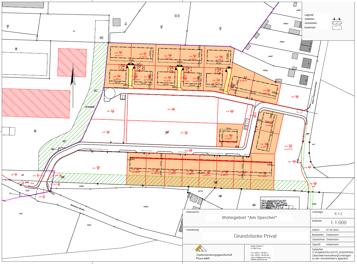
In ruhiger, grüner Lage im neuen Wohngebiet "Am Speicher" in Pirna-Zatzschke stehen 23 vollständig erschlossene Grundstücke zum Verkauf.Die Grundstücke bieten Größen von ca. 631 m² bis ca. 1.035 m² und ermöglichen eine individuelle Bebauung. Vorwiegend ist eine 2-geschossige Satteldachbauweise vorgesehen, wobei auf einigen Flächen auch eine Bungalowbauweise möglich ist. Wer es etwas kleiner mag, kann künftig auch zwischen Wohnen im Reihenhaus oder einer Eigentumswohnung wählen. Bauträger und Projektentwickler werden dem Standort ein vielfältiges Erscheinungsbild geben.Die Erschließung des Gebiets erfolgte bis zum Frühjahr 2025, einschließlich der notwendigen Ver- und Entsorgungsleitungen sowie einem modernen Glasfaseranschluss. Die Lage bietet eine gute Anbindung an die Umgebung und ermöglicht es, individuelle Wohnträume zu verwirklichen.Die 3D-Visualisierung wurde erstellt von Rico Ulbricht, Dipl. Ing. (FH) Stadtplanung, Fachplaner für integrativen Stadtumbau (WBA). Alle Rechte vorbehalten. Tzschirnerplatz 10 D, 09648 Mittweida.
So funktioniert es
- Alle neuen Anzeigen matchen wir kostenlos mit Deinen Suchparametern.
- Passende Angebote senden wir Dir in einer E-Mail pro Tag.
- Du kannst auch verschiedene Suchen anlegen und Dich jederzeit abmelden. Mehr dazu
Wir haben soeben eine E-Mail mit Deinem Suchauftrag an Dich geschickt. – Klicke in dieser Mail auf den Bestätigungslink und schon geht's los. Prüfe ggf. auch Deinen Spamordner.
Es gab ein Problem beim Absenden Deiner E-Mail-Adresse. Bitte versuche es erneut.
WARNUNG: Bitte bestätige Deine E-Mail-Adresse, um regelmäßige Updates zu erhalten.