Kaufpreis 499.000 €
Zimmer 5
Größe 126 m²
99090 Erfurt
Objektdaten
Veröffentlicht am: 25. Oktober 2025
Energieausweis: Liegt bei der Besichtigung vor
Danke! Bitte bestätige Deine E-Mail-Adresse – wir haben Dir soeben eine Mail geschickt.
Es gab ein Problem beim Absenden. Bitte versuche es erneut.
Bitte bestätige Deine E-Mail-Adresse, um Updates zu erhalten.
Objektbeschreibung
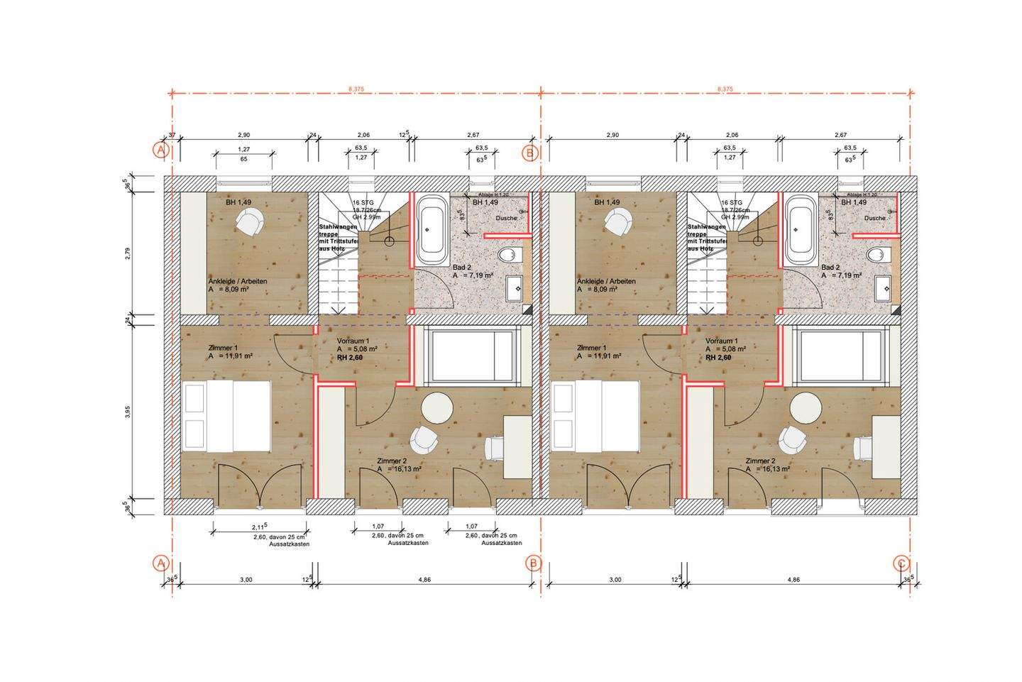
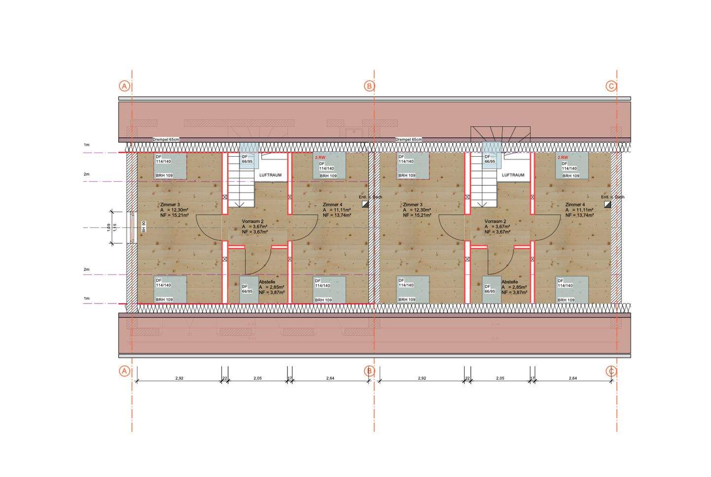
In ruhiger Lage in Erfurt-Alach entsteht ein modernes Neubauprojekt, das hochwertige Reihenhäuser und Doppelhäuser umfasst. Diese Neubauten bieten nicht nur ein stilvolles und komfortables Zuhause, sondern auch eine nachhaltige Bauweise, die höchsten energetischen Standards entspricht. Die Gebäude zeichnen sich durch eine besonders hohe Bauqualität und durchdachte Ausstattung aus, die Ihnen einen hohen Wohnkomfort bietet. Die Häuser werden in massiver Bauweise errichtet und entsprechen den neuesten energetischen Standards gemäß der gültigen Energieeinsparverordnung. Alle Außenwände erhalten einen hochwertigen Außenputz in Silikonharzqualität, während die Innenwände in massivem Mauerwerk oder in Ständerbauweise ausgeführt werden. Die Decken bestehen aus Stahlbeton, was eine hohe Stabilität gewährleistet.Die Gebäude erfüllen den Standard eines BEG-Effizienzhauses 55 (EE) und bieten Ihnen durch die Beheizung mit einer Luftwärmepumpe eine umweltfreundliche und kosteneffiziente Heizlösung. Eine Fußbodenheizung sorgt für eine angenehme Wärmeverteilung in allen Wohneinheiten. Die Wohneinheiten überzeugen durch durchdachte Raumkonzeptionen, die sich ideal für moderne Lebensansprüche eignen. Große Fensterflächen bieten lichtdurchflutete Räume, während die Wohnflächen großzügig und flexibel gestaltet sind. Je nach Typ gibt es Balkone, Terrassen und Gärten, die den Wohnraum nach außen erweitern und Platz für Erholung und Freizeitaktivitäten bieten.Die hochwertigen Bodenbeläge aus Feinsteinzeug, speziell in den Fluren, Bädern und Treppenhäusern, garantieren nicht nur Optik, sondern auch Langlebigkeit und pflegeleichte Handhabung. In den Badezimmern und Gäste-WCs kommen edle Fliesen und Natursteinoberflächen zum Einsatz, die den modernen Charakter der Wohnungen unterstreichen.Die Bäder sind mit modernen Sanitäreinrichtungen ausgestattet, darunter Badewannen oder bodengleiche Duschen, WC-Anlagen sowie Waschbecken von renommierten Marken wie Villeroy & Boch oder Smart.Die Fassade wird durch ein ansprechendes, modernes Design mit Farbakzenten und großen Fensterelementen geprägt. Im Außenbereich wird der Garten mit einer hochwertigen Pflasterfläche angelegt, und die Balkone sowie Terrassen sind mit modernen Geländern und praktischen Außensteckdosen ausgestattet.Überdachte Stellplätze sind optional und können für jeweils 11.500,00?€ erworben werden.Dieses Neubauprojekt in Erfurt-Alach bietet Ihnen ein modernes, energieeffizientes Zuhause mit einer hochwertigen Ausstattung, das perfekt zu Ihren individuellen Bedürfnissen passt. Genießen Sie den Komfort eines Neubaus, der keine Wünsche offenlässt.
So funktioniert es
- Alle neuen Anzeigen matchen wir kostenlos mit Deinen Suchparametern.
- Passende Angebote senden wir Dir in einer E-Mail pro Tag.
- Du kannst auch verschiedene Suchen anlegen und Dich jederzeit abmelden. Mehr dazu
Wir haben soeben eine E-Mail mit Deinem Suchauftrag an Dich geschickt. – Klicke in dieser Mail auf den Bestätigungslink und schon geht's los. Prüfe ggf. auch Deinen Spamordner.
Es gab ein Problem beim Absenden Deiner E-Mail-Adresse. Bitte versuche es erneut.
WARNUNG: Bitte bestätige Deine E-Mail-Adresse, um regelmäßige Updates zu erhalten.