Objektdaten
Objektbeschreibung
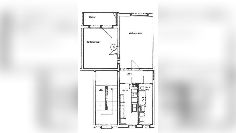
Diese sonnige 2-Zimmer-Wohnung im 1. OG eines gepflegten Mehrfamilienhauses in Crottendorf steht ab 01.01.2026 zur Verfügung. Sie eignet sich sehr gut für Singles oder auch ein Paar. In der Küche finden Sie ausreichend Platz für Tisch und Stühle und das ca. 20 m² große Wohnzimmer bietet viel Gelegenheit für Ihre Einrichtungsideen. Alle Räume haben eine ansprechende Größe.Die Wohnung ist z.Zt. noch vermietet, kann aber gern in Abstimmung mit den jetzigen Mietern besichtigt werden.So funktioniert es
- Alle neuen Anzeigen matchen wir kostenlos mit Deinen Suchparametern.
- Passende Angebote senden wir Dir in einer E-Mail pro Tag.
- Du kannst auch verschiedene Suchen anlegen und Dich jederzeit abmelden. Mehr dazu


