Objektdaten
Objektbeschreibung
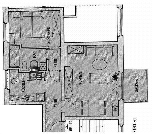
Moderner Grundriss.Bad mit Halogenstrahlern in der Decke, schick gefliest, Wanne und Handtuchheizer. Weiterhin befindet sich hier der Waschmaschinenanschluss.Die gemütliche Küche ist separat gehalten, das Wohnzimmer verfügt über den Zugang zum Balkon gen Südwesten.Alle Räume sind mit Laminat ausgestattet.Ähnliche Angebote
So funktioniert es
- Alle neuen Anzeigen matchen wir kostenlos mit Deinen Suchparametern.
- Passende Angebote senden wir Dir in einer E-Mail pro Tag.
- Du kannst auch verschiedene Suchen anlegen und Dich jederzeit abmelden. Mehr dazu





