Dein Zuhause, so individuell wie du.

Kaufpreis 315.000 €
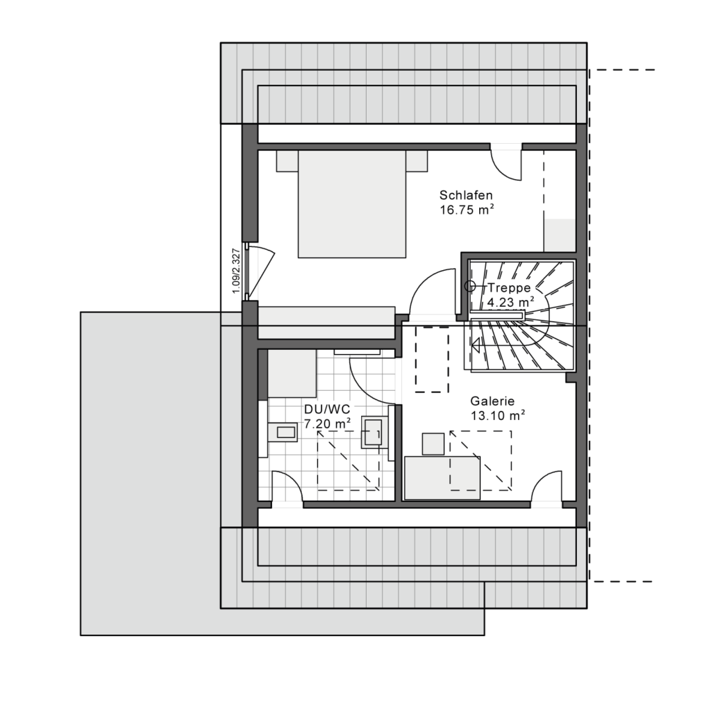
Zimmer 3
25917 Leck
Größe 100 m2

Objektdaten

Veröffentlicht am: 26. Oktober 2025
Energieausweis: Liegt bei der Besichtigung vor
Neu

Über ähnliche Angebote direkt informiert werden

  • Objektbeschreibung

    WELCOME HOME. WELCOME TO YOUR FUTURE.Dein Zuhause ist mehr als vier Wände - es ist dein Rückzugsort, dein Investment, dein neuer Lebensabschnitt. White&Black macht Wohneigentum bezahlbar, modern und flexibel. Jetzt ist der richtige Moment, um anzukommen.

    So funktioniert es

    • Alle neuen Anzeigen matchen wir kostenlos mit Deinen Suchparametern.
    • Passende Angebote senden wir Dir in einer E-Mail pro Tag.
    • Du kannst auch verschiedene Suchen anlegen und Dich jederzeit abmelden. Mehr dazu
    Nach oben scrollen