Objektdaten
Objektbeschreibung
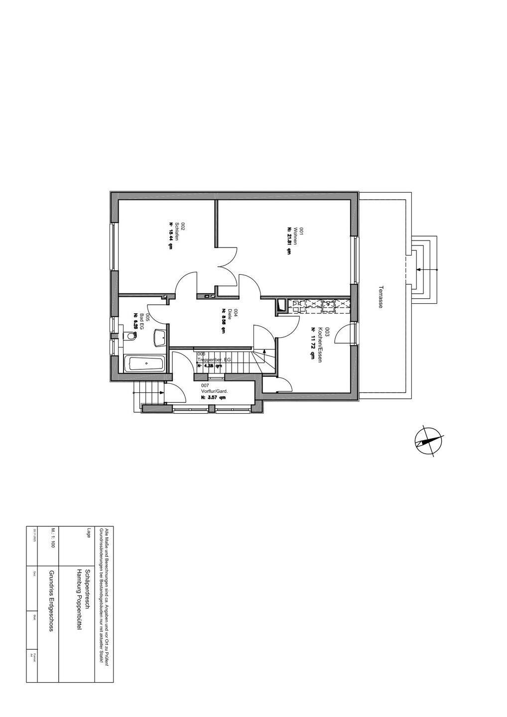
Design 9 überzeugt mit ansprechender Fassadengestaltung und einem offenen Wohnkonzept. Im Erdgeschoss ist der Eingangsbereich mit Dusch-WC und Hauswirtschaftsraum vom restlichen Wohnbereich geschickt abgetrennt. Die große Diele mit integrierter Treppe lässt schon beim Betreten Großzügigkeit erahnen. Der offene Wohn- und Kochbereich besticht mit Größe und Rundum-Lichteinfall. Praktisch: Die an die Küche angeschlossene Speisekammer. Die obere Etage ist vom Boden bis in die Dachspitze offen gestaltet. Der hiermit erzielte Studiocharakter verleiht allen Zimmern ein ganz besonderes Wohngefühl. Atmosphäre, die man spüren kann. Der firsthohe Ausbau und bodentiefe Fenster machen somit das Dachgeschoss zum absoluten Lieblingsplatz.Ähnliche Angebote
So funktioniert es
- Alle neuen Anzeigen matchen wir kostenlos mit Deinen Suchparametern.
- Passende Angebote senden wir Dir in einer E-Mail pro Tag.
- Du kannst auch verschiedene Suchen anlegen und Dich jederzeit abmelden. Mehr dazu




