Objektdaten
Objektbeschreibung
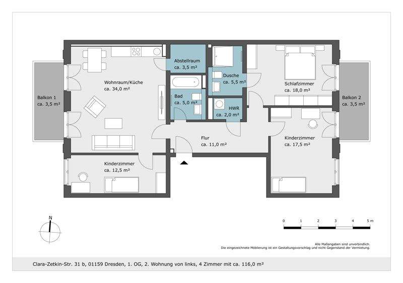
Das gepflegte Gebäude-Ensemble wurde im Jahr 2024 erbaut. Alle Wohnungen sind mit Einbauküche ausgestattet und haben einen Balkon oder Terrasse.Moderne Details wie Parkettböden und Fußbodenheizung versprechen angenehmes und stilvolles Wohnen.Zudem besteht die Möglichkeit einen Tiefgaragenstellplatz anzumieten.Bei Interesse freuen wir uns über Ihre E-mail an [email protected].





