Objektdaten
Objektbeschreibung
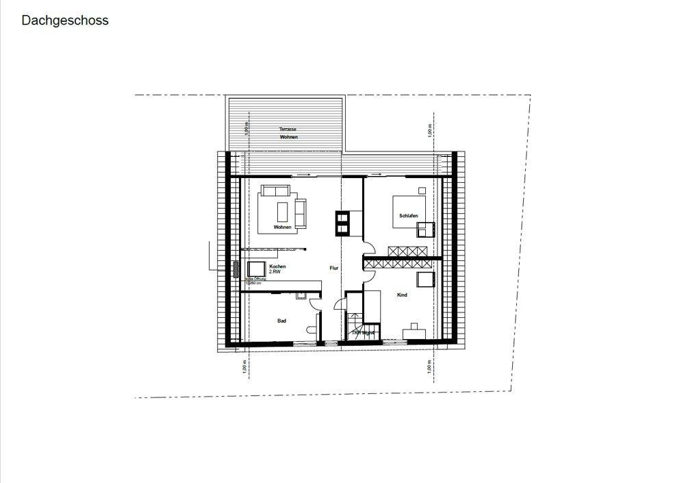
Herzlich willkommen in Ihrem neuen Zuhause in Herten/Westerholt!Diese geräumige Dachgeschosswohnung zur Miete bietet auf ca. 135 m² Wohnfläche viel Platz für Ihre Wohnträume. Sie überzeugt durch ihre Lage in einem ruhigen und dennoch gut angebundenen Wohngebiet mit Nähe zum Stadtzentrum und zur umliegenden Infrastruktur.Die Wohnung verfügt über ein Schlafzimmer für die Eltern sowie ein weiteres Zimmer, das flexibel als Kinderzimmer oder Büro genutzt werden kann - ganz nach Ihren individuellen Bedürfnissen. Zudem ist die Wohnung mit einem Bad ausgestattet, das Komfort und Funktionalität vereint.Der großzügige Wohn- und Essbereich bildet das Herzstück der Wohnung und bietet den idealen Ort für gesellige Abende und gemeinsame Mahlzeiten. Von hier aus gelangen Sie direkt auf die ca. 37 m² große Dachterrasse, die zusätzlichen Raum für Entspannung im Freien bietet.Genießen Sie den Komfort einer hellen und großzügigen Wohnung, welche mit einer durchdachten Raumaufteilung überzeugt.Ähnliche Angebote
So funktioniert es
- Alle neuen Anzeigen matchen wir kostenlos mit Deinen Suchparametern.
- Passende Angebote senden wir Dir in einer E-Mail pro Tag.
- Du kannst auch verschiedene Suchen anlegen und Dich jederzeit abmelden. Mehr dazu





