Objektdaten
Objektbeschreibung
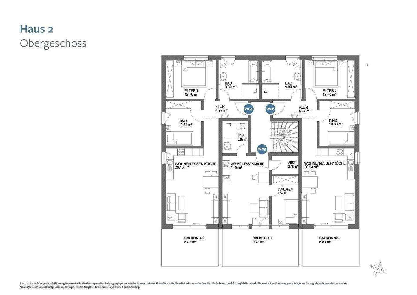
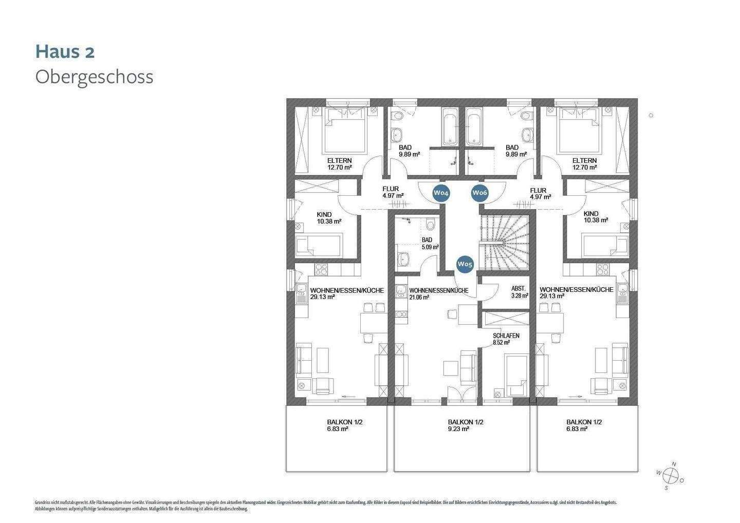
K 126 - NATÜRLICH & URBANMit dem Bauprojekt K 126 in Ingolstadt-Süd/Kothau entstehen attraktive Eigentumswohnungen in einer Topp Lage – nur 8 Minuten von der Altstadt entfernt.Das Grundstück liegt in einem stadtnahen, ruhigen Wohngebiet in gewachsener Umgebung. Genießen Sie die Vorteile eines städtischen Wohnbezirks der dabei gleichzeitig eine hervorragende Infrastruktur und Anbindung an das Nahverkehrsnetz bietet. K 126 bietet Außergewöhnliches! Intelligente Grundrisse und ein urbanes Lebensgefühl. K 126 bietet 1 -4 Zimmer-Eigentumswohnungen, mit einer Wohnfläche von ca. 38 m² bis ca. 106 m². Funktionale und gleichzeitig kompakte Grundrisse, Terrassen/Balkone, viel Licht und Offenheit sind die Besonderheiten. Schon wenn man die Wohnungen betritt, fällt auf, wie hell und freundlich der Grundriss ist.Ob zur Selbstnutzung oder Kapitalanlage, hier entsteht ein wirklich zeitloses Wohnquartier.Ähnliche Angebote
So funktioniert es
- Alle neuen Anzeigen matchen wir kostenlos mit Deinen Suchparametern.
- Passende Angebote senden wir Dir in einer E-Mail pro Tag.
- Du kannst auch verschiedene Suchen anlegen und Dich jederzeit abmelden. Mehr dazu




