Kaufpreis 895.000 €
Zimmer 10
Größe 215 m²
90475 Nürnberg
Objektdaten
Veröffentlicht am: 1. November 2025
Energieausweis: Liegt bei der Besichtigung vor
Danke! Bitte bestätige Deine E-Mail-Adresse – wir haben Dir soeben eine Mail geschickt.
Es gab ein Problem beim Absenden. Bitte versuche es erneut.
Bitte bestätige Deine E-Mail-Adresse, um Updates zu erhalten.
Objektbeschreibung
Objektbeschreibung
Das Haus ist in 3 abgeschlossene Wohnungen aufgeteilt mit einer jeweils großzügigen Aufteilung - die Wohnungen sind auch kombinierbar.Das Haus ist sehr gepflegt, auf dem neuesten Stand und bietet sehr viel Platz. -1960 - Baujahr-1991 - Aufstockung ab EG aufwärts, Erstellung OG und DG ausgebaut-1997 - EG Komplettsanierung mit Erstellung eines Wohn-Wintergartens mit Fußbodenheizung-2021 - EG -Umbau 95 qm inkl. Wohnwintergarten mit Beschattung 28qm mit Fliesenboden-2021 - Bad EG neu- Fa. Richter & Frenzel-2022 - Bäder neu OG und DG - Fa. Richter & Frenzel- Dach isoliert- Solar-Kollektoren auf dem Dach- Haus isoliert- Hausmasse: 11,10m lang, 8,40m breit - Überdachter Freisitz am Haus m. Brunnen aus Sandstein f. Gartenwässerung - Ziegelbauweise - Kunststofffenster - Schallschutzfenster auf der Straßenseite- Balkon im OG und DG über gesamte Hausbreite mit 3 Markisen - Balkonkraftwerk 800W m. Batteriespeicher 1,6 kW - Holztreppe - Bodeneinschubtreppe in Speicher- Türen in Holz - Rollläden- Kachelofen - Hebe-Schiebetüre im WO-Ess-Bereich OG- Einbauküche weiß modern- Smart-Home im Haus
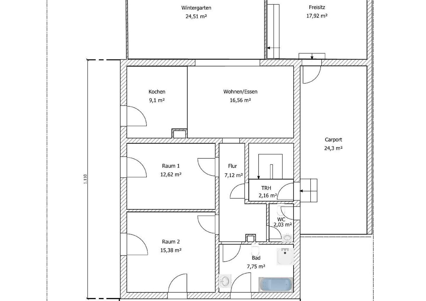
Raumaufteilung
EG:- Fußbodenheizung- 3 Zimmer- offene Küche mit Essbereich- großes Bad m. Fenster- Gäste-WC m. Fenster- Flur m. Garderobe- Wintergarten mit Wohnbereich, 2 Hebe-Schiebetüren in Front und 1 Hebe-Schiebetüre seitlich OG: - Fußbodenheizung- große Küche in weiß- WO-Bereich mit Kachelofen- Ess-Bereich - 3 Zimmer- Bad mit Fenster u. Badewanne- Garderobe - Böden: Parkett, Fliesen, Laminat DG:- Zentralheizung - Klimaanlage- 4 Zimmer, eines mit Küchenanschluss- Bad m. Fenster u. DU- Bodeneinschubtreppe z. Speicher Keller:- Vollunterkellerung inkl. Winter-Garten- Heizung-Gasbrennwerttherme ca. 6 J.- 3 Räume- HWR m. DU - Kelleraußentreppe
So funktioniert es
- Alle neuen Anzeigen matchen wir kostenlos mit Deinen Suchparametern.
- Passende Angebote senden wir Dir in einer E-Mail pro Tag.
- Du kannst auch verschiedene Suchen anlegen und Dich jederzeit abmelden. Mehr dazu
Wir haben soeben eine E-Mail mit Deinem Suchauftrag an Dich geschickt. – Klicke in dieser Mail auf den Bestätigungslink und schon geht's los. Prüfe ggf. auch Deinen Spamordner.
Es gab ein Problem beim Absenden Deiner E-Mail-Adresse. Bitte versuche es erneut.
WARNUNG: Bitte bestätige Deine E-Mail-Adresse, um regelmäßige Updates zu erhalten.