Kaufpreis 1.440.000 €
Zimmer 7
Größe 150 m²
81825 München
Objektdaten
Veröffentlicht am: 6. November 2025
Frei ab: 30. Juni 2027
Baujahr: 2026
Energieausweis: Liegt bei der Besichtigung vor
Danke! Bitte bestätige Deine E-Mail-Adresse – wir haben Dir soeben eine Mail geschickt.
Es gab ein Problem beim Absenden. Bitte versuche es erneut.
Bitte bestätige Deine E-Mail-Adresse, um Updates zu erhalten.
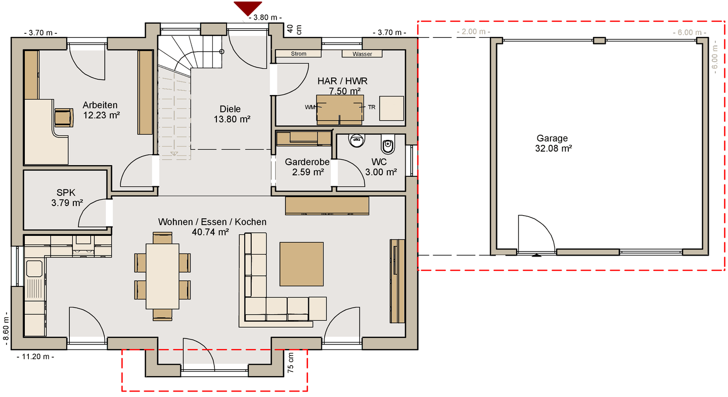
Objektbeschreibung
Die moderne VILLA hier mit Keller (Mehrpreis als Wohnkeller auf Anfrage) besticht durch ihren modernen und elegant wirkenden Stil. Auch äußerlich ist sie ein echter "Hingucker"! der lichtdurchflutete Koch-, Ess- und Wohnbereich zieht sich entlang der gesamten Gartenseite und verleiht der VILLA einen besonderen Charakter. Der intelligente Hausentwurf bietet alles, was eine moderne Familie sich zum Leben wünscht.
Die Doppel-Garage ist nicht im Preis enthalten, wohl aber eine Einzel-Garage. Gerne können Sie die Grundrisse und Größe des Hauses kostenfrei ändern. Nur Mehr- oder Minderleistungen ändern final den FEST-Endpreis für 18 Monate!
Das Boholz-Haus wird in hochwertiger Bauweise und Qualität erstellt: In Wänden/Dach flexible Holzfaser- Dämmung als besonderer Kälte- und Hitzeschutz.
Keine Werkstoff-oder Spanplatten, sondern hoch-
wertige OSB-Elemente Nr. 4 formaldehydfrei.
Es hat besondere Vorzüge geg. einem "Steinhaus".
Erstklassige Schallentkoppelung zwischen EG, OG:
PhoneStrip-Entkoppelungselemente. Die
Innentüren sind im Standard 2,11 m h, Schallschutz Rw= 47 dB. Die Innenwände sind zusätzlich standard-mäßig beidseitig mit OSB 4 beplankt/voll gedämmt.
Baustoffe (Holz u.a.) und Materialien nur aus BRD. Eine Werksbesichtigung und unsere Bau- und Leistungsbeschreibung werden Sie voll überzeugen! Melden Sie sich bei mir für die nächste Besichtigung am 11.04.2026 - um 10 Uhr an.
PS: Eine Courtage in Höhe von 3,57% (inkl. gültiger MWSt) wird nur auf den Grundstückspreis erhoben.
Weniger anzeigen
So funktioniert es
- Alle neuen Anzeigen matchen wir kostenlos mit Deinen Suchparametern.
- Passende Angebote senden wir Dir in einer E-Mail pro Tag.
- Du kannst auch verschiedene Suchen anlegen und Dich jederzeit abmelden. Mehr dazu
Wir haben soeben eine E-Mail mit Deinem Suchauftrag an Dich geschickt. – Klicke in dieser Mail auf den Bestätigungslink und schon geht's los. Prüfe ggf. auch Deinen Spamordner.
Es gab ein Problem beim Absenden Deiner E-Mail-Adresse. Bitte versuche es erneut.
WARNUNG: Bitte bestätige Deine E-Mail-Adresse, um regelmäßige Updates zu erhalten.