Objektdaten
Objektbeschreibung
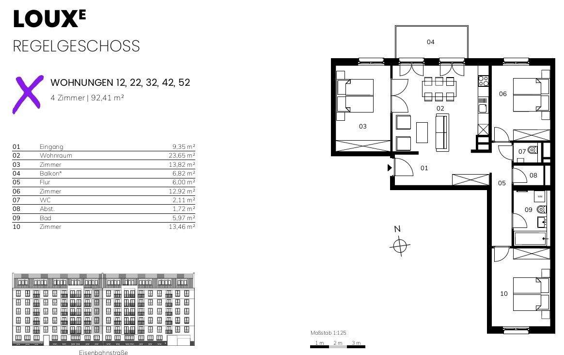
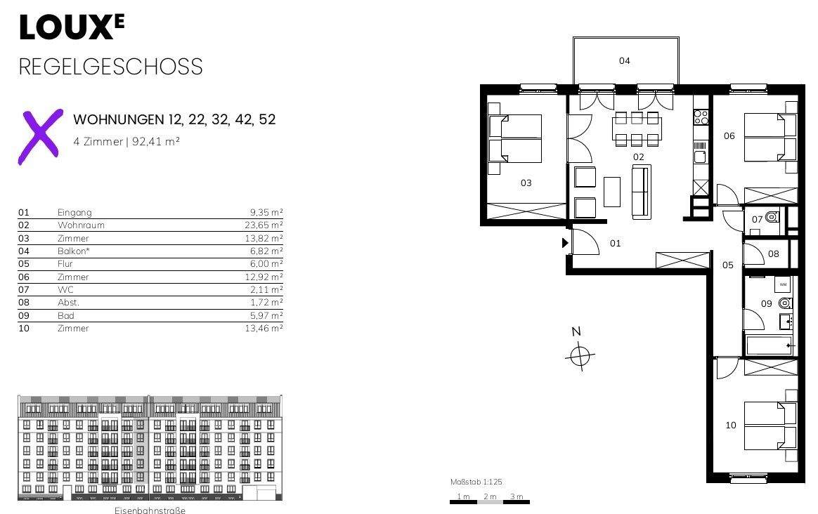
Das Wohnensemble LOUX befindet sich auf den gegenüberliegenden Seiten Torgauer Straße und Eisenbahnstraße. Es besteht aus zwei 7-geschossigen Gebäuden und umfasst insgesamt 122 Wohnungen mit Größen zwischen 38 und 147 m².Zwischen den beiden Häusern spannt sich eine großzügig angelegte Grünfläche auf. Die Balkone oder Terrassen der Wohneinheiten sind hofseitig angelegt. Allen Bewohnerinnen und Bewohnern eröffnet sich ein freier Blick in den Gemeinschaftsgarten.Die hier angebote 3,5 Zimmerwohnung begrüßt Sie mit einem großen und hellen Wohn- und Essbereich, der mit einer doppelflügligen Tür verbunden ist. Die moderne Einbauküche, das wertige Echtholzprakett mit Fußbodenheizung und die bodentiefen Fenster zum schönen Balkon schaffen einen hellen, freundlichen Mittelpunkt zum leben und lachen. Zwei weitere Schlafräume sowie ein Wannenbad mit Duschwand bieten noch mehr Platz zum wohlfühlen und entspannen. Hier kommen Sie rein und fühlen sich direkt zu Hause :-)Auch für Mobilität und Stauraum ist gesorgt: Die Tiefgarage des Gebäudekomplexes bietet 62 PkW-Stellplätze. Insgesamt stehen weitere 122 Fahrradabstellplätze und zu jeder Wohnung ein trockener Keller zur Verfügung.Ähnliche Angebote
So funktioniert es
- Alle neuen Anzeigen matchen wir kostenlos mit Deinen Suchparametern.
- Passende Angebote senden wir Dir in einer E-Mail pro Tag.
- Du kannst auch verschiedene Suchen anlegen und Dich jederzeit abmelden. Mehr dazu





