Kaufpreis 165.000 €
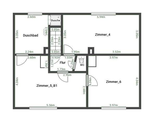
Zimmer 6
Größe 125 m²
18311 Ribnitz-Damgarten
Objektdaten
Veröffentlicht am: 7. November 2025
Baujahr: 1900
Energieausweis: Liegt bei der Besichtigung vor
Danke! Bitte bestätige Deine E-Mail-Adresse – wir haben Dir soeben eine Mail geschickt.
Es gab ein Problem beim Absenden. Bitte versuche es erneut.
Bitte bestätige Deine E-Mail-Adresse, um Updates zu erhalten.
Objektbeschreibung
Aus Diskretionsgründen handelt es sich bei dem öffentlichen Exposé in den Portalen um eine Kurzversion. Die ausführliche Version mit allen Unterlagen, Bildern, Grundrissen und einer 360°-Objektbesichtigung erhalten Sie nach einer qualifizierten Anfrage über das jeweilige Kontaktformular per E-Mail.Dieses Wohnhaus in Damgarten bietet eine solide und ehrliche Basis für alle, die ihre eigenen Wohnideen umsetzen möchten. Auf rund 125 m² Wohnfläche und zusätzlichen ca. 67 m² Nutzfläche (Nebengebäude & Garagen) ist genügend Raum für individuelle Wohnkonzepte vorhanden.Das Haus verfügt über zwei Wohnebenen mit insgesamt sechs Zimmern, Küche, Bad, WC sowie Fluren und Abstellbereichen. Die Raumhöhen betragen ca. 2,35 m im Erdgeschoss und ca. 2,39 m im Obergeschoss - damit entsteht ein angenehmes Raumgefühl.Die Immobilie weist einen altersentsprechenden Instandhaltungszustand auf. Für Käufer bedeutet das: klare Verhältnisse, Gestaltungsspielraum für eigene Modernisierungen oder Sanierungen nach Bedarf.Zum Objekt gehören mehrere Nebengebäude sowie Garagen, die sich hervorragend als Werkstatt-, Lager- oder Hobbyflächen eignen. Das große Wiesengrundstück bietet zusätzliche Möglichkeiten - von der Gartengestaltung bis hin zur Tierhaltung oder als Reservefläche.Übrigens: Der Kaufpreis ist selbstverständlich verhandelbar und nicht in Stein gemeißelt. [Nach oben ist alles offen ?? *lach*]
So funktioniert es
- Alle neuen Anzeigen matchen wir kostenlos mit Deinen Suchparametern.
- Passende Angebote senden wir Dir in einer E-Mail pro Tag.
- Du kannst auch verschiedene Suchen anlegen und Dich jederzeit abmelden. Mehr dazu
Wir haben soeben eine E-Mail mit Deinem Suchauftrag an Dich geschickt. – Klicke in dieser Mail auf den Bestätigungslink und schon geht's los. Prüfe ggf. auch Deinen Spamordner.
Es gab ein Problem beim Absenden Deiner E-Mail-Adresse. Bitte versuche es erneut.
WARNUNG: Bitte bestätige Deine E-Mail-Adresse, um regelmäßige Updates zu erhalten.