Objektdaten
Objektbeschreibung
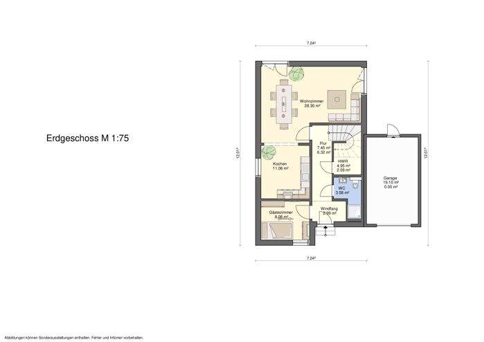
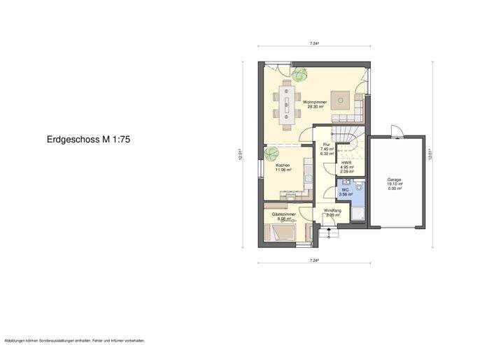
Die Häuser der Reihe Kubis sind als zweigeschossige Bauten mit Pultdach konzipiert. Sie sind das Resultat der Bemühung um maximale Funktionalität, klare Linien und einen individuellen Stil. Die Deckenhöhe im Obergeschoss ist nicht durch die Dachschräge eingeschränkt, so dass dieses Stockwerk eine ebenso vollwertige Wohnfläche wie das Erdgeschoss bietet.Das moderne Konstruktionssystem erlaubt eine variable Raumnutzung mit Schwerpunkt auf die Funktionalität und Nutzbarkeit des Wohnraums. Das Pultdach gestattet eine uneingeschränkte Nutzung des Obergeschosses und verleiht dem Haus eine nicht alltägliche Gestalt. Die Funktionalität und die Nutzeigenschaften des Hauses erhöhen sich noch durch Ausrichtung der verglasten Seite nach Süden, wodurch Wärmegewinne durch die Sonneneinstrahlung erzielt werden.So funktioniert es
- Alle neuen Anzeigen matchen wir kostenlos mit Deinen Suchparametern.
- Passende Angebote senden wir Dir in einer E-Mail pro Tag.
- Du kannst auch verschiedene Suchen anlegen und Dich jederzeit abmelden. Mehr dazu




